Vuokrataan toimistotilat - Helsinki
Ilmalan Asema, Ilmalantori 1, Pasila, 00240 Helsinki #10814423
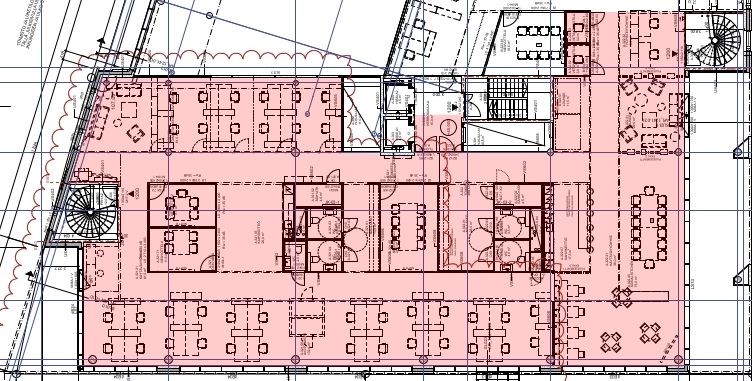
Vuonna 2017 valmistuneesta toimistorakennuksesta tyylikäs ja muuntojoustava 660 m² toimisto kolmannerta kerroksesta.
Osoite
Ilmalantori 1, 00240 Helsinki
Tilatyyppi
Toimistotilaa
660 m2
Pohjapiirros
Kiinteistö
Tilasta on upeat maisemat neljään eri suuntaan. Toimisto koostuu avotilasta, erikokoisista työhuoneista, avokeittiöstä ja neukkareista. Huoneiden kokoa mahdollista muuttaa modulaarisen huonejaon mukaisesti.
Vuoden 2017 lopussa valmistuneessa rakennuksessa on tarjolla toimistotiloja niin suuremmille, yli 100 hengen yrityksille, kuin pienemmillekin yrityksille. Ilmalan Asema on osa uutta nopeasti kasvavaa media- ja yritystoiminnan keskusta aivan Pasilan vieressä, Helsingin Ilmalassa.
Toimitiloissa vallitsee viihtyisä tunnelma, joka välittyy upean, erottuvan arkkitehtuurin myötä vierailijoillekin. Toimiva akustiikka, fiksu led-valaistus, hyvä sisäilma sekä sopiva lämpötila takaavat tehokkaat työpäivät.
Rakennus sijaitsee aivan Ilmalan juna-asemalla. Junamatka Helsingin keskustaan kestää kuusi minuuttia ja lentokentälle vajaa 30 minuuttia.
Vuoden 2017 lopussa valmistuneessa rakennuksessa on tarjolla toimistotiloja niin suuremmille, yli 100 hengen yrityksille, kuin pienemmillekin yrityksille. Ilmalan Asema on osa uutta nopeasti kasvavaa media- ja yritystoiminnan keskusta aivan Pasilan vieressä, Helsingin Ilmalassa.
Toimitiloissa vallitsee viihtyisä tunnelma, joka välittyy upean, erottuvan arkkitehtuurin myötä vierailijoillekin. Toimiva akustiikka, fiksu led-valaistus, hyvä sisäilma sekä sopiva lämpötila takaavat tehokkaat työpäivät.
Rakennus sijaitsee aivan Ilmalan juna-asemalla. Junamatka Helsingin keskustaan kestää kuusi minuuttia ja lentokentälle vajaa 30 minuuttia.
Vapautuu
Heti
Rakennusvuosi
2017
Kerros
3
Energiatehokkuusluokka
B
Näkyvällä paikalla
Hissi
Ota yhteyttä
ScanReal Oy LKV
Opus Business Park
Hitsaajankatu 24
00810 Helsinki
info@scanreal.fi
Puh:
Näytä puhelinnumero
020 730 8830
Sopivat toimitilat yhdellä otolla!
Kartoitamme toimitilatarpeesi ja etsimme yrityksellesi parhaiten sopivat vapaat toimitilat. Koska vuokranantajat maksavat palvelumme, on tämä yrityksellesi veloituksetonta.
OTA YHTEYTTÄ - SOVI NÄYTTÖ!
Kaikki kohteemme eivät ole netissä, kerro tilatarpeesi niin kartoitamme vaihtoehdot.
Palvelumme on tilanhakijalle ilmainen
Pyydä lisätietoa
