Vuokrataan toimistotilat - Helsinki
Simonkatu 8, Kamppi, 00100 Helsinki #10814319
6. kerroksen uniikkia toimistotilaa. Tilaratkaisut toteutetaan toiveiden mukaan.
Osoite
Simonkatu 8, 00100 Helsinki
Tilatyyppi
Toimistotilaa
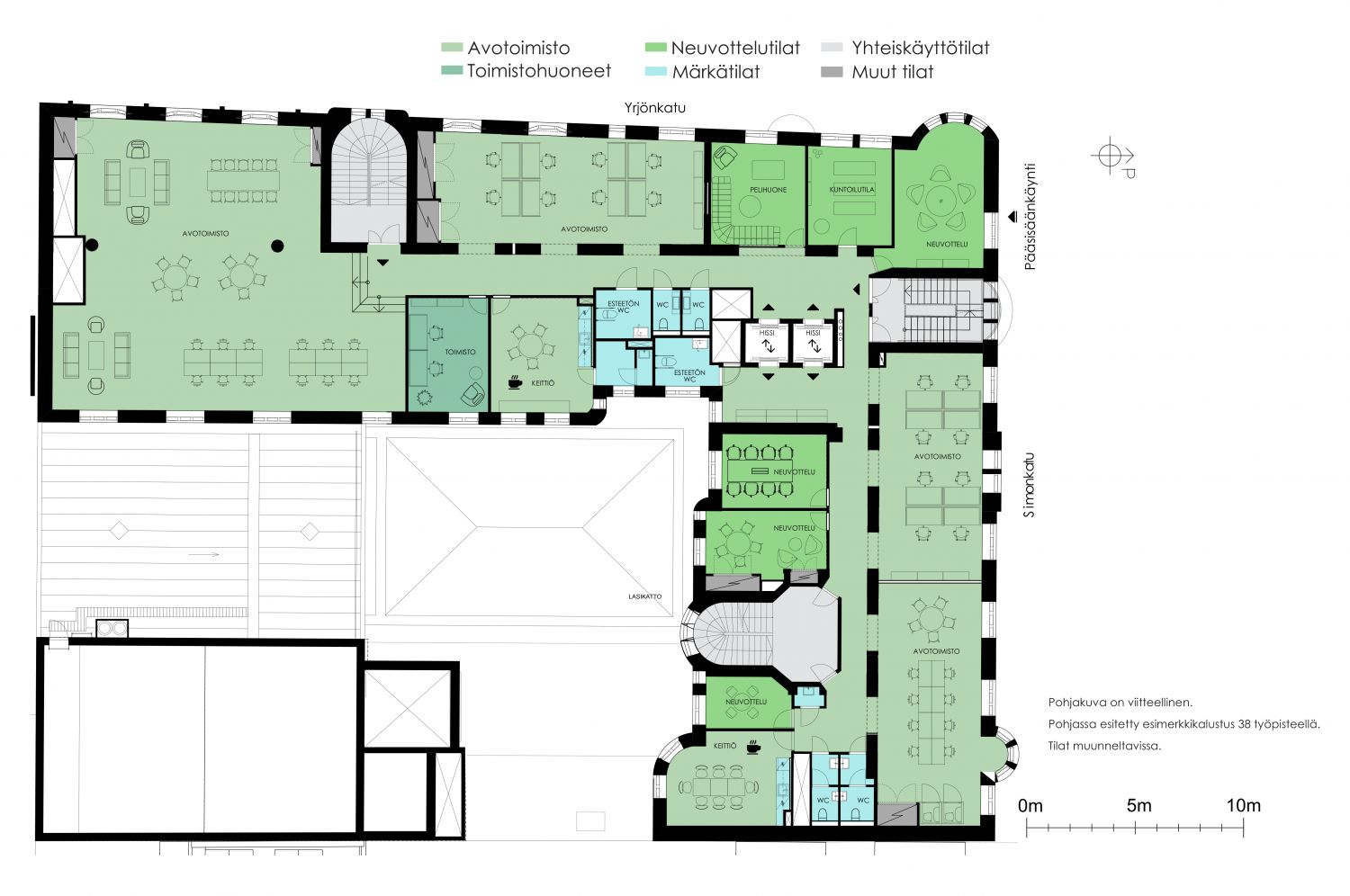
642 m2
Pohjapiirros
Kiinteistö
Simonkatu 8 uudistetaan vuokralaisten omien tarpeiden ja toiveiden mukaan. Lähes kaikki toiveet, ne villimmätkin, voidaan toteuttaa. Olipa kyse sitten kuntosalista, karaokehuoneesta, joogasalista, keilaradasta tai vaikka zen-puutarhasta kattoterassilla. Onnistuu.
Simonkatu 8 on arkkitehtuurillisesti täysin ainutlaatuinen kohde Helsingin ydinkeskustassa. Vuonna 1908 valmistuneen jugend-rakennuksen jokainen kerros huokuu täysin uniikkia tunnelmaa, kekseliäistä tilaratkaisuja ja mielenkiintoisia yksityiskohtia. Jos siis etsit toimistoa, joka ei tunnu toimistolta, saattaa tämä olla etsimäsi paikka.
Kiinteistö on uudistettu luovuuden keskukseksi, jossa hallittua hulluutta huokuvat tilaratkaisut ja leikittelevä sisustus luovat täysin omanlaisensa työympäristön. Kiinteistön erikoisuuksiin kuuluu mm. persoonalliset majakkatornit sekä legendaarinen Koiton sali, joka voidaan muokata monenlaiseen käyttöön vaikkapa juhlatilaksi tai yhteiseksi työtilaksi.
Sponda on sijoittunut kansainvälisessä GRESB-vastuullisuusarvioinnissa kärkeen jo yhtenätoista peräkkäisenä vuotena vastuullisen kiinteistöalan toimijana sekä toimialamme kestävän kehityksen edistäjänä. Myös Simonkatu 8:lle tavoitellaan korkeimman luokan ympäristösertifikaattia.
Urban Collection
Simonkatu 8 on yksi Spondan viidestä Urban Collection kohteesta. Nämä rakennukset tullaan peruskorjaamaan täysin, ja niiden on määrä valmistua 2026-2027. Huippuluokan tilat yhdistävät historiallisen viehätyksen moderniin toiminnallisuuteen. Rakennukset soveltuvat sekä suurille yrityksille että pienille start-upeille – tämä kokoelma tarjoaa monipuolisia toimistoratkaisuja, jotka vastaavat monenlaisiin liiketoimintatarpeisiin.
Tutustu Spondan Urban Collectioniin
Simonkatu 8 on arkkitehtuurillisesti täysin ainutlaatuinen kohde Helsingin ydinkeskustassa. Vuonna 1908 valmistuneen jugend-rakennuksen jokainen kerros huokuu täysin uniikkia tunnelmaa, kekseliäistä tilaratkaisuja ja mielenkiintoisia yksityiskohtia. Jos siis etsit toimistoa, joka ei tunnu toimistolta, saattaa tämä olla etsimäsi paikka.
Kiinteistö on uudistettu luovuuden keskukseksi, jossa hallittua hulluutta huokuvat tilaratkaisut ja leikittelevä sisustus luovat täysin omanlaisensa työympäristön. Kiinteistön erikoisuuksiin kuuluu mm. persoonalliset majakkatornit sekä legendaarinen Koiton sali, joka voidaan muokata monenlaiseen käyttöön vaikkapa juhlatilaksi tai yhteiseksi työtilaksi.
Sponda on sijoittunut kansainvälisessä GRESB-vastuullisuusarvioinnissa kärkeen jo yhtenätoista peräkkäisenä vuotena vastuullisen kiinteistöalan toimijana sekä toimialamme kestävän kehityksen edistäjänä. Myös Simonkatu 8:lle tavoitellaan korkeimman luokan ympäristösertifikaattia.
Urban Collection
Simonkatu 8 on yksi Spondan viidestä Urban Collection kohteesta. Nämä rakennukset tullaan peruskorjaamaan täysin, ja niiden on määrä valmistua 2026-2027. Huippuluokan tilat yhdistävät historiallisen viehätyksen moderniin toiminnallisuuteen. Rakennukset soveltuvat sekä suurille yrityksille että pienille start-upeille – tämä kokoelma tarjoaa monipuolisia toimistoratkaisuja, jotka vastaavat monenlaisiin liiketoimintatarpeisiin.
Tutustu Spondan Urban Collectioniin
Sijainti
Kiinteistö sijaitsee Helsingin ydinkeskustassa Forum-korttelissa, aivan kivenheiton päässä Rautatieasemalta. Bussit, raitiovaunut, junat ja metro ovat välittömässä läheisyydessä tai muutaman minuutin kävelymatkan päässä. Forum-kortteli on Helsingin vilkkaimpia läpikulkupaikkoja. Sieltä on kulkutunneliyhteys muualle keskustaan, kuten päärautatieasemalle ja Kampin liikenneterminaaliin.
Pysäköinti
Forum-P
Palvelut
Alueen vaihtoehdot ovat lähes loputtomat, olipa kyse sitten lounasravintoloista, afterwork-paikoista tai kulttuurikohteista. Esimerkiksi Kulttuurikasarmi, Amos Rex, Finnkino ja Kiasma sijaitsevat kaikki lyhyen kävelymatkan etäisyydessä.
Kulkuyhteydet
Lähimmälle bussipysäkille 250 m
Lähimmälle juna-asemalle 400 m
Lähimmälle metroasemalle 250 m
Lähimmälle raitiovaunupysäkille 90 m
Lentokentälle 35 min
Lähimmälle juna-asemalle 400 m
Lähimmälle metroasemalle 250 m
Lähimmälle raitiovaunupysäkille 90 m
Lentokentälle 35 min
Vapautuu
Kysy
Rakennusvuosi
1907
Kerros
6
Energiatehokkuusluokka
B2018
Ympäristöluokitus
GRESB Global Sector Leader 2025
Ota yhteyttä
Sponda Oy
Yrjönkatu 29C, 00100 Helsinki
Näytä puhelinnumero
020 43131
Veera Luostarinen
Senior Leasing Manager, Retail
Näytä puhelinnumero
+358 50 338 3729
Laura Toponen
Senior Leasing Manager
Näytä puhelinnumero
+35850 413 4223
Sponda Oy
https://www.sponda.fiPyydä lisätietoa
