Vuokrataan toimistotilat - Helsinki
Insinöörinkatu 12, Herttoniemi, 00880 Helsinki #10814290
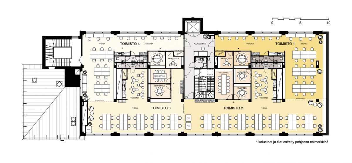
Vuokrataan upea ja ainutlaatuinen toimistotila Herttoniemestä. Valoisan tilan suuret ikkunat ja normaalia korkeampi huonekorkeus luovat hienoa tunnelmaa tilaan. Tilassa on jäähdyttävä ilmanvaihto ja kaikki tekniikka on uusittu saneerauksen yhteydessä.
Herttoniemen Tiili on vanha tehdaskiinteistö, joka on kokonaisuudessaan saneerattu vastaamaan tämän päivän toimistovaatimuksia. Tiloissa ainutlaatuinen tunnelma ja hienot näkymät. Talon katutasoon on tulossa ravintoloita ja talon toiselle puolelle valmistuu puisto.
Vieressä Herttoniemen monipuoliset palvelut, kuten kauppakeskus Hertsi ja Noli-hotelli. Herttoniemen metro-asema on kävelyetäisyydellä. Talon vieressä on pysäköintihalli, josta on vuokrattavissa autopaikkoja.
Lisätietoja soita 020 730 4530 tai info@repoint.fi. Palvelumme on tilanhakijalle ilmainen.
Repoint Toimitilat Oy
Itälahdenkatu 22 B, 00210 Helsinki
Näytä puhelinnumero
020 730 4530
Lisätietoja soita Näytä puhelinnumero 020 730 4530 tai info@repoint.fi
https://repoint.fi/