Myydään/sijoituskohde toimistotilat, liiketilat, näyttelytilat, tuotantotilat, toimistohotelli, varastohotelli - Helsinki
Perämiehenkatu 11, Punavuori, 00150 Helsinki #10814267
Katutason liike-, tuotantotila isolla näyteikkunalla Punavuoressa erinomaisella paikalla kehittyvällä Telakanrannan alueella. Velaton hinta 620 000€.
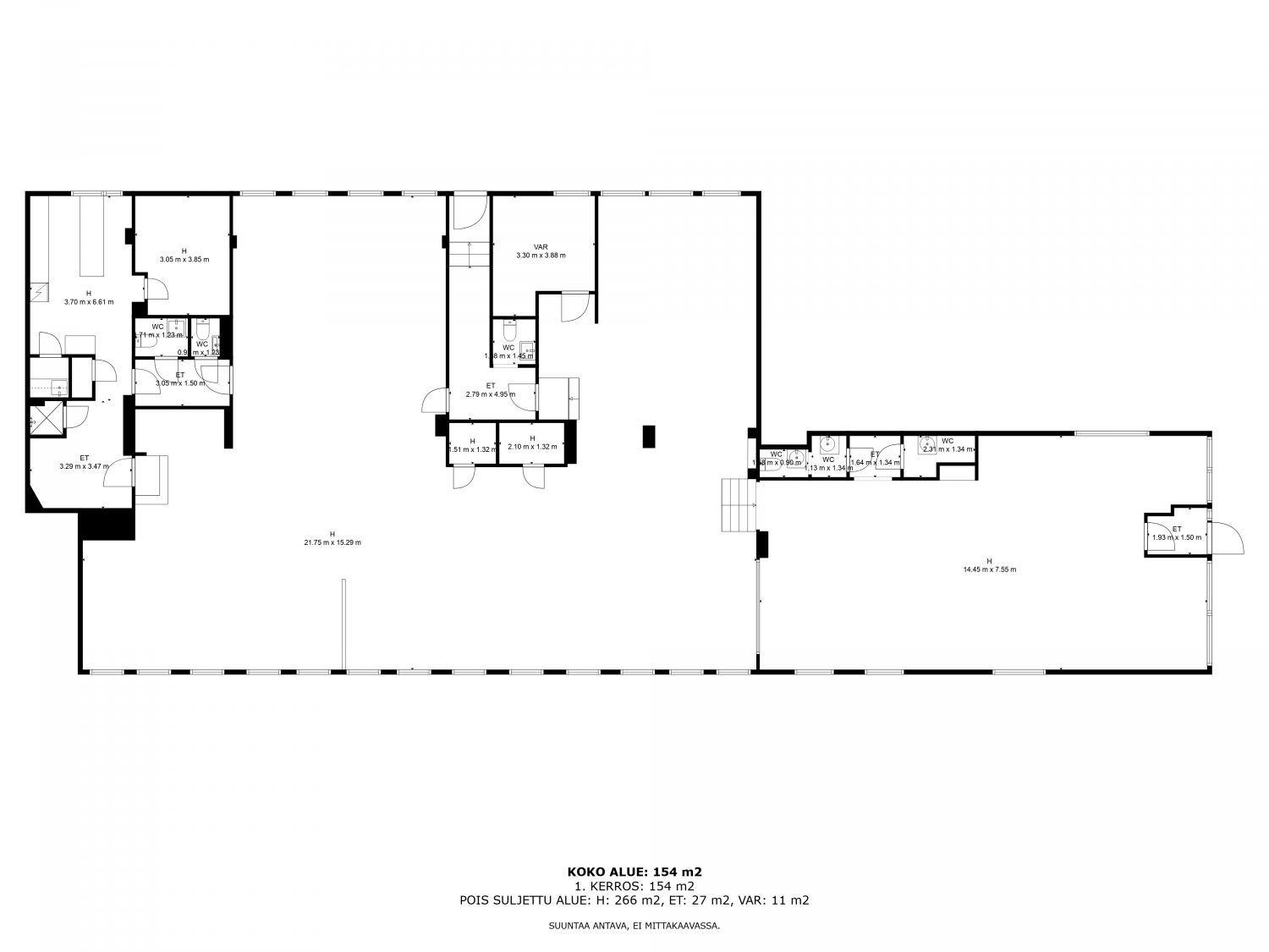
Moniin tarpeisiin soveltuva avara toimitila koostuu mm. avoimesta tilasta, keittiöstä, useammasta vessasta, suihkusta sekä tauko- ja varastotiloista.
Huoneistoon on kaksi sisäänkäyntiä. Tilat vapaat ja muokattavissa tarpeiden mukaan.
Kiinteistö sijaitsee erinomaisella paikalla kehittyvällä Telakanrannan alueella, lähellä Eiran ja Hietalahden rantaa. Hietalahden altaan äärelle suunnitellaan kolmea pääkonttoritason toimistorakennusta kivijalkapalveluineen. Uudisrakentamisen lisäksi suunnitelmissa on merellisen rantapromenadin toteuttaminen kävelijöiden ja pyöräilijöiden käyttöön sekä Hietalahdentorin uudistaminen vihreämmäksi ja viihtyisämmäksi. Se nostaa alueen asumisen ja työskentelyn arvoa.
Tämä kohde tarjoaa ainutlaatuisen mahdollisuuden sijoittaa kehittyvälle alueelle, jossa yhdistyvät merellinen tunnelma ja kaupungin syke.
Hoitovastike - 2117,5€/kk
Pääomavastike - 1528,45€/kk
Yhtiövastike yhteensä - 3645,95€/kk
Velaton hinta - 620 000€
Velkaosuus - 66 454,56 €
Myyntihinta - 553 545,44 €
Soveltuu erinomaisesti toimistotilaksi, kaupaksi, kuntosaliksi tms.
Lisätietoja pyydettäessä ja paikan päälle päästään sovittaessa.
Soita ja sovi esittely!
Igor Rokka
Toimitusjohtaja
Kiinteistönvälittäjä, LKV
i.rokka@finhome.fi
+358 44 243 78 43
Services also in English.
2024 Autohallin valaistuksen uudistus
2023 Huippuimuri, asennus saunatiloihin
2019 Vesikaton uusimisen siirtäviä korjauksia 2018 Vesikaton kuntoarvio (tarkennus taloyhtiön kuntoarviosta) 2017 Taloyhtiön kuntoarvion päivitys 2014 - 2015 Hissien peruskunnostus ja porrashuoneiden maalauskunnostus 2013 B-portaan viereisen piipun korjaus, piipunhattujen tekeminen 2012 Julkisivu- ja parvekerakenteiden uusiminen sekä tuuletusparvekkeiden ikkunoiden ja ovien korjaus tai tarvittaessa uusiminen 2011 Julkisivujen ja parvekerakenteiden peruskorjauksen suunnittelu, sadevesijärjestelmien korjaus ja vesikaton huoltomaalaus sauna-pesutuparakennuksessa, sisäpihan betonikiveyksen saumojen kunnostus 2010 Sisäpihan portin uusiminen 2008 Saunan ja pesutuvan peruskorjaus 2007 Ovipuhelinjärjestelmä 2006 - 2007 Sähköjärjestelmien peruskorjaus linjasaneerauksen yhteydessä 2006 - 2007 Vesijohtojen ja viemäreiden linjasaneeraus 2004 Sähköpääkeskuksen ja kiinteistökeskuksen uusiminen 2001 Kaukolämpölaitteiden uusiminen 2001 Pihakansirakenteiden uusiminen 1996 Ikkunoiden uusiminen 1995 ja 1985 Vesikaton kunnostus 1981 Julkisivujen kunnostus (maalaus)
Katutasossa
Näkyvällä paikalla
Finhome Group Oy
Itäkatu 1C, Regus (3 krs.)
00930 Helsinki
M.
Näytä puhelinnumero
+358442437843
Finhome Group Oy on kiinteistönvälitystoimisto, jonka toiminta-alue on pääkaupunkiseutu. Tarjoamme laadukasta ja henkilökohtaista palvelua, joka johtaa hyviin kokemuksiin ja tuloksiin. Arvostamme pitkiä asiakassuhteita, joiden keskiössä ovat yhteinen päämäärä, rehellisyys ja luottamus.
Toimintamme kattaa asunnot, vapaa-ajan asunnot, kiinteistöt ja toimitilat.
Hoidamme myynti-, osto- ja vuokraustoimeksiannot. Tarjoamme asuntosijoittajille syvällisen asiantuntemuksen ja autamme hankkimaan parhaat kiinteistösijoituskohteet ja hallinnoimaan ne.
