Vuokrataan/myydään toimistotilat - Karkkila
Tammelantie 8, Karkkila, 03600 Karkkila #10814041
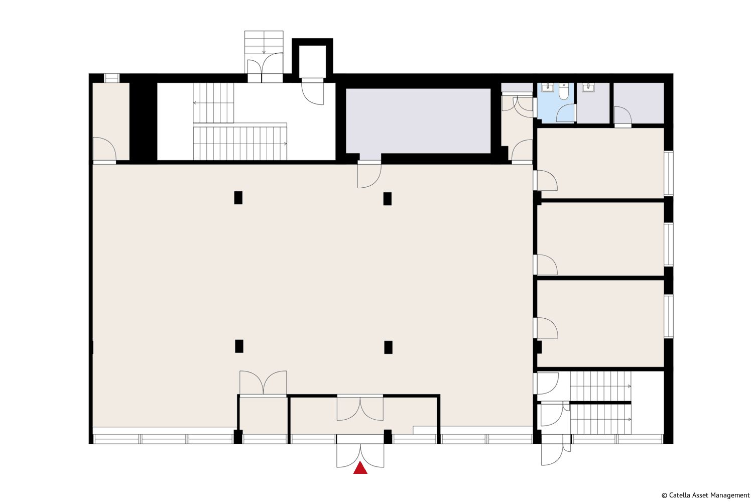
Myydään tai vuokrataan liiketilat Karkkilan keskustasta. Kokonaisuus sisältää katutason tilat (281 m2) sekä näyttävät kellarikerroksen tilat (199 m2) saunoineen. Katutason tila soveltuu mainiosti liiketilaksi palveluliiketoimintaan. Ota yhteyttä ja kysy lisätietoja!
Osoite
Tammelantie 8, 03600 Karkkila
Tilatyyppi
Toimistotilaa
480 m2
Kiinteistö
Karkkilan Tammelantie 8
Muuta
Tilan ominaisuudet:
Vapautuu
Heti vapaa
Kerros
0-3
Energiatehokkuusluokka
F
Ota yhteyttä
Catella Asset Management
Aleksanterinkatu 46 A, 00100 Helsinki
Jermu Kujanpää
Näytä puhelinnumero
010 522 0356
Catella Asset Management on itsenäinen ja yritteliäs kiinteistövarallisuudenhoitoyhtiö. Yhtiö on osa Catella-konsernia.
http://www.catella.com/en/Finland/AssetManagementPyydä lisätietoa
