Vuokrataan toimistotilat - Helsinki
Vanha Talvitie 11, Hermanni, 00580 Helsinki #10814025
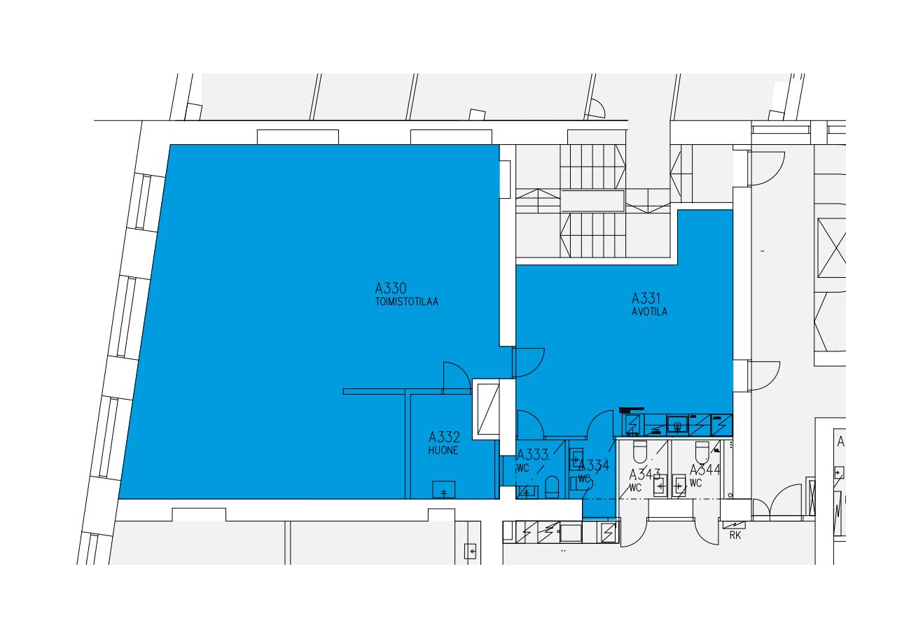
Vuokrattavana 3. kerroksen valoisaa ja korkeaa toimistotilaa.
Osoite
Vanha Talvitie 11, 00580 Helsinki
Tilatyyppi
Toimistotilaa
126,5 m2
Kiinteistö
Vuokrattavana 3. kerroksen valoisaa ja korkeaa toimistotilaa kiinteistön persoonallisesta vanhasta osasta.
Sijainti
Hermanni, Helsinki
Palvelut
-Neuvottelutilat
-Saunaosasto
-Saunaosasto
Kulkuyhteydet
-Metroasema 400 m
-Raitiovaunupysäkki 700 m
-Bussipysäkki 100 m
-Juna-asema 4,3 km
-Raitiovaunupysäkki 700 m
-Bussipysäkki 100 m
-Juna-asema 4,3 km
Vapautuu
Heti
Kerros
3
Energiatehokkuusluokka
Ei lain edellyttämää energiatodistusta
Näkyvällä paikalla
Hissi
Ota yhteyttä
REALIUM OY LKV
Tammasaarenkatu 1, 00180 Helsinki
Vaihde:
Näytä puhelinnumero
010 326 346
Tuomo Mäkelä
tuomo.makela@realium.fi
p.
Näytä puhelinnumero
044 050 1158
Joel Keto
joel.keto@realium.fi
p.
Näytä puhelinnumero
045 317 0330
KAIKKI TILAVAIHTOEHDOT KERRALLA!
SOITA - MEILAA JA TILAA NÄYTTÖ!
Ilmainen palvelu tilanhakijoille.
Kartoitamme parhaat tilavaihtoehdot.
Kaikki kohteet eivät ole netissä.
Pyydä lisätietoa
