Vuokrataan toimistotilat - Helsinki
Pasilankatu 2, Pasila, 00240 Helsinki #10813977
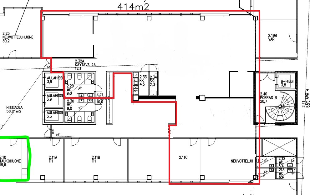
PASILANKATU 2 - toimistotila 305m2
Avaraa toimistotilaa Huolintatalon 2. kerroksesta. Iso selkeä avotila jossa pari lasiseinäista neuvottelutilaa sekä erillinen pienempi avotilan ja toimistohuoneen yhdistelmä. Raikkaan punainen keittiö ja kolmen wc-kopin yhdistelmä.
Lisätiedot ja kohdenäytöt: p. 040 7070 321 / HeikkiKerros: 2
Osoite
Pasilankatu 2, 00240 Helsinki
Tilatyyppi
Toimistotilaa
305 m2
Kulkuyhteydet
Kaikki PK-seudun paikallisjunat ja Helsinkiin saapuvat kaukojunat parin minuutin kävelymatkan päässä. Raitiovaunu pysäkki vieressä, kuin myös useita bussilinjoja.
Ota yhteyttä
CRE PREMISES
Puh. Näytä puhelinnumero 020 7290 710
Vantaankoskentie 14
01670 VANTAA
Pyydä lisätietoa
