Vuokrataan toimistotilat, liiketilat, muut tilat - Helsinki
Mannerheimintie 3, Kluuvi, 00100 Helsinki #10813912
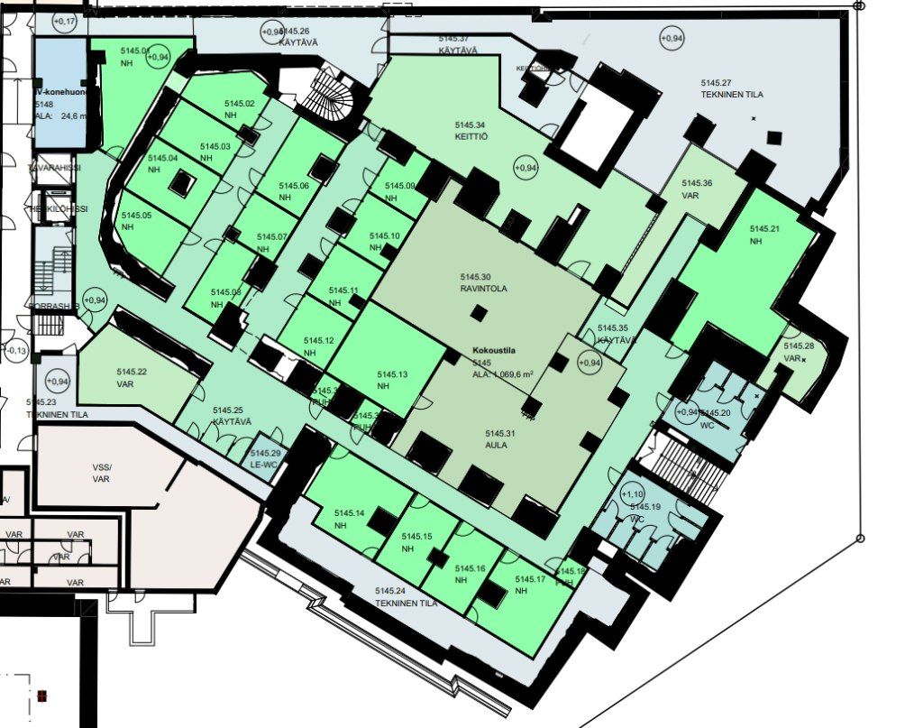
Liiketilaa Kaivopihalta
Osoite
Mannerheimintie 3, 00100 Helsinki
Tilatyyppi
Toimistotilaa
1070 m2
Liiketilaa
1070 m2
Muuta tilaa
1070 m2
Yhteensä
1070 m2
Muuta
Vuokrattavana 1070 m² monikäyttöinen liiketila Kaivopihalta. Tila sijaitsee erinomaisella paikalla aivan keskellä Kaivopihaa, tarjoten loistavat mahdollisuudet monenlaiseen liiketoimintaan.
Tilat ovat muunneltavissa ja soveltuvat erinomaisesti esimerkiksi ravintolakäyttöön. Tilaan on helppo pääsy, ja sen keskeinen sijainti takaa näkyvyyden ja houkuttelevuuden asiakkaille.
Liiketilaan on myös erittäin hyvät liikenneyhteydet, ja alueen vilkas ympäristö tukee liiketoimintaa. Kaivopihan kattavat palvelut ja monipuolinen tarjonta lisäävät sijainnin vetovoimaisuutta.
Tervetuloa tutustumaan, varaathan välittäjältä oman esittelyaikasi. Voit kysyä meiltä myös muita sopivia vaihtoehtoja, kauttamme löydät juuri Teidän tarpeisiinne sopivat tilat.
Palvelumme on tilanhakijalle veloitukseton!
Tilat ovat muunneltavissa ja soveltuvat erinomaisesti esimerkiksi ravintolakäyttöön. Tilaan on helppo pääsy, ja sen keskeinen sijainti takaa näkyvyyden ja houkuttelevuuden asiakkaille.
Liiketilaan on myös erittäin hyvät liikenneyhteydet, ja alueen vilkas ympäristö tukee liiketoimintaa. Kaivopihan kattavat palvelut ja monipuolinen tarjonta lisäävät sijainnin vetovoimaisuutta.
Tervetuloa tutustumaan, varaathan välittäjältä oman esittelyaikasi. Voit kysyä meiltä myös muita sopivia vaihtoehtoja, kauttamme löydät juuri Teidän tarpeisiinne sopivat tilat.
Palvelumme on tilanhakijalle veloitukseton!
Vapautuu
Kysy
Kerros
-1
Ota yhteyttä
Tuloskiinteistöt Oy
Rikhardinkatu 2 B 5, 00130 Helsinki
Näytä puhelinnumero
(09) 6841 620
Jorma Ryynänen
Commercial Real Estate Advisor LKV, LVV
Näytä puhelinnumero
+358 40 708 4064
Nina Meyke
Commercial Real Estate Advisor
Näytä puhelinnumero
+358 50 466 1519
Pyydä lisätietoa
