Vuokrataan liiketilat - Mikkeli
Otavankatu 23, 50130 Mikkeli #10813823
Tarjolla vapautunut liiketila omalla tontilla, joka tarjoaa monipuoliset mahdollisuudet yritystoimintaan.
Osoite
Otavankatu 23, 50130 Mikkeli
Tilatyyppi
Liiketilaa
1200 m2
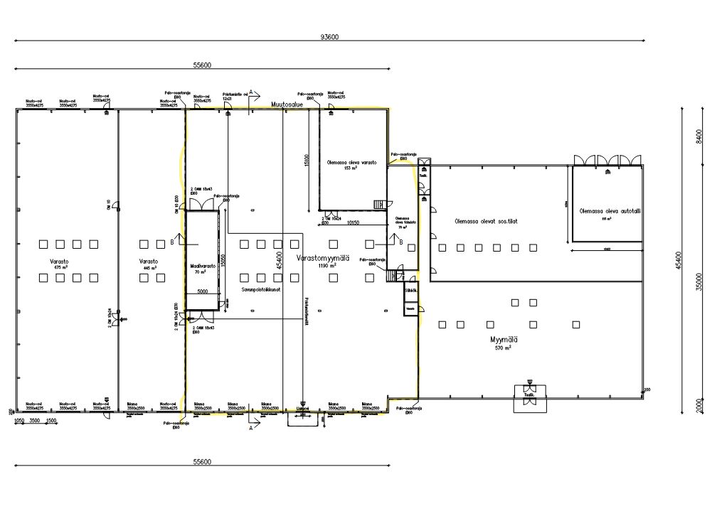
Pohjapiirros
Vuokra
Hintatiedot pyydettäessä!
Kiinteistö
Kiinteistön kokonaispinta-ala on 1 200 m². Tila on aiemmin toiminut RTV:n myymälänä ja soveltuu erinomaisesti kaupalliseen käyttöön tai varastointiin.
+ Laaja ja helposti muokattava tila
+ Sopii liiketilaksi, varastointiin tai muuhun kaupalliseen toimintaan
+ Omalla tontilla, joka mahdollistaa joustavat käyttömahdollisuudet
+ Hyvät pysäköintimahdollisuudet
Lisätietoja kysymällä lisää!
+ Laaja ja helposti muokattava tila
+ Sopii liiketilaksi, varastointiin tai muuhun kaupalliseen toimintaan
+ Omalla tontilla, joka mahdollistaa joustavat käyttömahdollisuudet
+ Hyvät pysäköintimahdollisuudet
Lisätietoja kysymällä lisää!
Sijainti
Kiinteistö sijaitsee hyvällä paikalla Mikkelissä, hyvien kulkuyhteyksien varrella. Alueella on toimiva kaupallinen ympäristö ja helppo saavutettavuus.
Vapautuu
Heti
Katutasossa
Näkyvällä paikalla
Liitetiedostot
Ota yhteyttä
Arvo Premises Oy
Joakim Kukkonen
Osakas, Toimitilavälittäjä
Näytä puhelinnumero
040 555 8106
Seppo Pakarinen
Osakas, Kiinteistönvälittäjä. LKV, YKV, AKA
Näytä puhelinnumero
040-703 8000
Pyydä lisätietoa
