Myydään/sijoituskohde toimistotilat, liiketilat, näyttelytilat - Helsinki
Fredrikinkatu 34, Kamppi, 00100 Helsinki #10813821
Myydään vuokrattu liiketila erittäin hyvällä sijainnilla Fredrikinkadulla. Loistava sijoituskohde. Velaton myyntihinta 620 000€. Vuokratuotto n.7,5%.
Osoite
Fredrikinkatu 34, 00100 Helsinki
Tilatyyppi
Toimistotilaa
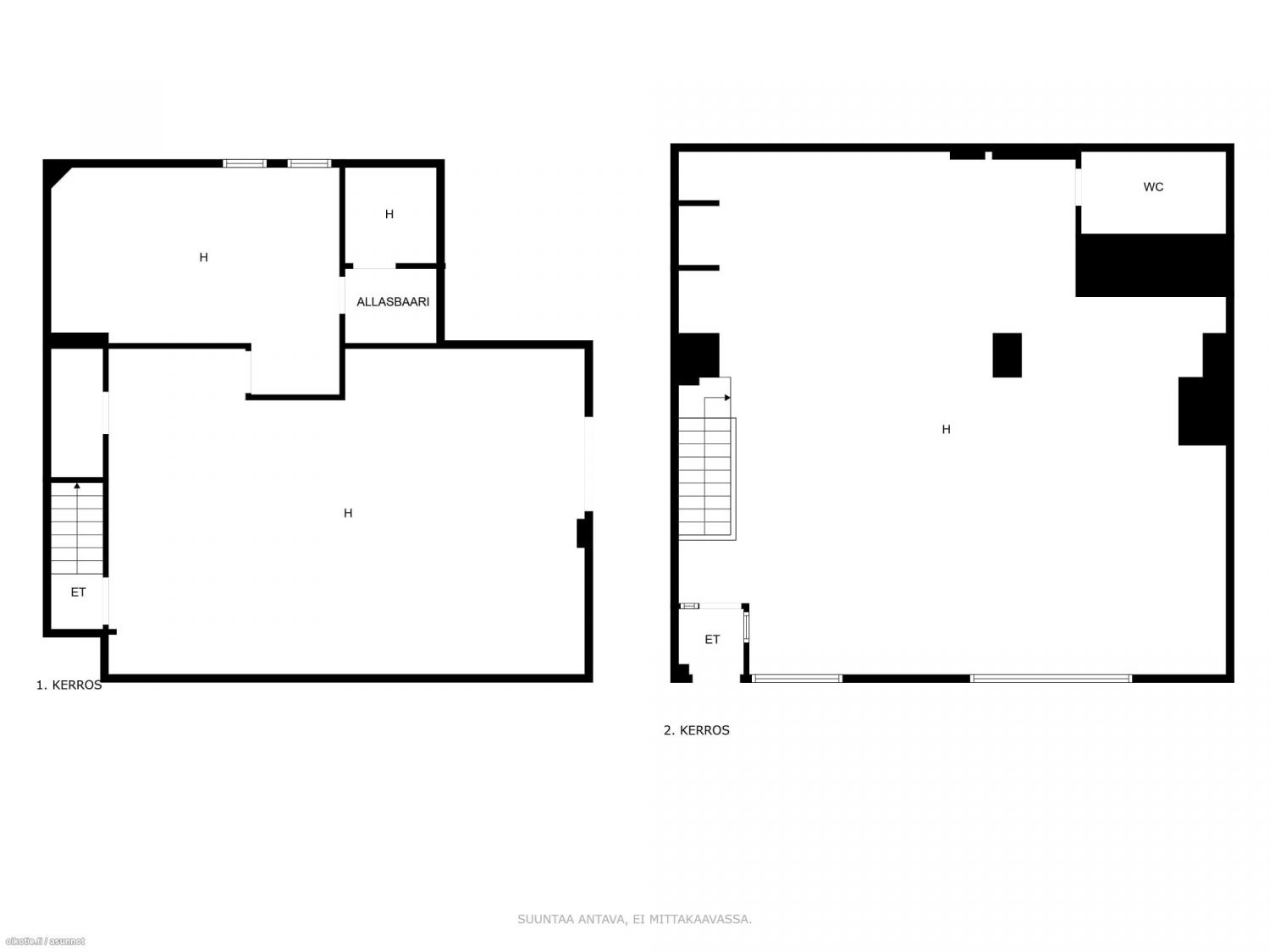
218 m2
Liiketilaa
218 m2
Näyttelytilaa
218 m2
Yhteensä
218 m2
Tilajako
107m2+111m2 kahdessa kerroksessa
Tila soveltuu
Studio/ateljé, koulutus, parturi- ja kampaamo, popup, coworking
Myyntihinta
620 000€
Sijainti
Erittäin hyvällä sijainnilla Fredrikinkadulla sijaitseva katutason liiketila tarjoaa loistavan mahdollisuuden sijoittajalle.
Kulkuyhteydet
Raitiovaunupysäkki lähellä, Metroasema lähellä, Bussipysäkki lähellä, Sujuvat yhteydet omalla autolla
Vuokralaisia
Tila on tällä hetkellä vuokrattu pitkäaikaisella vuokrasopimuksella, mikä takaa vakaan ja houkuttelevan vuokratuoton sijoittajalle.
Muuta
Erittäin hyvällä sijainnilla Fredrikinkadulla sijaitseva katutason liiketila tarjoaa loistavan mahdollisuuden sijoittajalle.
Modernit ja valoisat tilat on kahdessa kerroksessa (107 m2+111 m2) ja tarjoavat monipuolisia mahdollisuuksia.
Liike- ja asuintalo, jossa kohde sijaitsee, on viisikerroksinen punatiilinen rakennus, joka edustaa laadukasta kaupunkirakentamista. Keskeinen sijainti lähellä Kampin metroasemaa, Stockmannia ja muita keskustan palveluita tekee tilasta helposti saavutettavan niin kävellen, pyörällä kuin julkisilla liikennevälineillä.
Yhtiön isot remontit ovat tehty.
Velaton hinta 620 000 €
Myyntihinta 581 494,87 €
Velkaosuus 43 505,13 €
Tila on tällä hetkellä vuokrattu pitkäaikaisella vuokrasopimuksella, mikä takaa vakaan ja houkuttelevan vuokratuoton sijoittajalle.
Vuokratuotto n.7,5 %, mikä tekee tästä kohteesta erittäin hyvän vaihtoehdon sijoituskohteeksi.
Ominaisuudet:
- Katutason näkyvä ja keskeinen sijainti
- Kahdessa kerroksessa, yhteensä 218 m²
- Erinomainen saavutettavuus
- Pitkäaikainen vuokrasopimus
- Hyvä vuokratuotto
Modernit ja valoisat tilat on kahdessa kerroksessa (107 m2+111 m2) ja tarjoavat monipuolisia mahdollisuuksia.
Liike- ja asuintalo, jossa kohde sijaitsee, on viisikerroksinen punatiilinen rakennus, joka edustaa laadukasta kaupunkirakentamista. Keskeinen sijainti lähellä Kampin metroasemaa, Stockmannia ja muita keskustan palveluita tekee tilasta helposti saavutettavan niin kävellen, pyörällä kuin julkisilla liikennevälineillä.
Yhtiön isot remontit ovat tehty.
Velaton hinta 620 000 €
Myyntihinta 581 494,87 €
Velkaosuus 43 505,13 €
Tila on tällä hetkellä vuokrattu pitkäaikaisella vuokrasopimuksella, mikä takaa vakaan ja houkuttelevan vuokratuoton sijoittajalle.
Vuokratuotto n.7,5 %, mikä tekee tästä kohteesta erittäin hyvän vaihtoehdon sijoituskohteeksi.
Ominaisuudet:
- Katutason näkyvä ja keskeinen sijainti
- Kahdessa kerroksessa, yhteensä 218 m²
- Erinomainen saavutettavuus
- Pitkäaikainen vuokrasopimus
- Hyvä vuokratuotto
Lisätietoa saneerauksista
1988-1989 putkisaneeraus, 1993 pihajulkisivu, 1994 porraskäytävien sähkönousut ja porraskäytävien värisuunnittelu, 1997 puhelinverkko, sähkö ja runkokaapeli sekä lumiesteet. 1999 patteriverkoston säätö,2000 vesikaton korjausmaalaus, 2001 ilmanvaihtohormien puhdistus ja porrashuoneet.2002 kaukolämpölaitteet, 2003 taajuusmuuntajan uusiminen sekä vanhan lämmönjakohuoneen asbesti- ja purkutyöt. 2004 kellaritilojen perussaneeraus, 2005 pihan vesieriste ja asfaltointi sekä sisäpihan saattolämmityskaapelit syöksyissä. 2006 julkisivujen, räystäslistojen ja kourujen korjaus. 2007 kerrostasopohjapiirustusten ajantasatyö, sisäpihan ikkunat ja piha- sekä parvekeovien maalaus, parvekelattioiden ja matalan vesikaton pinnoitustyö, Kalevankadun puoleiset tammisten ristikkoikkunoiden, A-ja B-porrashuoneiden, sekä liikehuoneiston tammisten ulko-ovien lakkausten uusiminen. 2010-2011 huoneiston D 28 peruskorjaus, 2012 hissien kuntotarkastus ja tarkastuksen mukaiset kunnostustyöt, julkisivujen paikkarappaustyöt sekä Ilo kulunhallinta järjestelmän asennustyöt aloitettiin viikolla 50 2012 ja ne jatkuvat vuonna 2013. 2013 lumiesteiden lisääminen Kalevankadun ja Fredrikinkadun puoleisiin katto-osuuksiin, hissien kuntotarkastus ja tarkastuksen mukaiset kunnostustyöt, sisäpihojen paikkarappaustyöt, taloyhtiön vuokratilan K9 kunnostustyöt wc ja minikeittiö sekä LVV-verkostojen putkiston kuntotutkimus.Koneellisen ilmanvaihdon uusiminen, lisätty koneellinen tuloilma, viilennys ja lämmöntalteenotto 2015-2016 Vesipisteen lisääminen (sijoitettu kellarivarasto K5:een)
Vapautuu
Heti
Rakennusvuosi
1915
Kerros
1 / 5
Katutasossa
Näkyvällä paikalla
Hissi
Ota yhteyttä
Finhome Group Oy
Igor Rokka
Toimitusjohtaja
Kiinteistönvälittäjä, LKV
i.rokka@finhome.fi
Näytä puhelinnumero
+358 44 243 78 43
Pyydä lisätietoa
