Vuokrataan liiketilat, varastotilat - Seinäjoki
Sammonkatu 2, 60120 Seinäjoki #10813818
Nyt tarjolla monipuolinen liiketila Seinäjoella, osoitteessa Sammonkatu 2.
1500m2 vapaana olevaa liiketilaa ja varastotilaa vuokrattavan myös 600m2
Osoite
Sammonkatu 2, 60120 Seinäjoki
Tilatyyppi
Liiketilaa
1500 m2
Varastotilaa
600 m2
Yhteensä
2100 m2
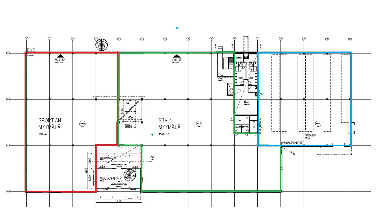
Pohjapiirros
Vuokra
Hintatiedot pyydettäessä!
Kiinteistö
Kiinteistön pinta-ala on 1528 m² ja on omalla tontilla. Tämä entinen RTV:n toimipiste tarjoaa loistavat puitteet monenlaiselle kaupalliselle tai teolliselle toiminnalle. 500m2 / 1500m2 vapaana olevaa liiketilaa ja varastotilaa vuokrattavan myös 600m2.
Vuokrattavissa Sportian tila n. 500m2, RTV liiketila n. 1500m2 ja varasto n. 600m2.
Katso ykköskerroksen pohjakuvasta jakomahdollisuudet.
Vuokrattavissa Sportian tila n. 500m2, RTV liiketila n. 1500m2 ja varasto n. 600m2.
Katso ykköskerroksen pohjakuvasta jakomahdollisuudet.
Sijainti
Kiinteistö sijaitsee näkyvällä ja saavutettavalla paikalla Seinäjoella. Alueella on vilkasta kaupallista toimintaa, ja sijainti tarjoaa hyvät yhteydet sekä keskustan että valtateiden suuntaan.
Vapautuu
Heti
Katutasossa
Näkyvällä paikalla
Liitetiedostot
Ota yhteyttä
Arvo Premises Oy
Joakim Kukkonen
Osakas, Toimitilavälittäjä
Näytä puhelinnumero
040 555 8106
Joni Männikkö
Osakas, Kiinteistönvälittäjä, LKV
Näytä puhelinnumero
044 5636441
Pyydä lisätietoa
