Vuokrataan toimistotilat - Helsinki
Kaivokatu 10, Ydinkeskusta, 00100 Helsinki #10813706
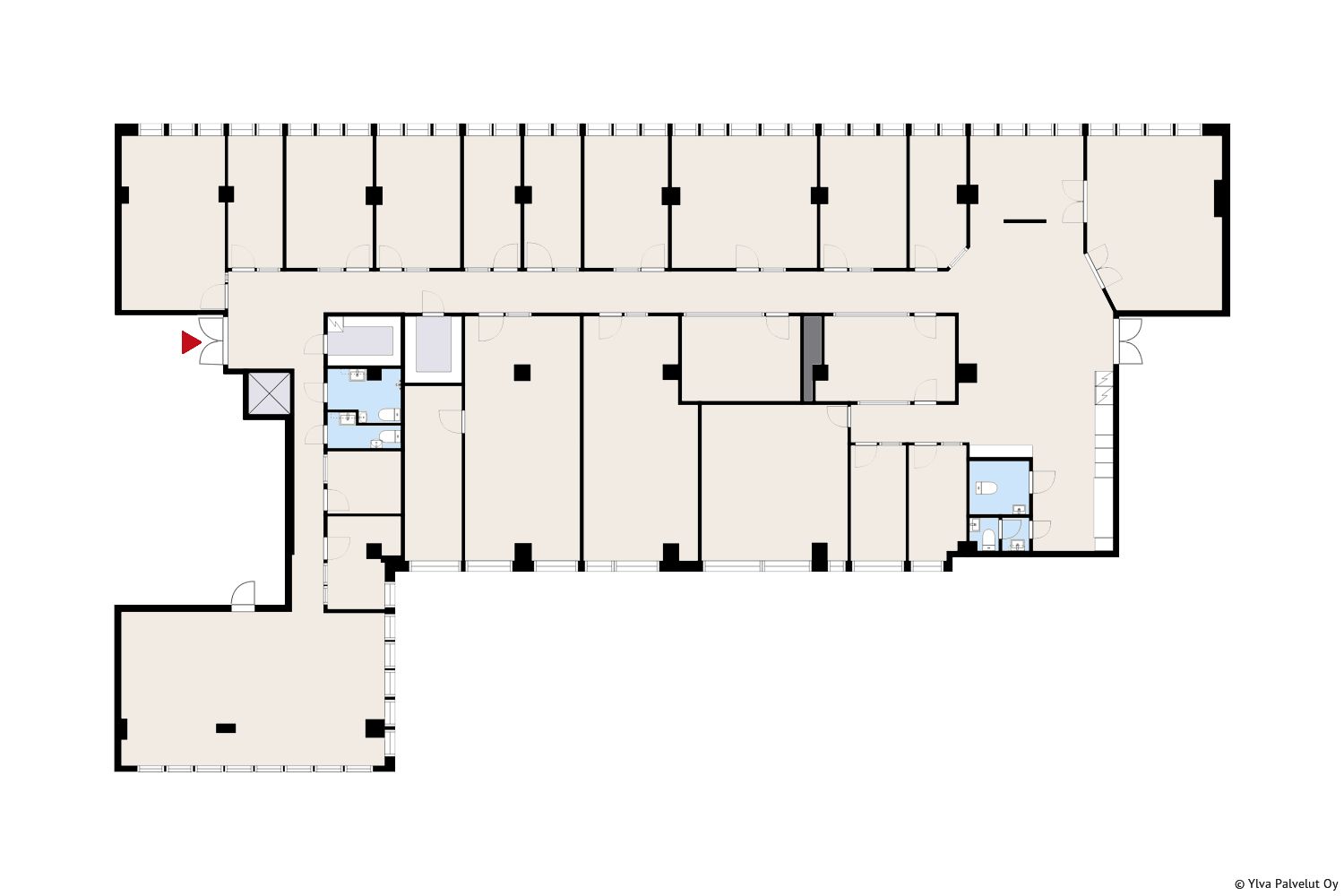
Siisti toimistotila usealla pienemmällä toimistohuoneella vuokrattavissa Kaivotalon 7. kerroksessa. Keskustan lukuisat palvelut ovat erinomaisesti saavutettavissa. Ota yhteyttä ja kysy lisätietoja kohteesta!
Osoite
Kaivokatu 10, 00100 Helsinki
Tilatyyppi
Toimistotilaa
718 m2
Kiinteistö
Kaivotalo
Palvelut
Lounasravintola
Muuta
Tilan ominaisuudet:
Vapautuu
Vapautumassa oleva
Kerros
7.
Ota yhteyttä
Ylva
Kaivokatu 10 A, 3. krs, PL 1099, 00101 Helsinki
Näytä puhelinnumero
+358 400 352 357
Ville Vaarala
Näytä puhelinnumero
040 569 0699
Pyydä lisätietoa
