Vuokrataan toimistotilat - Helsinki
Kansakoulukatu 3, Kamppi, 00100 Helsinki #10813639
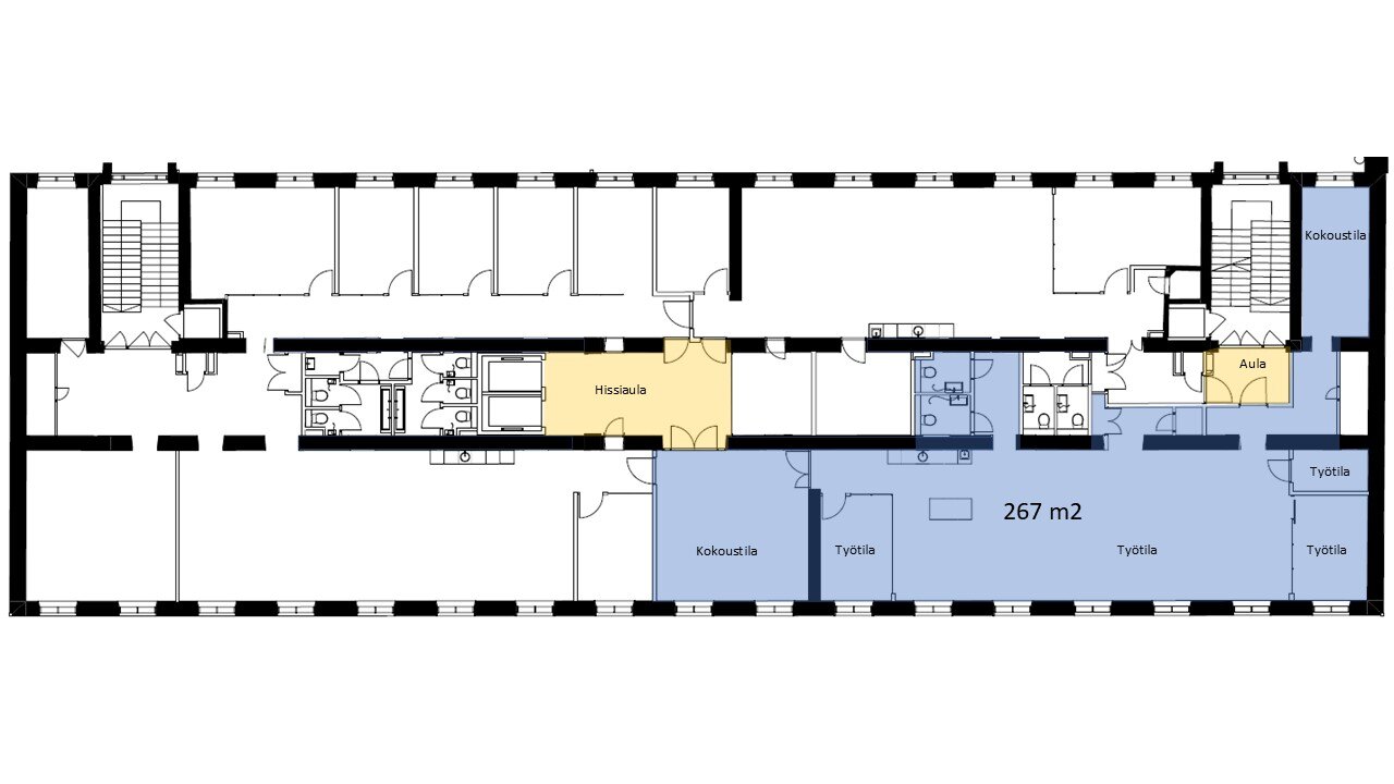
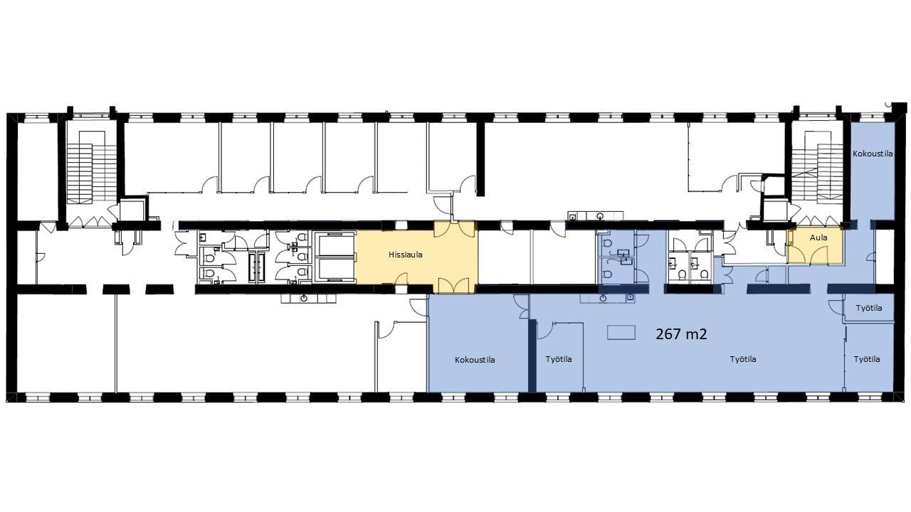
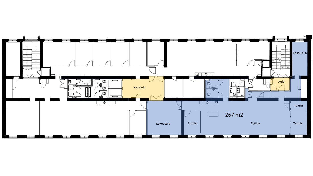
Tehokas toimistoratkaisu Helsingin ytimessä. Tila koostuu pitkälti avokonttorista, jota täydentää kaksi kokoustilaa ja kolme työhuonetta. Lisäksi tilassa on oma taukokeittiö sekä wc:t. Tila on muuttovalmis ja vapautuu huhtikuun alussa.
Kansakoulukatu 3 tarjoaa laadukasta toimistotilaa Helsingin ytimessä. Tämä innovaatiokeskus on suomalaisessa toimistokentässä ainutlaatuinen. Kiinteistö on peruskorjattu vuonna 2022 ja tilat täyttävät modernin toimiston tarpeet niin teknisesti kuin visuaalisestikin. Tällä kiinteistöllä on tilaa harvoin tarjolla, joten ota yhteyttä pikimmiten!
Me Croisettella autamme teitä löytämään teille parhaat tilat! Olemme puolueettomia asiantuntijoita ja tunnemme toimitilamarkkinat, talot sekä tilat vankalla kokemuksella. Meillä on välityksessä kaikki toimitilat ja tiedämme niiden alustavat vuokratasot.
Tehtävämme on tehdä toimitilahaustanne onnistunut ja helppo. Saamme palkkiomme kiinteistönomistajalta, joten sinulle palvelumme on täysin maksuton.
Hissi
Croisette Real Estate Partner
Erottajankatu 5 A 6, 00130 Helsinki
Näytä puhelinnumero
+358 400 585 857
Croisette Vuokraus
Näytä puhelinnumero
+358400585857
