Vuokrataan - Helsinki
Ilmalankuja 3, Ilmala, 00240 Helsinki #10813590
366 m² toimistotila/myymälätila/showroom – tyylillä ja twistillä Ilmalan Aurassa!
Onko unelmiesi toimisto/showroom moderni, valoisa ja sijaitsee täydellisellä paikalla? Jos vastasit kyllä, tämä on tilaisuutesi. Kesällä 2024 valmistunut Ilmalan Aura tarjoaa 366 m² ainutlaatuista työskentelytilaa, joka odottaa vain sinua ja tiimiäsi.
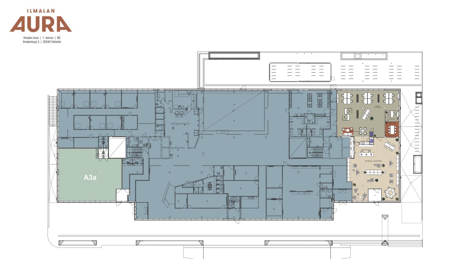
Toimistotila/myymälätila/showroom sijaitsee rakennuksen ensimmäisessä kerroksessa, jossa on avotilaa luovaan yhteistyöhön, neuvotteluhuone strategisiin päätöksiin, myymälätila/showroom vaikuttaviin esittelyihin sekä työhuoneet keskittyneelle aherrukselle. Raikkaat WC-tilatkin kuuluvat pakettiin.
Tila sijaitsee pohjakuvan oikeassa laidassa.
Ilmalan juna-asema on vieressä, Pasilan rautatieasema vain muutaman minuutin junamatkan päässä ja Helsingin päärautatieasema saavutettavissa 10 minuutissa. Täällä arki rullaa. Aulapalvelu toivottaa tervetulleeksi, catering ja lounasravintola pitävät tiimin energisenä, ja vuokrattavat neuvottelutilat tarjoavat tilaa suurillekin ideoille. Lämmin pysäköintihalli pitää autosi turvassa, ja sähköauton latausmahdollisuus varmistaa modernin liikkumisen.
Ota yhteyttä, tule käymään ja ihastu. Ilmalan Aura, sen valot ja energia odottavat juuri teitä!
Kysy lisää: jouko.raitanen@rhg.fi/0504695444
RHG Real Estate
Hämeenkatu 2 B20, 20500 Turku
Näytä puhelinnumero
020 734 4020
Jouko Raitanen
Näytä puhelinnumero
050 469 5444
