Vuokrataan toimistotilat - Helsinki
Kansakoulukatu 3, Kamppi, 00100 Helsinki #10813514
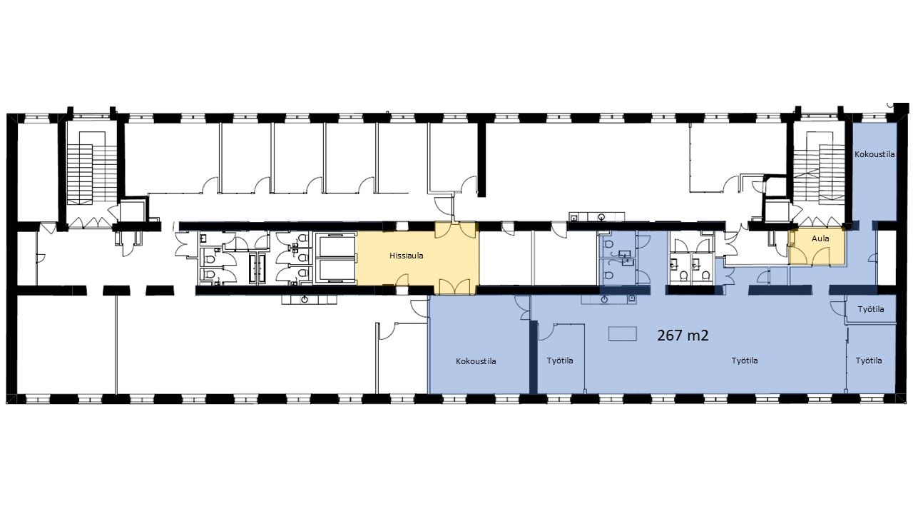
Modernisoitavaa, laadukasta toimistotilaa Helsingin keskustasta, loistosijainnilta Kampista 3. kerroksesta (kerrosala 267 m2).
Helsingin kaupungin entinen virastotalo uudistetaan täysin. Tulevalla vuokralaisella erinomainen mahdollisuus päästä nyt mukaan suunnittelemaan tulevaisuuden toimistoa.
Kiinteistössä Innovation Homen isännöimät aulapalvelu sekä kellarikerrosten neuvottelutilat ja tapahtumatila. Parkkihallissa ja ulkona parkkipaikkoja. Lisäksi EuroParkin P-CityForum -pysäköinti vain 40 metriä pääsisäänkäynniltä. Pyöräilijöille tarjolla pyöräparkki sekä suihku- ja saunatilat kellaritiloissa,
Keskeinen sijainti Kampissa mahdollistaa hyvät liikenneyhteydet. Kampin metroasema ja bussiterminaali sijaitsevat korttelin päässä, ja päärautatieasema kävelymatkan päässä. Kampin monipuoliset palvelut ja ravintolatarjonta ympärillä.
Lisätiedot numerosta 020 7290 710 ja lisää kohteita premises.fi .
Kohteella ei lain edellyttämää energiatodistusta tai energialuokka ei tiedossa.Kerros: 3
CRE PREMISES
Puh. Näytä puhelinnumero 020 7290 710
Vantaankoskentie 14
01670 VANTAA
