Vuokrataan toimistotilat - Helsinki
Kansakoulukatu 3, Kamppi, 00100 Helsinki #10813489
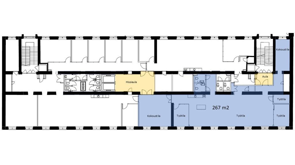
Vuokrattavana toimistotilaa Helsingin keskustasta.
Tämä 267 m² muuttovalmis toimisto sijaitsee kiinteistön 3. kerroksessa.
Kansakoulukatu 3 on Helsingin Kampissa sijaitseva laadukas ja moderni toimistorakennus, jonka peruskorjaus valmistui vuonna 2022. Samalla uusittiin myös talotekniikka. Vuonna 1931 valmistuneella rakennuksella on pitkä historia, ja se on toiminut aiemmin toimitilojen lisäksi muun muassa opetuskäytössä ja näyttelytilana.
Kysy lisää numerosta 044 723 4700 tai info@bref.fi. Palvelumme on tilanhakijoille ilmainen.
Hissi
Bureau Real Estate Finland Oy
Lars Sonckin kaari 16, 02600 Espoo
Näytä puhelinnumero
0447234700
Bureau Real Estate Finland Oy
https://www.bref.fi