Vuokrataan toimistotilat - Espoo
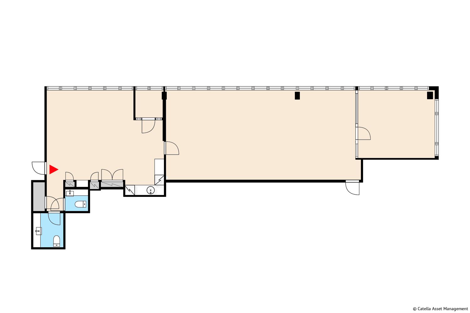
Metsänneidonkuja 6, Duo, Pohjois-Tapiola, 02130 Espoo #10813420
Jos unelmiesi toimistoa ei löydy, se tehdään! Spektri Business Parkissa tila muokataan juuri sinun yrityksesi tarpeisiin, ja katamme myös muuttosi kulut. Tarjoamme täyden suunnittelupalvelun ja joustavat muutostyöt, joiden avulla syntyy työympäristö, joka toimii ja inspiroi. Spektri Business Parkissa vuokrattavana Duo-talon 3. kerroksen avara toimisto, josta näymät Kehä I:n suuntaan sekä Valkjärventielle. Toimitilassa oma keittiö ja wc-tilat.
Spektri tarjoaa muuntojoustavat ja tyylikkäät tilat sekä kattavat palvelut, jotka tekevät työpäivistäsi entistä parempia. Spektrille on myönnetty BREEAM In-Use Excellent -sertifikaatti. Keskeinen sijainti Pohjois-Tapiolassa ja Kehä I:n varrella takaa loistavat kulkuyhteydet sekä omalla autolla että julkisilla liikennevälineillä.
Spektrissä on kaksi suosittua lounasravintolaa, jotka tarjoavat myös cateringpalveluita. Aina avoinna olevasta 24/7 Marketista voit ostaa välipalaa ravintoloiden ollessa kiinni. Asiakkaiden sopimuksiin sisältyy kuntosalin ja saunan käyttöoikeus. Tutustu Spektrin laajaan palveluvalikoimaan verkkosivuillamme!
Kysy lisää tästä tilasta tai muista mahdollisesti vapautuvista vaihtoehdoista – yhdessä löydämme yrityksellesi täydellisen paikan. Lämpimästi tervetuloa tutustumaan!
Catella Asset Management
Aleksanterinkatu 46 A, 00100 Helsinki
Jermu Kujanpää
Näytä puhelinnumero
010 522 0356
Fanni Hirvinen
Näytä puhelinnumero
010 522 0239
Catella Asset Management on itsenäinen ja yritteliäs kiinteistövarallisuudenhoitoyhtiö. Yhtiö on osa Catella-konsernia.
http://www.catella.com/en/Finland/AssetManagement