Vuokrataan toimistotilat - Helsinki
Lintulahdenkuja 10, Sörnäinen, 00500 Helsinki #10813413
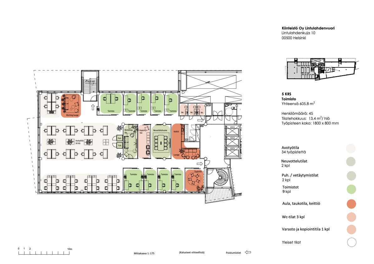
Valoisa ja edustava, täysin remontoitu 605,8 m² toimistotila modernissa kiinteistössä Helsingin Sörnäisissä.
Vuokrattavana toisen kerroksen muuttovalmis toimisto, jossa kaksi neuvotteluhuonetta.
Lintulahdenvuori tarjoaa korkealaatuista toimitilaa trendikkäässä ja uudistuvassa Suvilahdessa Sörnäisten rantatien varrella. Vuonna 2009 valmistuneesta monipuolisesta toimistokiinteistöstä on upeat merelliset maisemat, ja sillä on LEED Platinum -luokitus.
Hakaniemen ja Kalasataman välissä sijaitseva Suvilahti on dynaaminen tapahtuma- ja kohtaamispaikka teollisuusmiljöössä. Lähin metroasema ja raitiovaunupysäkki sijaitsevat Sörnäisissä muutaman sadan metrin päässä. Bussit liikennöivät läheltä kiinteistöä. Talon yhteydessä on parkkitilaa ja talon läheisyydessä kadunvarsipaikkoja. Lähellä sijaitsevan Teurastamon alueella on useita ravintoloita, baareja ja kahviloita.
Näkyvällä paikalla
Jaettavissa
Hissi
ScanReal Oy LKV
Opus Business Park
Hitsaajankatu 24
00810 Helsinki
info@scanreal.fi
Puh:
Näytä puhelinnumero
020 730 8830
Sopivat toimitilat yhdellä otolla!
Kartoitamme toimitilatarpeesi ja etsimme yrityksellesi parhaiten sopivat vapaat toimitilat. Koska vuokranantajat maksavat palvelumme, on tämä yrityksellesi veloituksetonta.
OTA YHTEYTTÄ - SOVI NÄYTTÖ!
Kaikki kohteemme eivät ole netissä, kerro tilatarpeesi niin kartoitamme vaihtoehdot.
Palvelumme on tilanhakijalle ilmainen
