Vuokrataan toimistotilat - Helsinki
Käenkuja 1, Sörnäinen, 00500 Helsinki #10813299
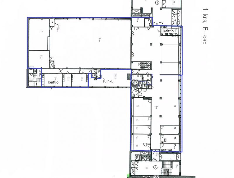
Vuokrataan 1. kerroksen uniikki 878m2 tila, jossa erikoisuutena noin 300 m2 kokoinen avotila jopa yli 5 metrin kattokorkeudella. Tila taipuu myös esimerkiksi seminaari- tai tapahtumatilaksi.
Muutoin tiloissa tällä hetkellä useita työhuoneita, neuvotteluhuone, keittiö, suihku sekä wc:t.
Tila on muokattavissa vuokralaisen toiveiden mukaan.
Kiinteistössä löytyy neuvottelutiloja, aulapalvelu, kuntosali, lounasravintola/kahvila, pyöräparkki, suihkulliset sosiaalitilat, parkkihalli ja sähköautojen latauspisteet.
Hyvät julkiset yhteydet: bussi-/raitiovaunupysäkki 100m, metro 200m2.
Kysyy lisää!
Katutasossa
Näkyvällä paikalla
Jaettavissa
Comreal Oy LKV
Salla Saraniemi
Näytä puhelinnumero
040 138 1081
P.
Näytä puhelinnumero
020 744 1000
Läkkisepänkuja 6, 00620 Helsinki
Comreal Oy on kasvava ja osaava kiinteistöalan palveluntuottaja kiinteistöjen omistajille ja käyttäjille.
Kiinteistö on sijoittajalle hyvä sijoitus vain, jos siellä on tyytyväiset asiakkaat, eli vuokralaiset. Siksi laadukas asiakaspalvelu on toiminnan lähtökohta.
