Vuokrataan toimistotilat - Helsinki
Porkkalankatu 5, Ruoholahti, 00180 Helsinki #10813254
Tasokas, moderni ja loistokuntoinen 644 m² toimistotila upeilla näkymillä Helsingin Ruoholahdessa.
Osoite
Porkkalankatu 5, 00180 Helsinki
Tilatyyppi
Toimistotilaa
644 m2
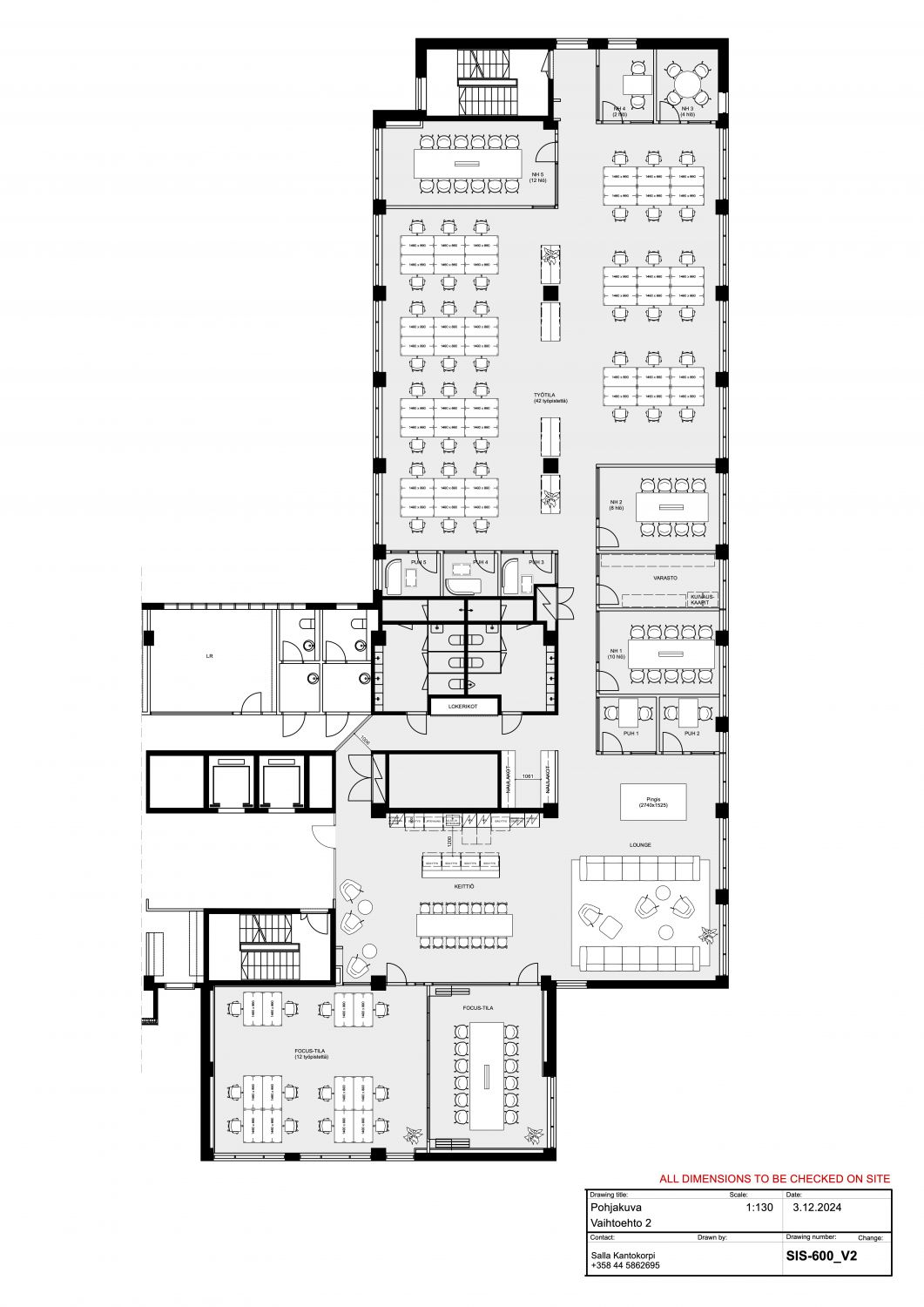
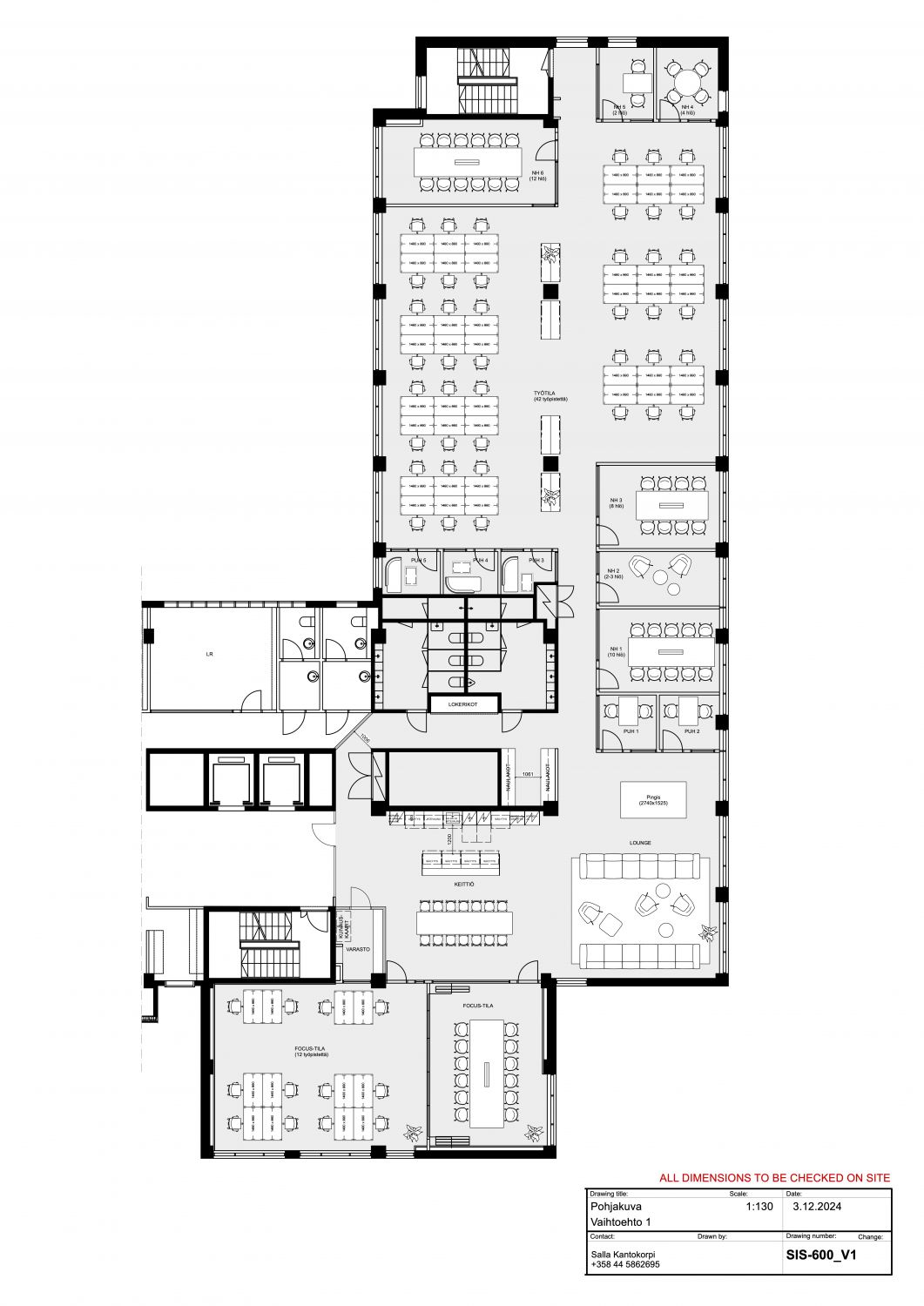
Pohjapiirros
Kiinteistö
Kuudennen kerroksen toimistosta merinäkymä koko toimiston pitkältä sivulta.
Kiinteistöstä on hyvät yhteydet koko Helsingin alueelle, sieltä pääsee suoraan länsiväylälle, ja metroasema on vain 300 metrin päästä.
Porkkalankatu 5:ssä on myös vuokralaisten ja vierailijoiden käytössä oleva kahvila, jossa on laaja lounasvalikoima sekä autopesula ja oma kuntosali talon vuokralaisille
Tila on tasokkaasti remontoitu ja muuttovalmis.
Ilmoituksen sisäkuvat ovat yleiskuvia kiinteistön muista tiloista.
P5 pähkinänkuoressa:
·Lämmitetty autotalli sähköajoneuvojen latureilla: Tarjoaa käteviä pysäköintiratkaisuja.
·Moderni, korkealuokkainen yli 1 000 neliömetrin kuntosali: Täysin varusteltu kuntokeskus, jossa on huippuluokan laitteet sekä ammattitaitoiset personal trainer- ja hierojat, joiden avulla vuokralaiset voivat ylläpitää terveellisiä elämäntapoja.
· Pukuhuoneet suihkulla: takaavat mukavuuden niille, jotka haluavat virkistäytyä työmatkan jälkeen jaloin tai pyörällä.
·Pyörien pysäköinti: Lämmitetyt sisätilat ja turvalliset ulkotilat, jotka palvelevat pyöräilijöitä ympäri vuoden.
· Poikkeuksellinen lounasravintola: Loistava lounasravintola paikan päällä, joka tarjoaa erilaisia herkullisia ja terveellisiä ateriavaihtoehtoja. Tarjolla on tietysti myös catering.
·Aula- ja vastaanottopalvelut: Ammattitaitoinen aulan henkilökunta toivottaa lämpimästi tervetulleeksi ja auttaa vuokralaisten tarpeissa, kun taas vastaanottoalue antaa hienon ensivaikutelman.
·Lyhytaikainen yhteinen kokoustila: upouusi korkeatasoinen kokoustila lyhytaikaiseen vuokraukseen kaikille vuokralaisille.
·Autonpesupalvelut: Lisää lisämukavuutta kiireisille ammattilaisille, sillä laadukas autohuolto on saatavilla paikan päällä.
·300m metroon ja 250m raitiovaunuun 8
·Hotel Holiday Inn 100m P5:stä ja Ruoholahden Citymarket vastapäätä Porkkalankatua
Kiinteistöstä on hyvät yhteydet koko Helsingin alueelle, sieltä pääsee suoraan länsiväylälle, ja metroasema on vain 300 metrin päästä.
Porkkalankatu 5:ssä on myös vuokralaisten ja vierailijoiden käytössä oleva kahvila, jossa on laaja lounasvalikoima sekä autopesula ja oma kuntosali talon vuokralaisille
Tila on tasokkaasti remontoitu ja muuttovalmis.
Ilmoituksen sisäkuvat ovat yleiskuvia kiinteistön muista tiloista.
P5 pähkinänkuoressa:
·Lämmitetty autotalli sähköajoneuvojen latureilla: Tarjoaa käteviä pysäköintiratkaisuja.
·Moderni, korkealuokkainen yli 1 000 neliömetrin kuntosali: Täysin varusteltu kuntokeskus, jossa on huippuluokan laitteet sekä ammattitaitoiset personal trainer- ja hierojat, joiden avulla vuokralaiset voivat ylläpitää terveellisiä elämäntapoja.
· Pukuhuoneet suihkulla: takaavat mukavuuden niille, jotka haluavat virkistäytyä työmatkan jälkeen jaloin tai pyörällä.
·Pyörien pysäköinti: Lämmitetyt sisätilat ja turvalliset ulkotilat, jotka palvelevat pyöräilijöitä ympäri vuoden.
· Poikkeuksellinen lounasravintola: Loistava lounasravintola paikan päällä, joka tarjoaa erilaisia herkullisia ja terveellisiä ateriavaihtoehtoja. Tarjolla on tietysti myös catering.
·Aula- ja vastaanottopalvelut: Ammattitaitoinen aulan henkilökunta toivottaa lämpimästi tervetulleeksi ja auttaa vuokralaisten tarpeissa, kun taas vastaanottoalue antaa hienon ensivaikutelman.
·Lyhytaikainen yhteinen kokoustila: upouusi korkeatasoinen kokoustila lyhytaikaiseen vuokraukseen kaikille vuokralaisille.
·Autonpesupalvelut: Lisää lisämukavuutta kiireisille ammattilaisille, sillä laadukas autohuolto on saatavilla paikan päällä.
·300m metroon ja 250m raitiovaunuun 8
·Hotel Holiday Inn 100m P5:stä ja Ruoholahden Citymarket vastapäätä Porkkalankatua
Pysäköinti
Autohalli kellarikerroksessa.
Kulkuyhteydet
Hyvät kulkuyhteydet: metro, raitiovaunu, bussi. Lähellä Länsiväylää.
Vapautuu
Heti
Kerros
6 / 7
Energiatehokkuusluokka
Ei lain edellyttämää energiatodistusta
Näkyvällä paikalla
Hissi
Ota yhteyttä
ScanReal Oy LKV
Opus Business Park
Hitsaajankatu 24
00810 Helsinki
info@scanreal.fi
Puh:
Näytä puhelinnumero
020 730 8830
Sopivat toimitilat yhdellä otolla!
Kartoitamme toimitilatarpeesi ja etsimme yrityksellesi parhaiten sopivat vapaat toimitilat. Koska vuokranantajat maksavat palvelumme, on tämä yrityksellesi veloituksetonta.
OTA YHTEYTTÄ - SOVI NÄYTTÖ!
Kaikki kohteemme eivät ole netissä, kerro tilatarpeesi niin kartoitamme vaihtoehdot.
Palvelumme on tilanhakijalle ilmainen
Pyydä lisätietoa
