Vuokrataan liiketilat - Oulu
Yrttipellontie 6, Peltola, 90230 Oulu #10813215
Technopolis Peltola sijaitsee Oulussa, Kontinkankaan kampusalueella.
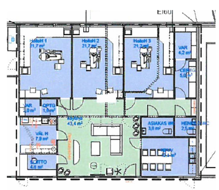
Vuokrattavana 178 m² toimitila kiinteistön 1. kerroksesta. Tila on valmis hammaslääkäriasema, mutta se soveltuu hyvin myös muuhun terveydenhuollon toimintaan. Tilassa on kolme hoitohuonetta, aulatila sekä keittiö- ja wc-tilat. Neliömäärään sisältyy jyvitys yhteiskäyttöisistä tiloista.
Technopolis on osa kampusalueen hyvinvointi- ja terveysteknologian Oulu Health -keskittymää. Kiinteistöllä on hyvä sijainti moottoritien varrella, vain muutaman kilometrin päässä Oulun keskustasta. Technopolis Peltolassa on laadukkaat kokous- ja tapahtumatilat, aulapalvelu, hyvät ravintolat sekä iso parkkihalli. Technopolis tarjoaa monipuoliset yritystoimintaa helpottavat palvelut, jolloin yritykset voivat keskittyä omaan ydinliiketoimintaansa.
Kysy lisää numerosta 044 723 4700 tai info@bref.fi. Palvelumme on tilanhakijoille ilmainen.
Bureau Real Estate Finland Oy
Lars Sonckin kaari 16, 02600 Espoo
Näytä puhelinnumero
0447234700
Bureau Real Estate Finland Oy
https://www.bref.fi