Vuokrataan toimistotilat, tuotantotilat, varastotilat, työtilat, autotalli/-hallitilat - Porvoo
Kisällintie 8, 06100 Porvoo #10813208
Korkea hallitila moneen käyttöön hyvällä sijainnilla Porvoossa! Vuokra 2'590 €/kk + alv
Osoite
Kisällintie 8, 06100 Porvoo
Tilatyyppi
Toimistotilaa
50 m2
Tuotantotilaa
395 m2
Varastotilaa
395 m2
Työtilaa
395 m2
Autotalli/-hallitilaa
395 m2
Yhteensä
395 m2
Virtuaaliesittely
Vuokra
2'590 €/kk +alv
Vuokraan sisältyy lämpö
Muuta
Tarmolan teollisuusalueella on nyt vuokrattavana hyvä hallitila isosta teollisuusrakennuksesta monenlaiseen käyttöön. Halli soveltuu erityisen hyvin varastointiin sekä pienimuotoiseen työskentelyyn ja tuotantoon.
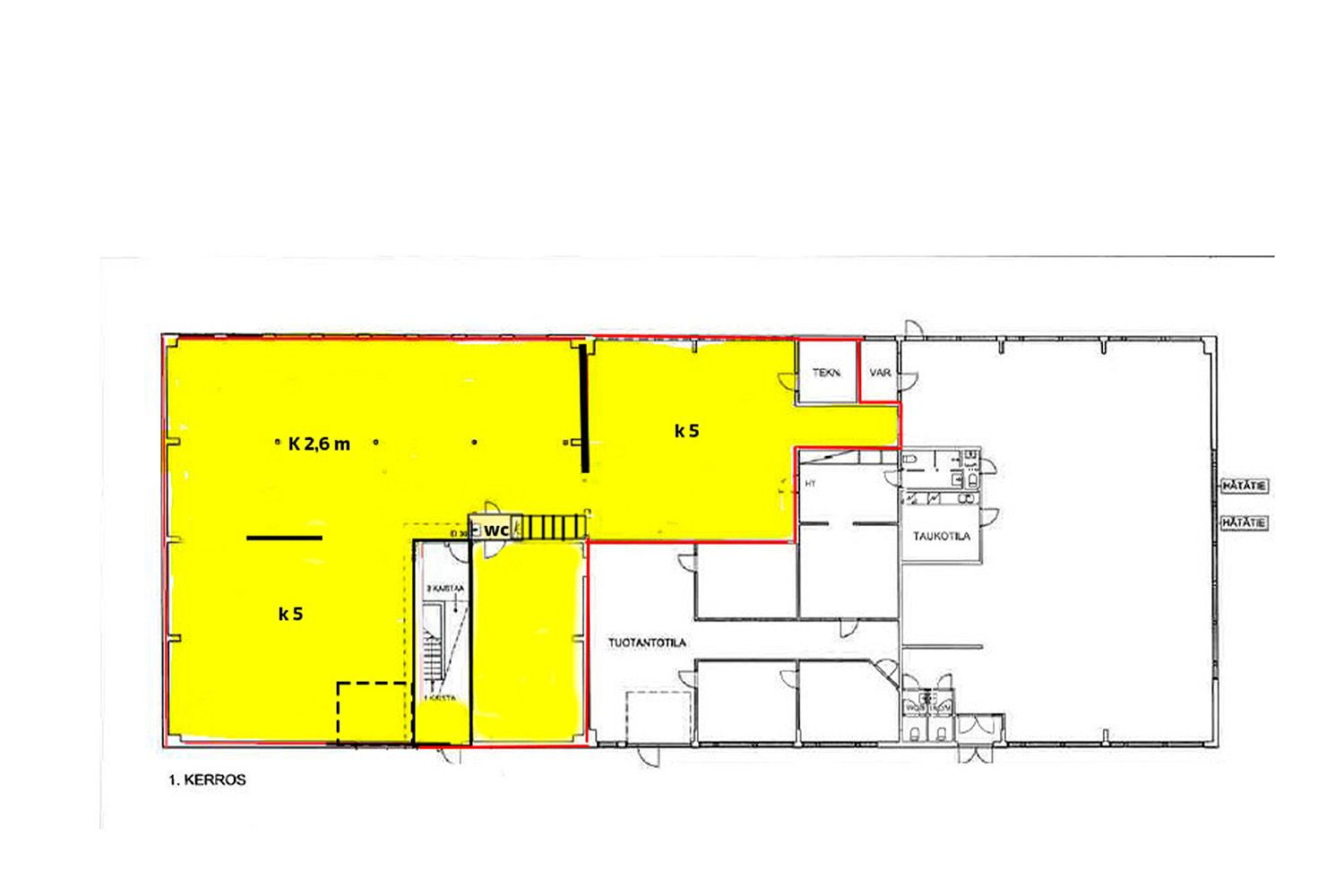
Halli on pinta-alaltaan yhteensä noin 395 m² ja se on tällä hetkellä pääosin avonaista tilaa. Hallin pohja on toimiva ja tila on kätevä jakaa kevyin väliseinin useampaan tilaan. Hallin sisäkorkeus on etuosassa noin 5 metriä ja välissä matalampaa sekä taas takaosassa korkeampaa tilaa (katso pohjakuvasta tarkemmin). Tilaan on yksi iso nosto-ovi (L3,9 m x K3,9 m) sekä erillinen käyntiovi. Hallin ensimmäisessä kerroksessa on wc ja toisessa kerroksessa hyvänkokoinen taukotila/toimistotila pinta-alaltaan 51 m², jonka ikkunanäkymä sisäpihalle päin.
Tilaan tulee iltaisin meluhaittaa hallin yläpuolella (taukotilan vieressä) olevasta liikuntatilasta.
Pihalla pysäköintitilaa erikseen sovitusti tarpeen mukaan, piha-alue on lisäksi aidattu.
Nopea yhteys Porvoon moottoritielle ja Porvoon keskustaan vain muutama kilometri.
Moneen soveltuva hallitila hyvällä sijainnilla!
Kohdetiedot
Sijainti
Katuosoite: Kisällintie 8, 06150 Porvoo
Kaupunginosa: Tarmola
Ympäristö: Teollisuusalue
Rakennus/huoneisto
Pinta-alat: Noin 395 m²
Rakennustyyppi: Teollisuusrakennus
Rakennusvuosi: 1974
Energiatodistus: Laki ei edellytä
Huoneistoselitelmä: Hallitila
Kunto, varusteet ja palvelut: Nosto-ovi, wc, siivouskomero, toimistotila. Tarmolan palvelut lähellä.
Vapautuu: Heti vapaa
Pysäköinti: Pihassa
Vuokrahinta ja kulut
Kuukausivuokra: 2’590 €/kk + alv
Vesimaksu: Sovitaan erikseen
Sähkö: Mittauksen mukaan
Lämmitys: Sisältyy vuokraan
Autopaikkamaksu: Ei ole
Muut ehdot: Minimisopimuskausi 12 kk, vakuus 3 kk:n vuokraa vastaava summa, luottotietojen on oltava kunnossa
Halli on pinta-alaltaan yhteensä noin 395 m² ja se on tällä hetkellä pääosin avonaista tilaa. Hallin pohja on toimiva ja tila on kätevä jakaa kevyin väliseinin useampaan tilaan. Hallin sisäkorkeus on etuosassa noin 5 metriä ja välissä matalampaa sekä taas takaosassa korkeampaa tilaa (katso pohjakuvasta tarkemmin). Tilaan on yksi iso nosto-ovi (L3,9 m x K3,9 m) sekä erillinen käyntiovi. Hallin ensimmäisessä kerroksessa on wc ja toisessa kerroksessa hyvänkokoinen taukotila/toimistotila pinta-alaltaan 51 m², jonka ikkunanäkymä sisäpihalle päin.
Tilaan tulee iltaisin meluhaittaa hallin yläpuolella (taukotilan vieressä) olevasta liikuntatilasta.
Pihalla pysäköintitilaa erikseen sovitusti tarpeen mukaan, piha-alue on lisäksi aidattu.
Nopea yhteys Porvoon moottoritielle ja Porvoon keskustaan vain muutama kilometri.
Moneen soveltuva hallitila hyvällä sijainnilla!
Kohdetiedot
Sijainti
Katuosoite: Kisällintie 8, 06150 Porvoo
Kaupunginosa: Tarmola
Ympäristö: Teollisuusalue
Rakennus/huoneisto
Pinta-alat: Noin 395 m²
Rakennustyyppi: Teollisuusrakennus
Rakennusvuosi: 1974
Energiatodistus: Laki ei edellytä
Huoneistoselitelmä: Hallitila
Kunto, varusteet ja palvelut: Nosto-ovi, wc, siivouskomero, toimistotila. Tarmolan palvelut lähellä.
Vapautuu: Heti vapaa
Pysäköinti: Pihassa
Vuokrahinta ja kulut
Kuukausivuokra: 2’590 €/kk + alv
Vesimaksu: Sovitaan erikseen
Sähkö: Mittauksen mukaan
Lämmitys: Sisältyy vuokraan
Autopaikkamaksu: Ei ole
Muut ehdot: Minimisopimuskausi 12 kk, vakuus 3 kk:n vuokraa vastaava summa, luottotietojen on oltava kunnossa
Vapautuu
Heti
Rakennusvuosi
1974
Katutasossa
Näkyvällä paikalla
Ota yhteyttä
Tilat.fi
KTM, LKV Antti Soivio
Näytä puhelinnumero
0400 446 553
OTM, LKV Riikka Tuominen
Näytä puhelinnumero
0400 551 790
KTM, LKV Maria-Sofia Puhakka
Näytä puhelinnumero
0400-150330
MBA, LKV Susanne Wallenius
Näytä puhelinnumero
0400-128877
LKV Tilat.fi Oy on toimitilojen välitykseen erikoistunut yritys.
http://www.tilat.fiPyydä lisätietoa
