Vuokrataan liiketilat - Jyväskylä
Kauppakeskus Sokkari, Kauppakatu 24, Keskusta, 40100 Jyväskylä #10813108
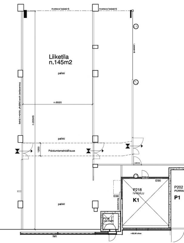
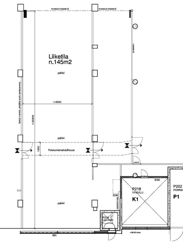
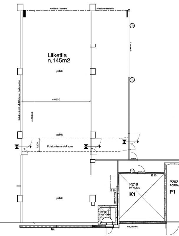
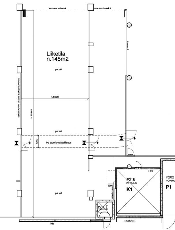
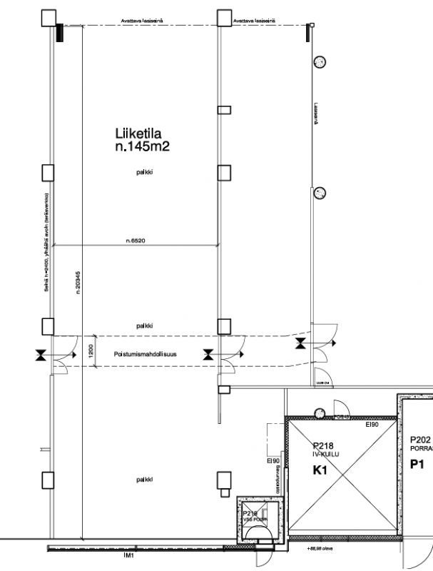
Vuokrataan 145 m2 liiketilaa Jyväskylän keskustasta, kauppakeskus Sokkarista
Osoite
Kauppakatu 24, 40100 Jyväskylä
Tilatyyppi
Liiketilaa
145 m2
Muuta
Vuokrataan heti vapaa liiketila Jyväskylän keskustan vilkkaimmasta kauppakeskuksesta Sokkarilta. Asemakadun puolelta katutason tilassa, -1. kerroksessa oleva liiketila sijaitsee vilkkaan kauppakäytävän varrella, vastapäätä Mestarin Herkun ruokakauppaa. Tila on helposti saavutettavissa myös liukuportailla tai hissillä. Kauppakeskuksen yhteydessä on parkkihalli ja paikallisliikenteen bussit liikennöivät aivan vierestä. Ota yhteyttä ja sovi esittelyaika.
Vapautuu
Kysy
Kerros
2
Ota yhteyttä
Pyydä lisätietoa
