Vuokrataan toimistotilat - Helsinki
Salomonkatu 17, Kamppi, 00100 Helsinki #10813075
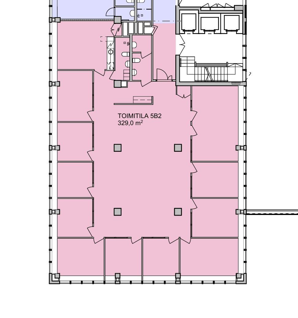
Viidennen kerroksen toimisto läpitalon kkunoilla. Tila koosttu erikokoisista työhuoneista sekä tauko- ja wc-tiloista. Autotalon siistit ja valoisat toimitilat tarjoavat viihtyisän työympäristön.
Autotalokortteli sijaitsee näkyvällä paikalla Kampin kauppakeskuksen vieressä. Kohteeseen on erinomaiset julkiset kulkuyhteydet metrolla, raitiovaunulla ja busseilla. Yksityisautoille on maanalaista pysäköintitilaa korttelin omassa autohallissa. Hiljattain remontoitu näyttävä aulatila ottaa vieraat ja työntekijät vastaan tyylillä. Ennen Autotalon rakentamista paikalla oli jo 1800-luvulla rakennettuja kasarmeja, jotka alun perin muodostivat Turun kasarmiin liittyneen varuskunnan läntisimmän osan. Autotalon rakennutti Helsingin Autotalo Oy, jonka perusti autojen maahantuontiliike Korpivaara & Halla Oy. Talon suunnittelivat arkkitehdit Veli Valorinta ja Eino Tuompo. Alunperin talossa sijaitsi autokauppa ja huoltoasema eli nimensä mukaista toimintaa. Nyt autot ajavat ohitse ja vuokralaiset talon halliin, talon tiloissa on moderneja liike- ja toimistotiloja.
Me Croisettella autamme teitä löytämään teille parhaat tilat! Olemme puolueettomia asiantuntijoita ja tunnemme toimitilamarkkinat, talot sekä tilat vankalla kokemuksella. Meillä on välityksessä kaikki toimitilat ja tiedämme niiden alustavat vuokratasot.
Tehtävämme on tehdä toimitilahaustanne onnistunut ja helppo. Saamme palkkiomme kiinteistönomistajalta, joten sinulle palvelumme on täysin maksuton.
Hissi
Croisette Real Estate Partner
Erottajankatu 5 A 6, 00130 Helsinki
Näytä puhelinnumero
+358 400 585 857
Croisette Vuokraus
Näytä puhelinnumero
+358400585857
