Vuokrataan toimistotilat - Helsinki
Akseli & Elina, Lemuntie 3-5, Vallila, 00510 Helsinki #10812936
Valoisa loft-henkinen 103 m² toimisto Vallilasta.
Osoite
Lemuntie 3-5, 00510 Helsinki
Tilatyyppi
Toimistotilaa
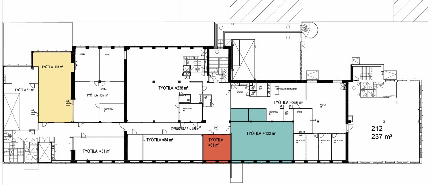
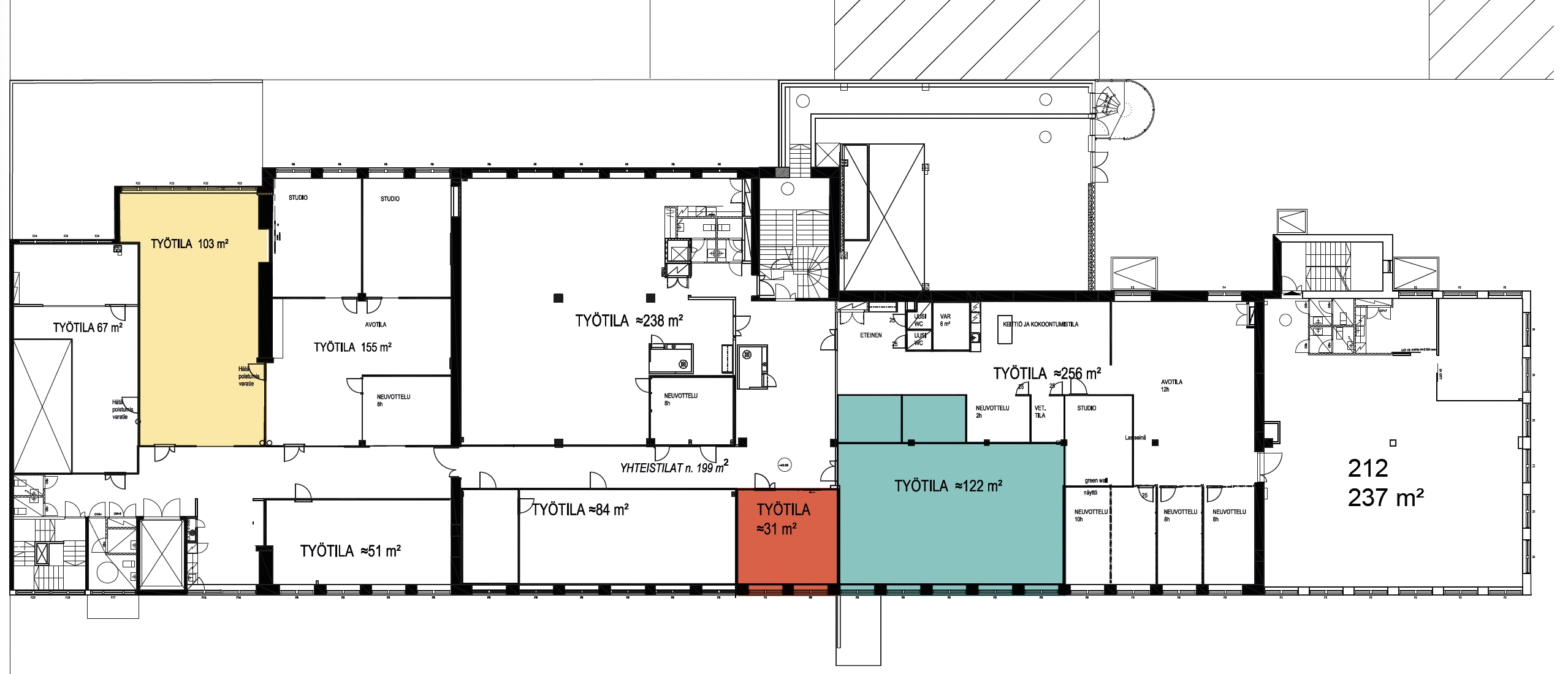
103 m2
Pohjapiirros
Kiinteistö
Vallilan Akseli & Elina on dynaaminen kokonaisuus, joka on viime vuosina palvellut etenkin designin, teollisen muotoilun sekä muiden luovien alojen yrityksiä. Kiinteistön tilat on suunniteltu ja toteutettu sopimaan hyvin yhteen nykypäivän työelämän vaatimusten kanssa.
Talo rakennettiin 1939 linja-autokoritehtaaksi. Nykyään historiallinen talo on toimistokäytössä, ja siinä toimii myös viihtyisä lounasravintola.
Tilat ovat kauttaaltaan saneerattuja ja siistejä, ikkunat ovat suuria ja tilat erottuvat edukseen verrattuna perinteiseen toimistoon.
Ilmoituksen kuvat ovat yleiskuvia kiinteistön eri tiloista
Akselin & Elinan kulmalta on suora kulkuyhteys Aimo Parkin lämpimään parkkihalliin, eli pysäköintipaikkoja on aina kätevästi tarjolla niin yrityksesi henkilöstölle kuin asiakkaillekin. Paikkojen hinnat ovat sijaintiin suhteutettuna huokeat.
Ekologisuus ja kestävän kehityksen mukaiset toimintamallit ovat Akselin & Elinan arjessa vahvasti läsnä. Esimerkiksi jätehuolto on kokonaan hiilineutraali, sen CO2-päästöt hyvitetään vuosittain pysyviä hiilinieluja metsittämällä. Lisäksi kaikki kulutussähkö on ympäristöystävällistä biovoimatuotantoa, eli peräisin uusiutuvista energialähteistä.
Akselin & Elinan pihalta löytyy sähköfillareita kaikkien vuokralaisten käyttöön. Kiinteistön kellarikerroksessa on lisäksi kätevä fillariparkki omille polkupyörille sekä puku- ja pesutilat fillarireippailijolle.
Talo rakennettiin 1939 linja-autokoritehtaaksi. Nykyään historiallinen talo on toimistokäytössä, ja siinä toimii myös viihtyisä lounasravintola.
Tilat ovat kauttaaltaan saneerattuja ja siistejä, ikkunat ovat suuria ja tilat erottuvat edukseen verrattuna perinteiseen toimistoon.
Ilmoituksen kuvat ovat yleiskuvia kiinteistön eri tiloista
Akselin & Elinan kulmalta on suora kulkuyhteys Aimo Parkin lämpimään parkkihalliin, eli pysäköintipaikkoja on aina kätevästi tarjolla niin yrityksesi henkilöstölle kuin asiakkaillekin. Paikkojen hinnat ovat sijaintiin suhteutettuna huokeat.
Ekologisuus ja kestävän kehityksen mukaiset toimintamallit ovat Akselin & Elinan arjessa vahvasti läsnä. Esimerkiksi jätehuolto on kokonaan hiilineutraali, sen CO2-päästöt hyvitetään vuosittain pysyviä hiilinieluja metsittämällä. Lisäksi kaikki kulutussähkö on ympäristöystävällistä biovoimatuotantoa, eli peräisin uusiutuvista energialähteistä.
Akselin & Elinan pihalta löytyy sähköfillareita kaikkien vuokralaisten käyttöön. Kiinteistön kellarikerroksessa on lisäksi kätevä fillariparkki omille polkupyörille sekä puku- ja pesutilat fillarireippailijolle.
Kulkuyhteydet
Metroasema 1,1 km, Raitiovaunupysäkki 200 m, Bussipysäkki 200 m, Juna-asema 1 km, Lentoasema 13,5 km
Vapautuu
Heti
Kerros
2
Energiatehokkuusluokka
Ei lain edellyttämää energiatodistusta
Ympäristöluokitus
BREEAM Very Good
Näkyvällä paikalla
Hissi
Ota yhteyttä
ScanReal Oy LKV
Opus Business Park
Hitsaajankatu 24
00810 Helsinki
info@scanreal.fi
Puh:
Näytä puhelinnumero
020 730 8830
Sopivat toimitilat yhdellä otolla!
Kartoitamme toimitilatarpeesi ja etsimme yrityksellesi parhaiten sopivat vapaat toimitilat. Koska vuokranantajat maksavat palvelumme, on tämä yrityksellesi veloituksetonta.
OTA YHTEYTTÄ - SOVI NÄYTTÖ!
Kaikki kohteemme eivät ole netissä, kerro tilatarpeesi niin kartoitamme vaihtoehdot.
Palvelumme on tilanhakijalle ilmainen
Pyydä lisätietoa
