Vuokrataan toimistotilat - Helsinki
Sahaajankatu 24, Herttoniemi, 00880 Helsinki #10812887
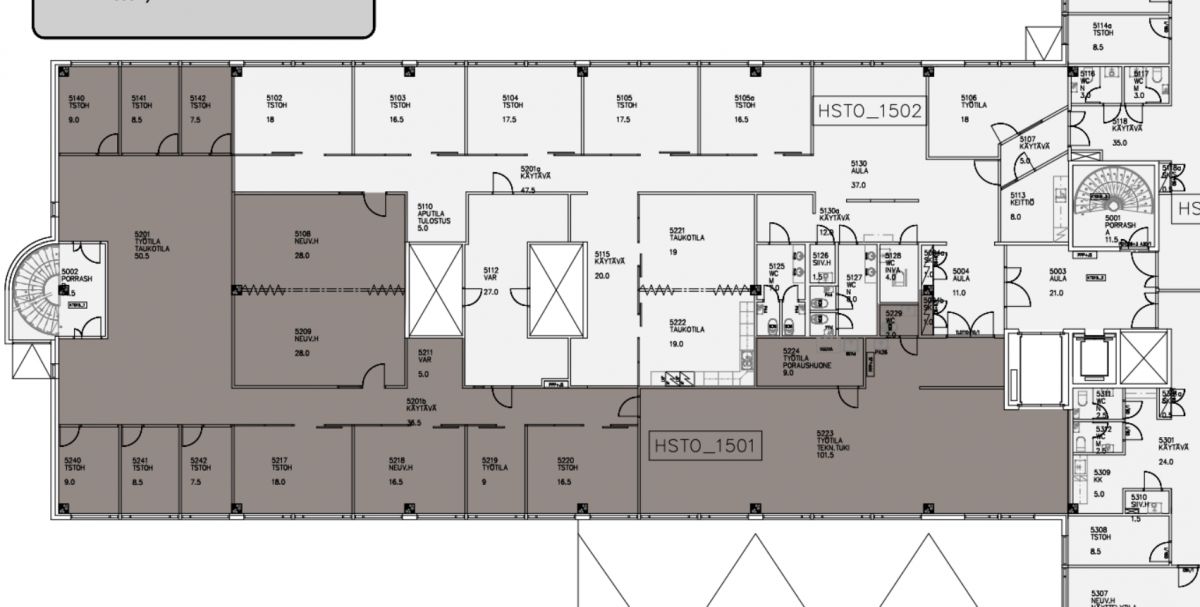
Vuokrataan siisti ja edullinen muuttovalmis toimistotila Herttoniemen teollisuusalueella. Tilassa on eri kokoisia toimistohuoneita ja tilaan on tavarahissiyhteys kiinteistön lastauslaiturilta.
Helsingin Sahaajankatu 24 tilat soveltuvat erityisesti teollisuusalan toimijoille, joilla on tarvetta toimisto-, logistiikka- ja tuotantotiloille. Tilat ovat muokattavissa vuokralaisen tarpeen mukaan. Kiinteistöstä löytyy myös tilava tavarahissi. Kiinteistön pihalta vuokrattavissa parkkipaikkoja.
Lisätietoja soita 020 730 4530 tai info@repoint.fi. Palvelumme on tilanhakijalle ilmainen.
Repoint Toimitilat Oy
Itälahdenkatu 22 B, 00210 Helsinki
Näytä puhelinnumero
020 730 4530
Lisätietoja soita Näytä puhelinnumero 020 730 4530 tai info@repoint.fi
https://repoint.fi/