Vuokrataan toimistotilat - Helsinki
Lemuntie 7, Vallila, 00510 Helsinki #10812780
Vallilan Akseli ja Elina koostuu kahdesta kiinteistöstä, joka on viime vuosina palvellut etenkin designin, teollisen muotoilun sekä muiden luovien alojen yrityksiä. Kiinteistön tilat on suunniteltu ja toteutettu sopimaan hyvin yhteen nykypäivän työelämän vaatimusten kanssa. Toisessa talossa toimii oma lounasravintola.
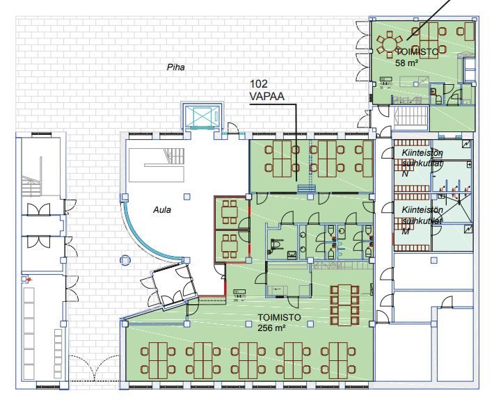
Vapaana eri kokoisia toimistotiloja, kuten tämä 256 m2 toimisto ensimmäisessä kerroksessa. Pintojen svyihin voidaan vielä vaikuttaa, mistä vaihtoehtokuvia ohessa. Ohessa myös yleiskuvia kiinteistön muista tiloista.
Sijainti Lemuntiellä on vain korttelin etäisyydellä Mäkelänkadusta, josta tavoittaa hyvät julkiset yhteydet. Paikalle on helppo saapua myös pyörällä tai autolla. Lähin parkkihallin on Elimäenkadun Aimo Park, johon on suora hissisisäänkäynti Nokiantieltä Akselin ja Elinan vierestä. Lisäksi vuokrattavissa on sähköpyöriä vuokralaisten käyttöön.
Lisätietoja numerosta 020 7290 710. Lisää kohteita osoitteessa www.premises.fi.
Kohteella ei ole lain edellyttämää energiatodistusta tai energialuokka ei tiedossa.Kerros: katu
CRE PREMISES
Puh. Näytä puhelinnumero 020 7290 710
Vantaankoskentie 14
01670 VANTAA
