Vuokrataan toimistotilat - Helsinki
Kuortaneenkatu 2, Vallila, 00510 Helsinki #10812759
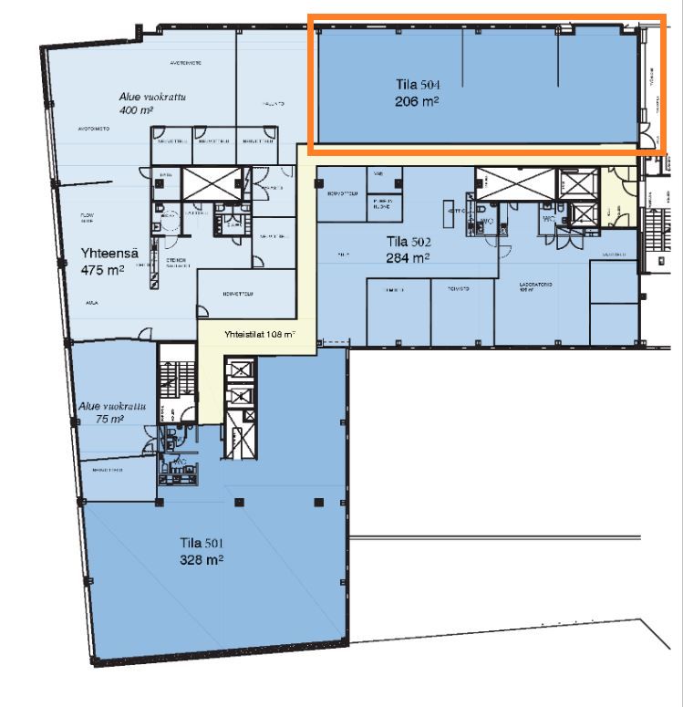
Vuokrataan 6. kerroksen toimistotila Vallilassa hyvällä sijainnilla. Tila remontoidaan seuraavalle vuokralaiselle. Hyvä mahdollisuus päästä vaikuttamaan lopputulokseen. Ilmoituksen kuvat ovat havainnekuvia kiinteistön tiloista.
Vallila Corner päivittyi uuteen loistoonsa 2019-2020 aikana. Aulatilat remontoitiin 2020 alussa ja helmikuussa toimintansa aloitti uusi Dylanin lounasravintola, joka löytyy K1-kerroksesta. Pääjulkisivu Kuortaneenkadun puolella on myös kokenut osaltaan ilmeen kohotuksen.
Kiinteistön palveluvalikoimaan kuuluvat jo nyt aulapalvelu, erillinen kahvila, vuokrattavia neuvottelutiloja sekä 85-paikkainen auditorio. Erinomaisten julkisten yhteyksien lisäksi kiinteistöllä on kahdessa tasossa oleva parkkihalli, josta on mahdollista vuokrata pysäköintioikeuksia. Myöskään kaupalliset pysäköintialueet, kuten Aimo Park Vallila eivät ole kaukana.
Lisätietoja soita 020 730 4530 tai info@repoint.fi. Palvelumme on tilanhakijalle ilmainen.
Repoint Toimitilat Oy
Itälahdenkatu 22 B, 00210 Helsinki
Näytä puhelinnumero
020 730 4530
Lisätietoja soita Näytä puhelinnumero 020 730 4530 tai info@repoint.fi
https://repoint.fi/