Vuokrataan toimistotilat - Helsinki
Mannerheimintie 15 B, Töölö, 00260 Helsinki #10812714
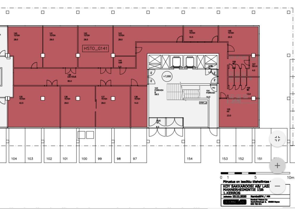
Vuokrataan katutason toimistotila entisestä Töölön sokeritehtaasta.
Tila koostuu erikokoisista huoneista, keittiöstä ja taukotilasta sekä kuudesta WC:stä. Näkymät Töölönlahdelle.
Kiinteistö sijaitsee erinomaisella paikalla, Helsingin keskustan palveluiden keskellä. Perille pääset niin autolla, julkisilla kulkuvälineillä kuin pyörälläkin.
Lisätietoja soita 020 730 4530 tai info@repoint.fi. Palvelumme on tilanhakijalle ilmainen.
Osoite
Mannerheimintie 15 B, 00260 Helsinki
Tilatyyppi
Toimistotilaa
410 m2
Vapautuu
Kysy
Kerros
1
Ota yhteyttä
Repoint Toimitilat Oy
Itälahdenkatu 22 B, 00210 Helsinki
Näytä puhelinnumero
020 730 4530
Lisätietoja soita Näytä puhelinnumero 020 730 4530 tai info@repoint.fi
https://repoint.fi/Pyydä lisätietoa
