Vuokrataan toimistotilat - Helsinki
Salomonkatu 17, Kamppi, 00100 Helsinki #10812679
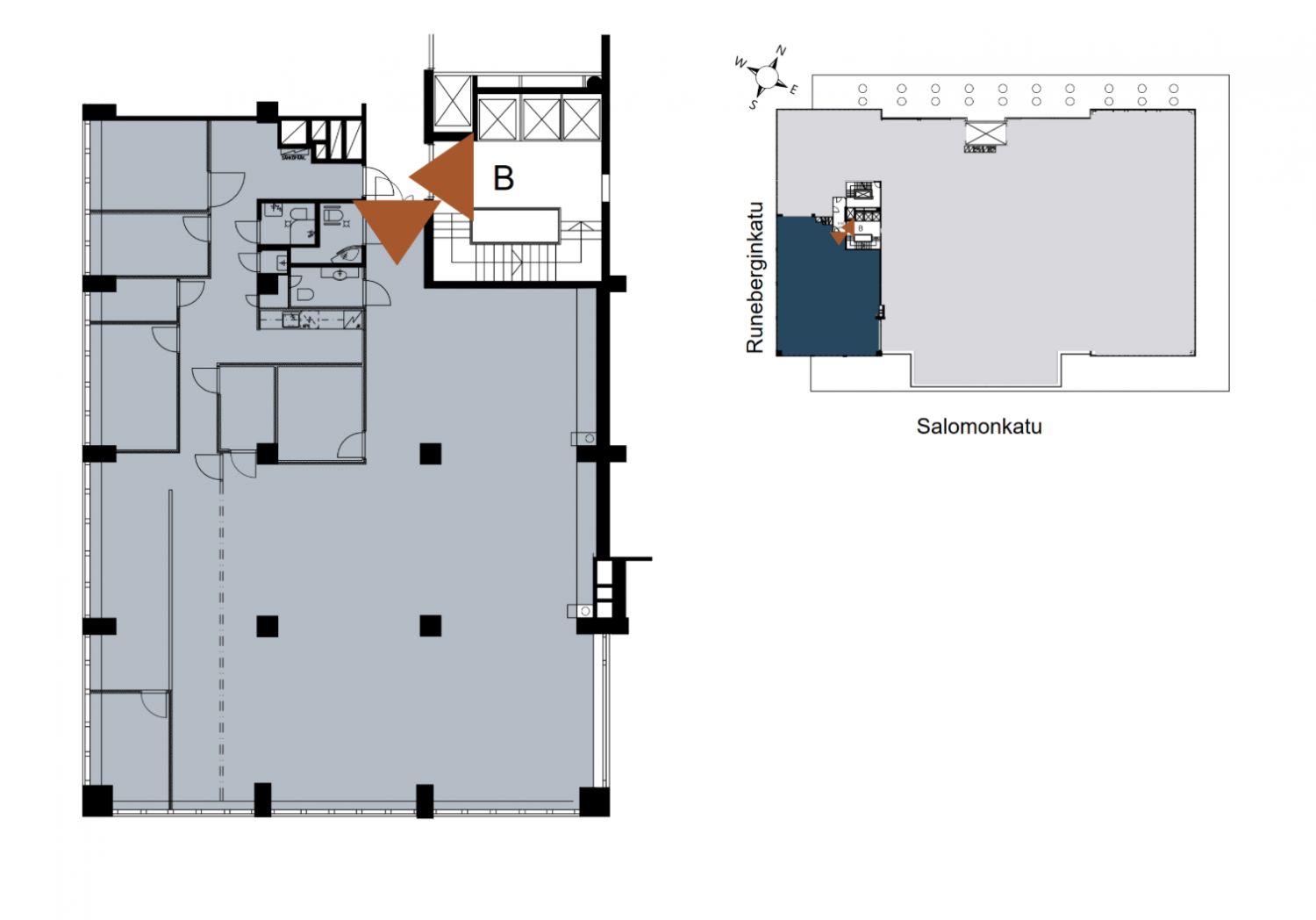
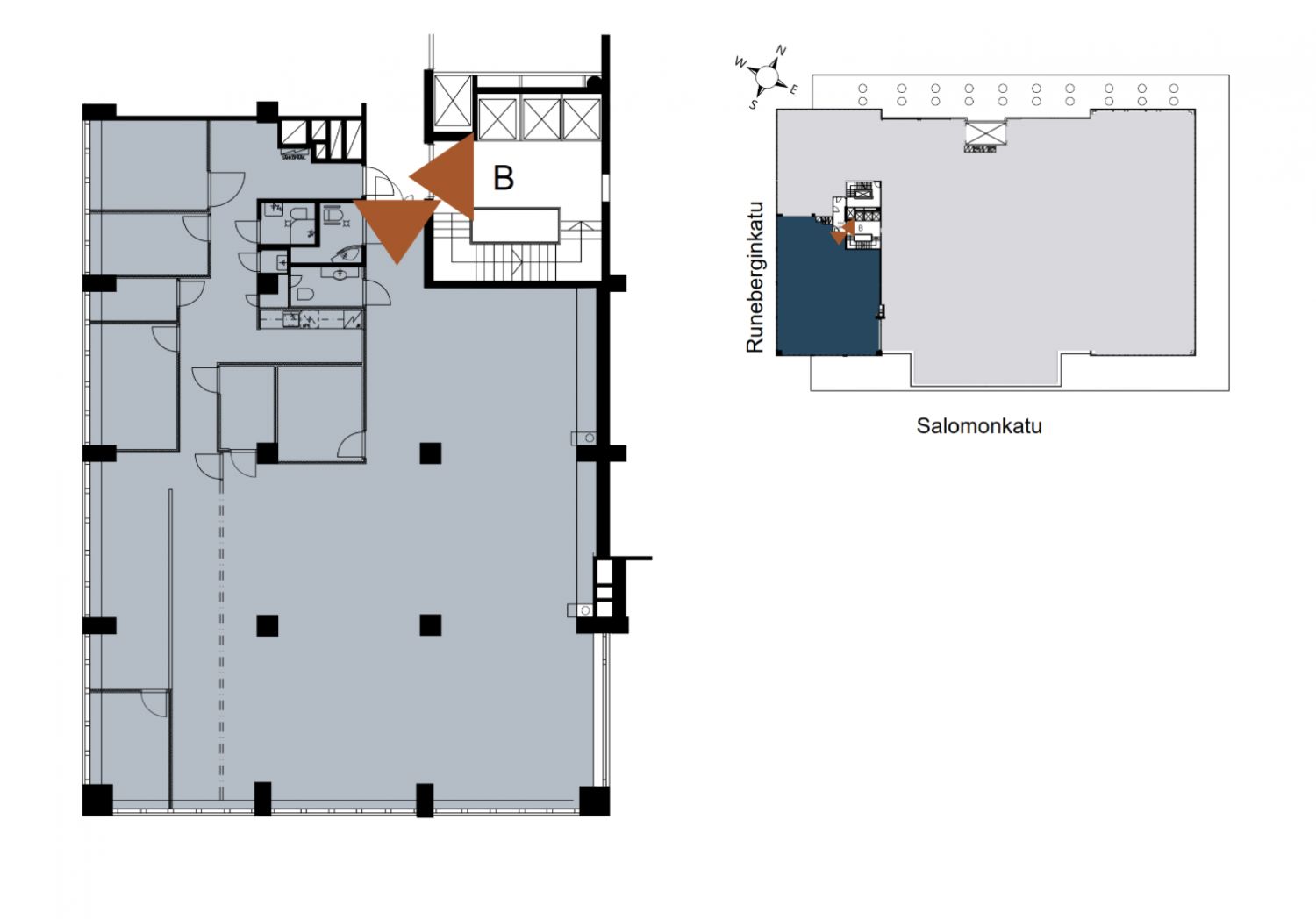
Vuokrataan toimitilaa Autotalon kolmannessa kerroksessa. Remontoidaan vastaamaan uuden käyttäjän tarpeita. Toimitila sijaitsee B tornissa.
Autotalon kokoustilat vuokrattavissa. Ympäristön palvelut ovat loistavat. Lukuisia lounasravintoloita lähikortteleissa. Kiinteistössä on autohalli ja pyöräparkki.
LISÄTIETOJA numerosta 020 7290 710. Lisää kohteita osoitteessa www.premises.fi.
Energialuokka E2013Kerros: 3
Osoite
Salomonkatu 17, 00100 Helsinki
Tilatyyppi
Toimistotilaa
321 m2
Kulkuyhteydet
Loistavat kulkuyhteydet. Metro- ja linja-autoaseman välittömässä läheisyydessä. Junalle n. 5 min kävelymatka. Autopaikkoja voi vuokrata kiinteistön autohallista.
Ota yhteyttä
CRE PREMISES
Puh. Näytä puhelinnumero 020 7290 710
Vantaankoskentie 14
01670 VANTAA
Pyydä lisätietoa
