Vuokrataan toimistotilat - Espoo
Karaportti 5, Karamalmi, 02610 Espoo #10812613
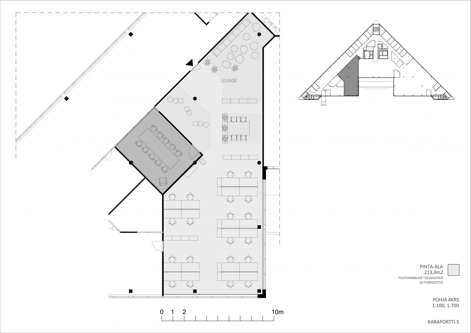
Siisti ja moderni, muuttovalmis 213 m² toimistohuoneisto Espoon Karamalmilla.
Osoite
Karaportti 5, 02610 Espoo
Tilatyyppi
Toimistotilaa
213 m2
Pohjapiirros
Kiinteistö
Vuokrattavissa muuttovalmista, tyylikästä toimitilaa 4. kerroksesta.
Karaportti 5 sijaitsee Kehä II:n varrella, Espoon Karamalmilla. Vuonna 2000 rakennettu kiinteistö tarjoaa toimitiloja joita voi muunnella vaivattomasti avo- ja huonetoimistoiksi sekä niiden yhdistelmiksi vuokralaisen tarpeiden mukaan.
Kolmannessa ja neljännessä kerroksessa on tarjolla uudenlaista yhteisöllistä toimistotilaa. Yritysten käytössä on tyylikkäät ja viihtyisät aula- ja taukotilat keittiöineen. Toimistotilojen lisäksi kohteessa on pienempiä studioita sekä erilaisia neuvottelu- ja projektityötiloja, joita vuokrataan kaikenkokoisille yrityksille.
Käytettävissä ovat edustavat saunatilat sekä aulapalvelu, viereisessä talossa palvelee lounasravintola. Kiinteistö sijaitsee hyvien kulkuyhteyksien päässä aivan Kehä II:n varrella. Pihalla ja parkkihallissa on runsaasti pysäköintitilaa.
Ilmoituksen kuvat ovat yleiskuvia kiinteistön eri tiloista.
Auditorio / tapahtumatila
Lounasravintola / kahvila
Neuvottelutiloja
Parkkihalli
Pyöräparkki
Saunatilat
Suihkulliset sosiaalitilat
Kiinteistölle on myönnetty BREEAM In-Use ympäristösertifioinnin Very Good -taso.
Karaportti 5 sijaitsee Kehä II:n varrella, Espoon Karamalmilla. Vuonna 2000 rakennettu kiinteistö tarjoaa toimitiloja joita voi muunnella vaivattomasti avo- ja huonetoimistoiksi sekä niiden yhdistelmiksi vuokralaisen tarpeiden mukaan.
Kolmannessa ja neljännessä kerroksessa on tarjolla uudenlaista yhteisöllistä toimistotilaa. Yritysten käytössä on tyylikkäät ja viihtyisät aula- ja taukotilat keittiöineen. Toimistotilojen lisäksi kohteessa on pienempiä studioita sekä erilaisia neuvottelu- ja projektityötiloja, joita vuokrataan kaikenkokoisille yrityksille.
Käytettävissä ovat edustavat saunatilat sekä aulapalvelu, viereisessä talossa palvelee lounasravintola. Kiinteistö sijaitsee hyvien kulkuyhteyksien päässä aivan Kehä II:n varrella. Pihalla ja parkkihallissa on runsaasti pysäköintitilaa.
Ilmoituksen kuvat ovat yleiskuvia kiinteistön eri tiloista.
Auditorio / tapahtumatila
Lounasravintola / kahvila
Neuvottelutiloja
Parkkihalli
Pyöräparkki
Saunatilat
Suihkulliset sosiaalitilat
Kiinteistölle on myönnetty BREEAM In-Use ympäristösertifioinnin Very Good -taso.
Vapautuu
Heti
Rakennusvuosi
2007
Kerros
4
Energiatehokkuusluokka
Ei lain edellyttämää energiatodistusta
Hissi
Lastauslaituri
Ota yhteyttä
ScanReal Oy LKV
Opus Business Park
Hitsaajankatu 24
00810 Helsinki
info@scanreal.fi
Puh:
Näytä puhelinnumero
020 730 8830
Sopivat toimitilat yhdellä otolla!
Kartoitamme toimitilatarpeesi ja etsimme yrityksellesi parhaiten sopivat vapaat toimitilat. Koska vuokranantajat maksavat palvelumme, on tämä yrityksellesi veloituksetonta.
OTA YHTEYTTÄ - SOVI NÄYTTÖ!
Kaikki kohteemme eivät ole netissä, kerro tilatarpeesi niin kartoitamme vaihtoehdot.
Palvelumme on tilanhakijalle ilmainen
Pyydä lisätietoa
