Vuokrataan toimistotilat - Turku
Aurakatu 8, Keskusta, 20100 Turku #10812597
Modernia toimistoa Turun keskustasta
Osoite
Aurakatu 8, 20100 Turku
Tilatyyppi
Toimistotilaa
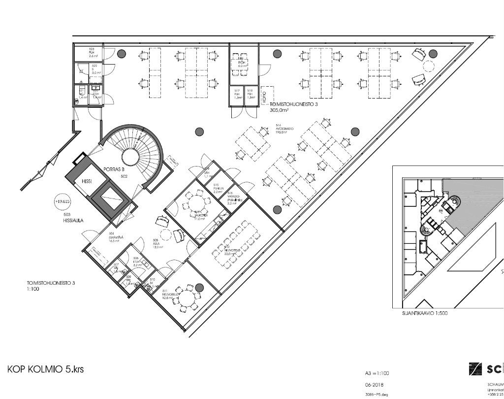
305 m2
Muuta
Vuokrattavana heti vapaana oleva upea toimistokokonaisuus Turun Kop Kolmiossa, 5. kerroksessa.
Tämä moderni ja nykyaikainen toimisto tarjoaa monipuoliset tilaratkaisut ja erinomaisen sijainnin.
Tilassa on suuri avotila, joka mahdollistaa joustavan työskentelyn sekä useita puhelinhuoneita, jotka tukevat yksityisyyttä.
Lisäksi toimistossa on erillinen keittiö, kaksi neuvotteluhuonetta ja suihku, jotka lisäävät tilan käyttömukavuutta ja toimivuutta.
Ikkunoista avautuvat upeat näkymät Turun torille, mikä luo viihtyisän ja inspiroivan työympäristön. Toimiston moderni ilme ja nykyaikaiset ratkaisut tekevät siitä erityisen houkuttelevan yrityksille, jotka arvostavat laatua ja toiminnallisuutta.
Kiinteistössä on mahdollisuus vuokrata autopaikkoja läheisestä Toriparkista, mikä helpottaa työntekijöiden ja asiakkaiden liikkumista. Kaikki keskustan monipuoliset palvelut, kuten kahvilat, ravintolat ja kaupat, sijaitsevat aivan kulman takana.
Tervetuloa tutustumaan, varaathan välittäjältä oman esittelyaikasi. Voit kysyä meiltä myös muita sopivia vaihtoehtoja, kauttamme löydät juuri Teidän tarpeisiinne sopivat tilat.
Palvelumme on tilanhakijalle veloitukseton!
Tämä moderni ja nykyaikainen toimisto tarjoaa monipuoliset tilaratkaisut ja erinomaisen sijainnin.
Tilassa on suuri avotila, joka mahdollistaa joustavan työskentelyn sekä useita puhelinhuoneita, jotka tukevat yksityisyyttä.
Lisäksi toimistossa on erillinen keittiö, kaksi neuvotteluhuonetta ja suihku, jotka lisäävät tilan käyttömukavuutta ja toimivuutta.
Ikkunoista avautuvat upeat näkymät Turun torille, mikä luo viihtyisän ja inspiroivan työympäristön. Toimiston moderni ilme ja nykyaikaiset ratkaisut tekevät siitä erityisen houkuttelevan yrityksille, jotka arvostavat laatua ja toiminnallisuutta.
Kiinteistössä on mahdollisuus vuokrata autopaikkoja läheisestä Toriparkista, mikä helpottaa työntekijöiden ja asiakkaiden liikkumista. Kaikki keskustan monipuoliset palvelut, kuten kahvilat, ravintolat ja kaupat, sijaitsevat aivan kulman takana.
Tervetuloa tutustumaan, varaathan välittäjältä oman esittelyaikasi. Voit kysyä meiltä myös muita sopivia vaihtoehtoja, kauttamme löydät juuri Teidän tarpeisiinne sopivat tilat.
Palvelumme on tilanhakijalle veloitukseton!
Vapautuu
Kysy
Kerros
5.
Ota yhteyttä
Tuloskiinteistöt Oy
Kauppiaskatu 11 C 23, 20100 Turku
Näytä puhelinnumero
(02) 274 3500
Ritva Nuotio
Commercial Real Estate Advisor LKV, KED
Näytä puhelinnumero
+358 50 5261 744
Karoliina Eklund
Leasing Support Specialist
Näytä puhelinnumero
+358 40 017 8999
Pyydä lisätietoa
