Vuokrataan toimistotilat - Oulu
Valtatie 21, Länsi-Tuira, 90500 Oulu #10812552
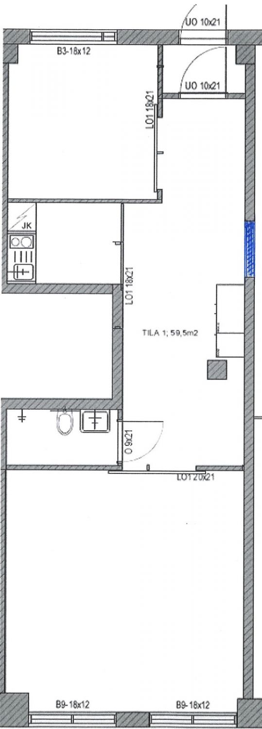
1988 valmistuneesta yhtiöstä vuokrattavana hyvät toimistotilat. Tila sijaitsee rauhallisella paikalla kiinteistön 2. kerroksessa. Kattoremontti tehty 2017 ja julkisivuremontti 2021. Siistikuntoinen ja valoisa huoneisto, jossa varusteena mm. koneellinen iv, jäähdytys, suihku, varusteltu keittiö jne. Pysäköintitilaa myös asiakkaille. 1kpl autopaikkoja vuokrattavana tilan käyttöön.
Heti vapaa vuokrattavaksi.
050 411 8747 tai julia.hoikkala@op.fi
Osoite
Valtatie 21, 90500 Oulu
Tilatyyppi
Toimistotilaa
59,5 m2
Vuokra
590.00
Kiinteistö
voimassa
Lisätietoa saneerauksista
Kattoremontti 2017, julkisivuremontti 2021
Vapautuu
1.3.2025 mennessä
Huoneiden lukumäärä
2
Ota yhteyttä
OP Koti Pohjoinen Oy LKV
Toimitila- ja vuokravälitys
Lekatie 6
90140 OULU
Julia Hoikkala
Myyntineuvottelija, Toimitilat, LVV, Trad.
Näytä puhelinnumero
050 411 8747
Pyydä lisätietoa
