Vuokrataan toimistotilat - Helsinki
Annankatu 27, Keskusta, 00100 Helsinki #10812437
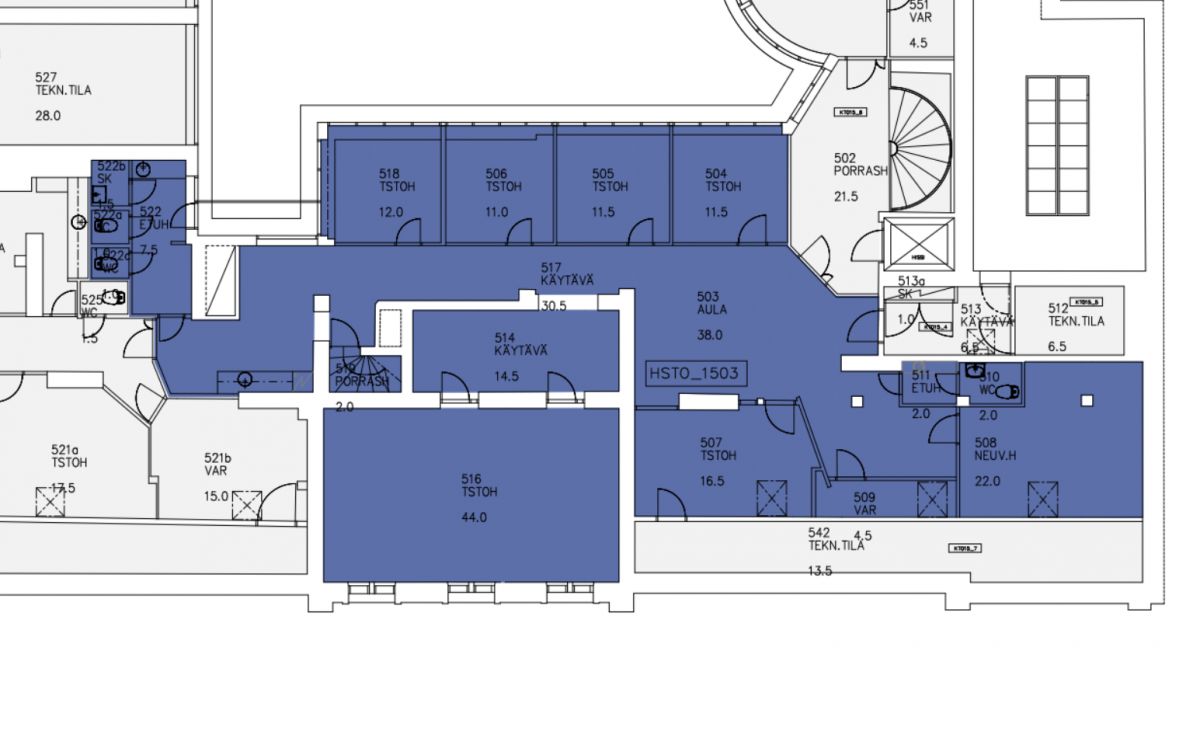
Vuokrataan tyylikäs 5. kerroksen toimistotila Annankadulta. Tila vapautuu 1.3.2025.
Kiinteistö sijaitsee helposti saavutettavalla paikalla Annankadun ja Eerikinkadun kulmassa. Sijainti kauppakeskus Kampin läheisyydessä takaa kattavat palvelut ja hyvät julkiset kulkuyhteydet.
Lisätietoja soita 020 730 4530 tai info@repoint.fi. Palvelumme on tilanhakijalle ilmainen.
Osoite
Annankatu 27, 00100 Helsinki
Tilatyyppi
Toimistotilaa
299 m2
Vapautuu
Kysy
Kerros
5
Ota yhteyttä
Repoint Toimitilat Oy
Itälahdenkatu 22 B, 00210 Helsinki
Näytä puhelinnumero
020 730 4530
Lisätietoja soita Näytä puhelinnumero 020 730 4530 tai info@repoint.fi
https://repoint.fi/Pyydä lisätietoa
