Vuokrataan toimistotilat - Tampere
Hermiankatu 1 B, Hermia, 33270 Tampere #10812426
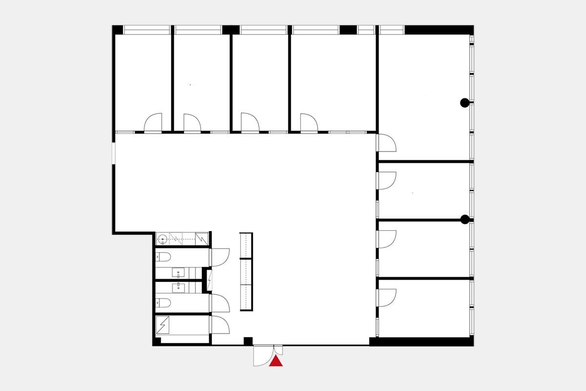
1.kerroksen toimistotilaa 223 m2 Hervannassa
Osoite
Hermiankatu 1 B, 33270 Tampere
Tilatyyppi
Toimistotilaa
223 m2
Kiinteistö
Toimistotilaa Hermian Technopoliksella
Technopolis Hermia sijaitsee Hervannassa VTT:n ja Tampereen yliopiston vieressä. Matkaa Tampereen keskustaan ja mm. rautatieasemalle on alle 9 kilometriä. Hervannan Technopoliksen kampukselle on erinomaiset julkiset liikenneyhteydet ja esimerkiksi ratikka pysähtyy Hermia 15 -talon eteen. Hermiaan on helppo saapua myös autolla joka suunnasta kehätien ja moottoritien ansiosta. Autolla ajettaessa Tampereen keskustasta matka-aika on 15–20 minuuttia. Kampuksella on paljon kohtuuhintaista pysäköintitilaa autoilijoille. Yliopistonrinteen Technopolis käyttää 100 % uusiutuvaa sähköä ja sillä on LEED-sertifikaatti.
Erilaisten toimistotilojen lisäksi kampuksella on mahdollisuus käyttää useita erilaisia kokoustiloja. Vuokralaisia ja asiakkaita palvelee lisäksi kaksi Linkosuon ravintolaa. Asiakkaiden käytettävissä on lisäksi mm. ruokakauppa, kuntosali,liikuntakeskus ja paljon muuta.Hervannan Technopoliksella järjestetään säännöllisesti myös erilaisia tapahtumia esim. verkostoitumisaamuja.
Hervannan kampuksella toimii isäksi pientoimistoalue Technopolis HUB. Se koostuu 62 pienestä 1–12 hengen tiimeille sopivasta toimistotilasta. Kysy lisää näistä.
Vuokrattava tila:
Vuokrataan tasokas, iso 223 m2 valoisa toimisto, joka soveltuu 15-22 työpisteelle. Toimistossa on tällähetkellä seitsemän pienempää huonetta, iso aula , neuvotteluhuone, keittiö ja omat wc-tilat. Tilaan kuuluu samassa kerroksessa sijaitsevien kahden neuvottelutilan käyttö. Tila voidaan tarvittaessa muokata vuokralaisen tarpeiden mukaisesti. Kiinteistöstä on sisäyhteys Hermia 11-taloon, jossa on aulapalvelu, lounasravintola, kokoustilat sekä kuntosali.
Technopolis Hermia sijaitsee Hervannassa VTT:n ja Tampereen yliopiston vieressä. Matkaa Tampereen keskustaan ja mm. rautatieasemalle on alle 9 kilometriä. Hervannan Technopoliksen kampukselle on erinomaiset julkiset liikenneyhteydet ja esimerkiksi ratikka pysähtyy Hermia 15 -talon eteen. Hermiaan on helppo saapua myös autolla joka suunnasta kehätien ja moottoritien ansiosta. Autolla ajettaessa Tampereen keskustasta matka-aika on 15–20 minuuttia. Kampuksella on paljon kohtuuhintaista pysäköintitilaa autoilijoille. Yliopistonrinteen Technopolis käyttää 100 % uusiutuvaa sähköä ja sillä on LEED-sertifikaatti.
Erilaisten toimistotilojen lisäksi kampuksella on mahdollisuus käyttää useita erilaisia kokoustiloja. Vuokralaisia ja asiakkaita palvelee lisäksi kaksi Linkosuon ravintolaa. Asiakkaiden käytettävissä on lisäksi mm. ruokakauppa, kuntosali,liikuntakeskus ja paljon muuta.Hervannan Technopoliksella järjestetään säännöllisesti myös erilaisia tapahtumia esim. verkostoitumisaamuja.
Hervannan kampuksella toimii isäksi pientoimistoalue Technopolis HUB. Se koostuu 62 pienestä 1–12 hengen tiimeille sopivasta toimistotilasta. Kysy lisää näistä.
Vuokrattava tila:
Vuokrataan tasokas, iso 223 m2 valoisa toimisto, joka soveltuu 15-22 työpisteelle. Toimistossa on tällähetkellä seitsemän pienempää huonetta, iso aula , neuvotteluhuone, keittiö ja omat wc-tilat. Tilaan kuuluu samassa kerroksessa sijaitsevien kahden neuvottelutilan käyttö. Tila voidaan tarvittaessa muokata vuokralaisen tarpeiden mukaisesti. Kiinteistöstä on sisäyhteys Hermia 11-taloon, jossa on aulapalvelu, lounasravintola, kokoustilat sekä kuntosali.
Vapautuu
Kysy
Kerros
1.
Ota yhteyttä
LogisTila Oy
Kauppakatu 14, 33210 TAMPERE
Tuomas Lehtinen
Näytä puhelinnumero
044 491 5961
Pyydä lisätietoa
