Vuokrataan toimistotilat - Tampere
Kalevantie 2, Kalevanrinne, 33100 Tampere #10812423
Yliopistonrinteen Technopoliksella toimitilaa 171 m2
Osoite
Kalevantie 2, 33100 Tampere
Tilatyyppi
Toimistotilaa
38 - 171 m2
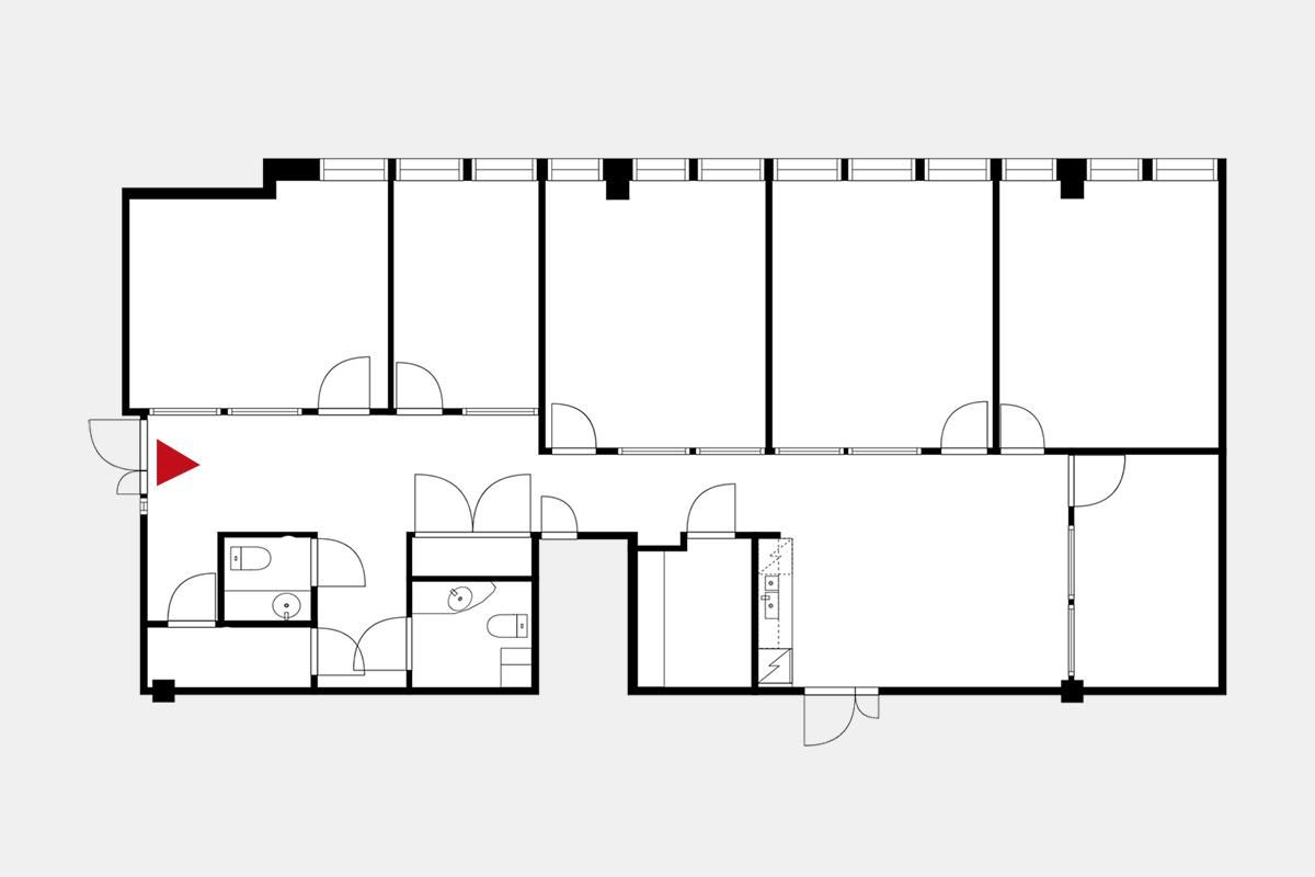
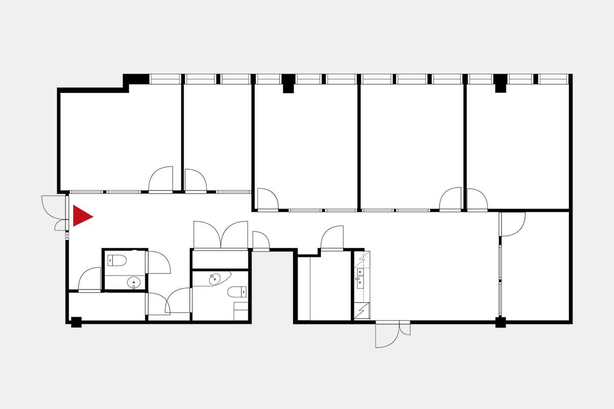
Pohjapiirros
Kiinteistö
Monipuolista, modernia toimitilaa Tampere Areenan vierestä, 171m2
Technopolis Yliopistonrinne sijaitsee erittäin keskeisellä ja helposti saavutettavalla sijainnilla. Vastapäätä on uusi Tampere Areena, kulman takana rautatieasema ja yliopisto. Lähettyvillä lukuisia hotelleja ja pienen kävelymatkan päässä kaikki Tampereen keskustan palvelut. Kiinteistöllä on oma suuri pysäköintitalo ja polkupyörät saa turvallisesti säilytykseen. Yliopistonrinteen Technopolis käyttää 100 % uusiutuvaa sähköä ja sillä on LEED-sertifikaatti.
Monipuoliset palvelut ovat vuokralaisten saatavilla. Technopoliksesta löytyy useita erikokoisia kokous- ja tapahtumatiloja muutaman henkilön huoneista 150-paikkaiseen saliin. Laadukas kahvila-ravintola palvelee katutasossa. Käytettävissä on myös aulapalvelut. Vuokralaisilla on mahdollisuus myös kattokerroksen saunaosaston käyttöön. Alimmassa kerroksessa sijaitsee myös hyvin varusteltu, edullinen kuntosali.
Vuokrattava tila:
Vuokrataan tasokas 171m2 toisen kerroksen toimisto Tampereen keskustasta. Toimisto sijaitsee Technopolis HUB -pientoimistoalueella. B-talon 3. kerroksessa. Toimisto soveltuu noin 10-14 henkilölle ja tarjoaa yrityksellesi toimivat puitteet tehokkaaseen työskentelyyn. Tilassa on iso aulatila ja kuusi toimistohuonetta, oma keittiöosa/ taukotila ja omat wc-tilat. Käytössäsi on myös yhteiskäyttökeittiö, wc-tilat sekä nimettyjä neuvottelutiloja. Tila on vapaa.
Muut vuokrattavat tilat:
Rakennuksessa on myös pienempiä vuokrattavia tiloja:
38 m2 toimisto. Toimistoon saa noin neljä työpistettä, sisältäen kaksi toimistohuonetta ja oman keittiön.
74 m2 1. kerroksen avoin toimistotila. Tila sijaitsee Mediapoliksen Business Zone -alueella, jossa käytössä on yhteinen keittiö, taukotila ja neuvotteluhuone.
104 m2 toisen kerroksen toimisto omalla keittiöllä, soveltuu noin 10 henkilölle.
Ole yhteydessä, mennään tutustumaan tähän toimitilaan!
Technopolis Yliopistonrinne sijaitsee erittäin keskeisellä ja helposti saavutettavalla sijainnilla. Vastapäätä on uusi Tampere Areena, kulman takana rautatieasema ja yliopisto. Lähettyvillä lukuisia hotelleja ja pienen kävelymatkan päässä kaikki Tampereen keskustan palvelut. Kiinteistöllä on oma suuri pysäköintitalo ja polkupyörät saa turvallisesti säilytykseen. Yliopistonrinteen Technopolis käyttää 100 % uusiutuvaa sähköä ja sillä on LEED-sertifikaatti.
Monipuoliset palvelut ovat vuokralaisten saatavilla. Technopoliksesta löytyy useita erikokoisia kokous- ja tapahtumatiloja muutaman henkilön huoneista 150-paikkaiseen saliin. Laadukas kahvila-ravintola palvelee katutasossa. Käytettävissä on myös aulapalvelut. Vuokralaisilla on mahdollisuus myös kattokerroksen saunaosaston käyttöön. Alimmassa kerroksessa sijaitsee myös hyvin varusteltu, edullinen kuntosali.
Vuokrattava tila:
Vuokrataan tasokas 171m2 toisen kerroksen toimisto Tampereen keskustasta. Toimisto sijaitsee Technopolis HUB -pientoimistoalueella. B-talon 3. kerroksessa. Toimisto soveltuu noin 10-14 henkilölle ja tarjoaa yrityksellesi toimivat puitteet tehokkaaseen työskentelyyn. Tilassa on iso aulatila ja kuusi toimistohuonetta, oma keittiöosa/ taukotila ja omat wc-tilat. Käytössäsi on myös yhteiskäyttökeittiö, wc-tilat sekä nimettyjä neuvottelutiloja. Tila on vapaa.
Muut vuokrattavat tilat:
Rakennuksessa on myös pienempiä vuokrattavia tiloja:
38 m2 toimisto. Toimistoon saa noin neljä työpistettä, sisältäen kaksi toimistohuonetta ja oman keittiön.
74 m2 1. kerroksen avoin toimistotila. Tila sijaitsee Mediapoliksen Business Zone -alueella, jossa käytössä on yhteinen keittiö, taukotila ja neuvotteluhuone.
104 m2 toisen kerroksen toimisto omalla keittiöllä, soveltuu noin 10 henkilölle.
Ole yhteydessä, mennään tutustumaan tähän toimitilaan!
Vapautuu
Kysy
Kerros
3.
Ota yhteyttä
Logistila Oy
Kauppakatu 14, 33210 TAMPERE
Jukka Nukari
Näytä puhelinnumero
0440759789
Pyydä lisätietoa
