Vuokrataan toimistotilat, liiketilat - Helsinki
Vanha Talvitie 11, Kalasatama, 00580 Helsinki #10812348
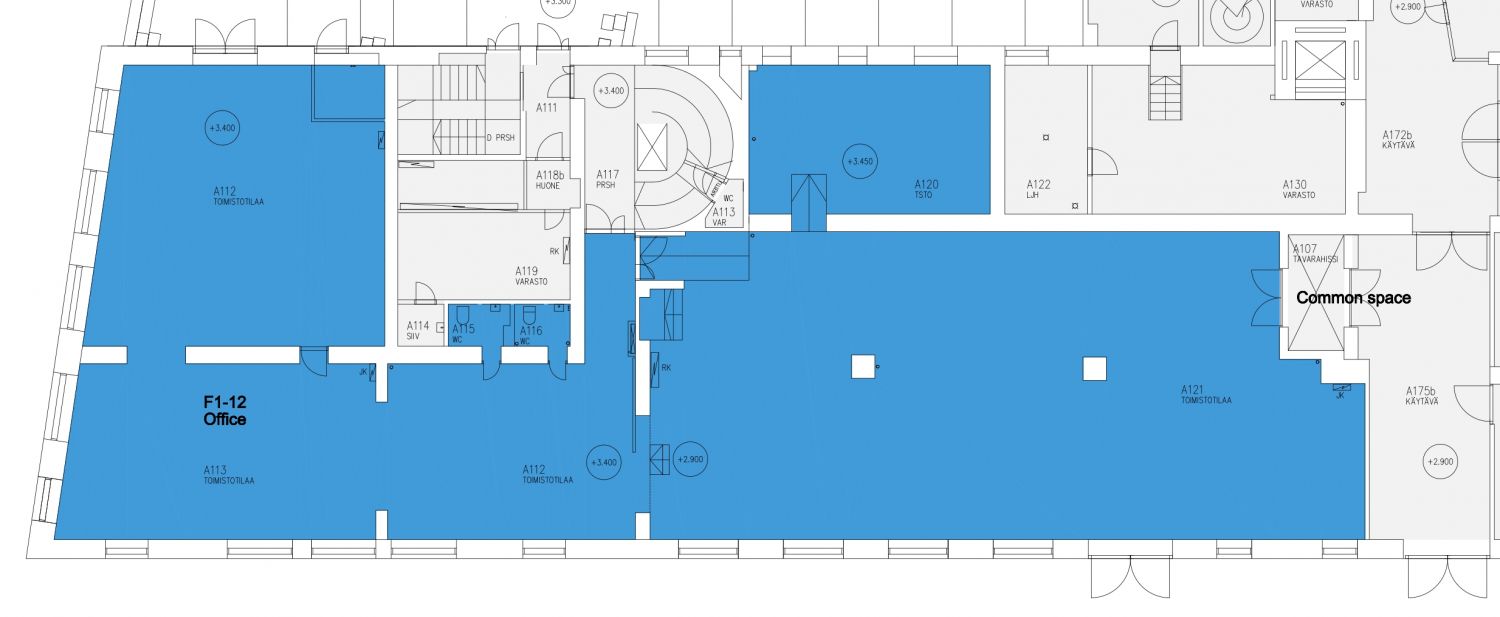
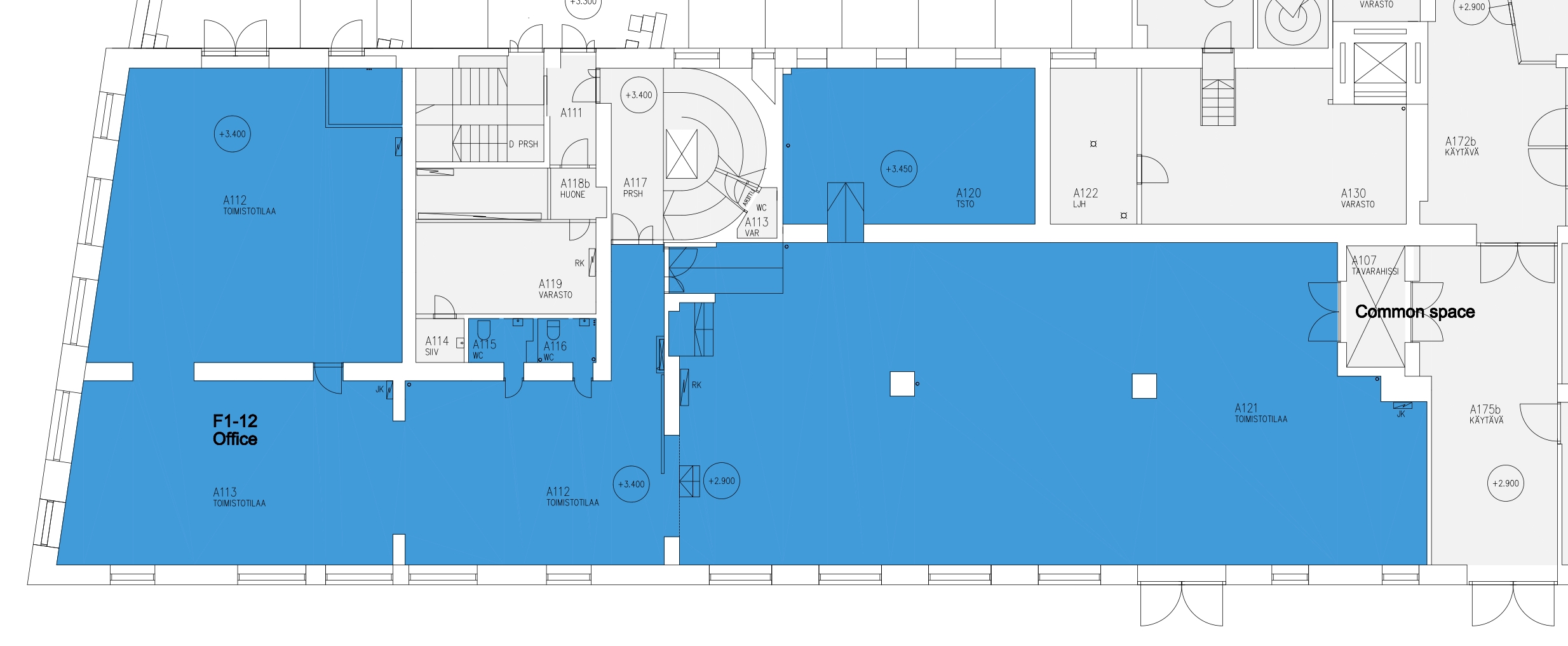
Persoonallinen, monien mahdollisuuksien 509,5 m² toimitila, johon valoisuutta ja avaruutta tuovat näyttävät kaari-ikkunat sekä tavallista suurempi huonekorkeus.
Tila voi toimia joko liiketilana tai toimistona.
Tilaan on tupla-ovet.
Kiinteistössä on jäähdytetty ilmastointi. Tiloissa CAT-5 -tasoinen tietoliikenneverkko. C-portaan seitsemännessä kerroksessa vuokrattavissa kokous- ja saunatilat.
Hermannissa sijaitseva kiinteistö muodostuu kahdesta erillisestä rakennuksesta. Arkkitehtonisesti upea vanha osa (1919) on 4-kerroksinen ja uusi osa (1991) on 6-kerroksinen.
Keskusta on 5 minuutin automatkan päässä. Matka lentokentälle noin 20 minuuttia. Yhteys Lahdenväylälle erinomainen.
Metroasema 400 m, Raitiovaunupysäkki 700 m, Bussipysäkki 100 m, Juna-asema 4,3 km, Lentoasema 14,1 km
Katutasossa
Hissi
ScanReal Oy LKV
Opus Business Park
Hitsaajankatu 24
00810 Helsinki
info@scanreal.fi
Puh:
Näytä puhelinnumero
020 730 8830
Sopivat toimitilat yhdellä otolla!
Kartoitamme toimitilatarpeesi ja etsimme yrityksellesi parhaiten sopivat vapaat toimitilat. Koska vuokranantajat maksavat palvelumme, on tämä yrityksellesi veloituksetonta.
OTA YHTEYTTÄ - SOVI NÄYTTÖ!
Kaikki kohteemme eivät ole netissä, kerro tilatarpeesi niin kartoitamme vaihtoehdot.
Palvelumme on tilanhakijalle ilmainen
