Vuokrataan toimistotilat - Helsinki
Fredrikinkatu 34, Kamppi, 00100 Helsinki #10812339
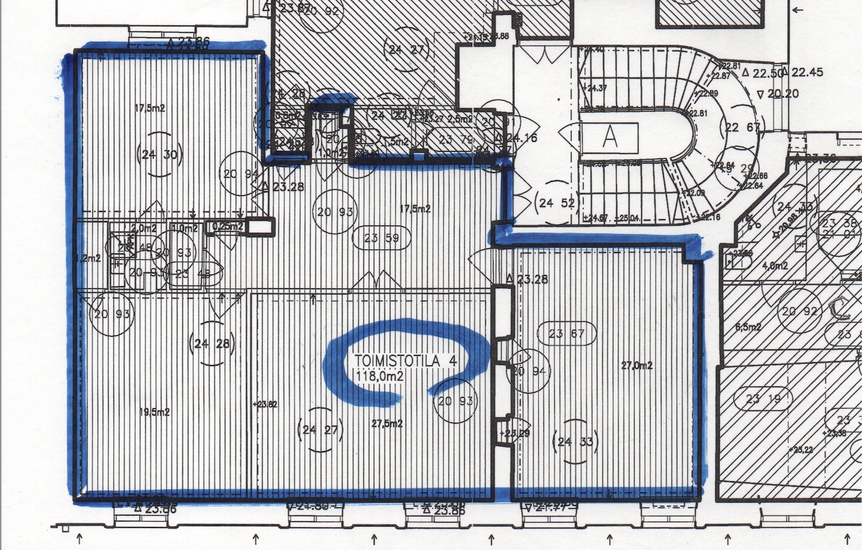
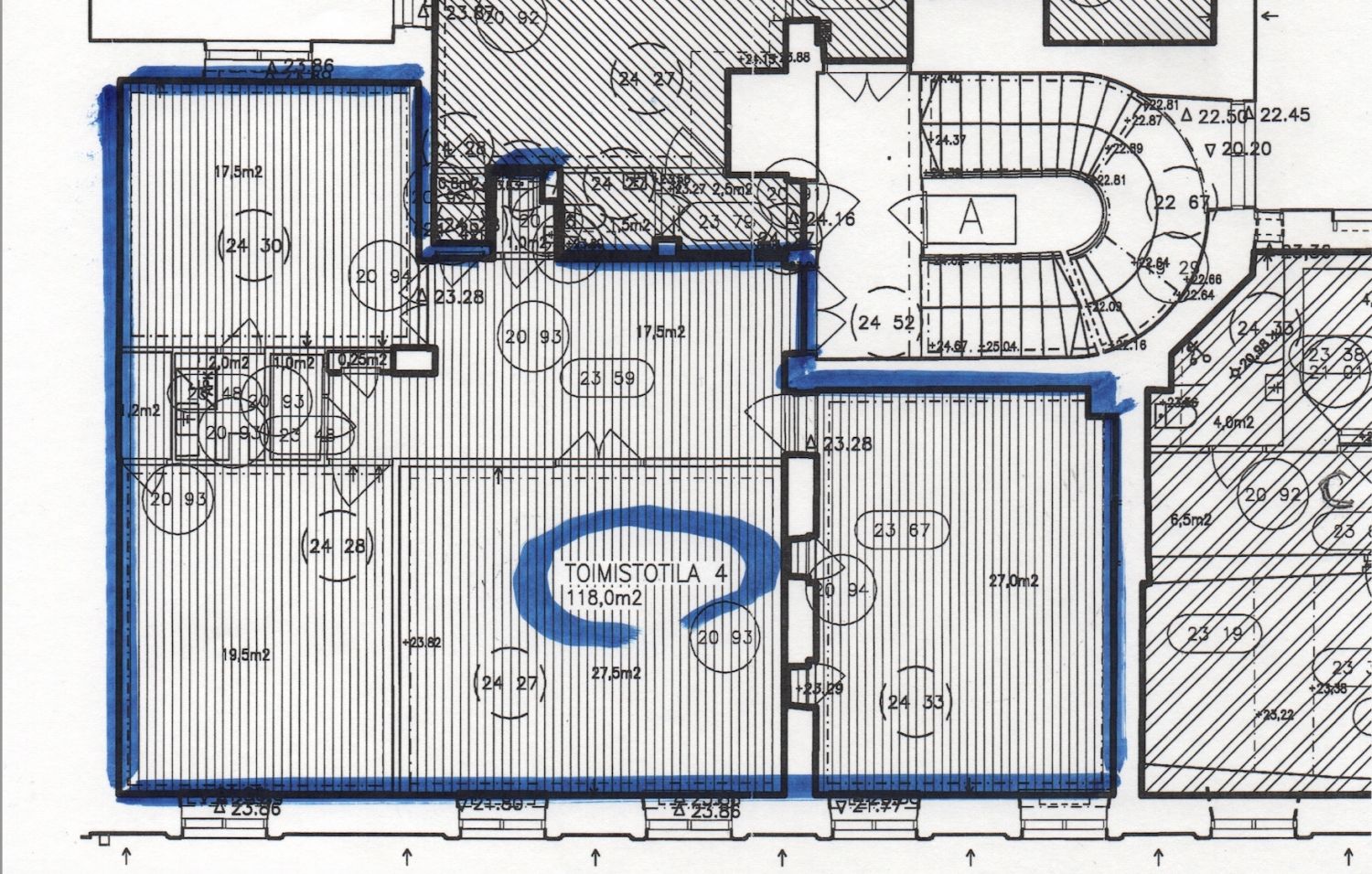
Siisti 118 m² toimisto hyvällä paikalla Helsingin Kampissa, Fredrikinkadun ja Kalevankadun kulmassa.
Osoite
Fredrikinkatu 34, 00100 Helsinki
Tilatyyppi
Toimistotilaa
118 m2
Pohjapiirros
Vuokra
3186 € / kk + alv
Kiinteistö
118 m² siisti monikäyttöinen toimistotila kivenheiton päässä Kampin metroasemalta ja Stockmannilta.
3 suurehkoa työhuonetta + keittiö ja taukohuone + kylpyhuone.
Kiinteistössä on kaukokylmä. Ilmastointiremontti valmistunut 2016.
3 suurehkoa työhuonetta + keittiö ja taukohuone + kylpyhuone.
Kiinteistössä on kaukokylmä. Ilmastointiremontti valmistunut 2016.
Kulkuyhteydet
Alueella on loistavat julkiset kulkuyhteydet, mm. Kampin metro- ja linja-autoasemat sijaitsevat lyhyen kävelymatkan päässä.
Lisätietoa saneerauksista
Ilmastointiremontti valmistunut 2016
Vapautuu
Heti
Kerros
3 / 5
Energiatehokkuusluokka
Ei lain edellyttämää energiatodistusta
Näkyvällä paikalla
Hissi
Ota yhteyttä
ScanReal Oy LKV
Opus Business Park
Hitsaajankatu 24
00810 Helsinki
info@scanreal.fi
Puh:
Näytä puhelinnumero
020 730 8830
Sopivat toimitilat yhdellä otolla!
Kartoitamme toimitilatarpeesi ja etsimme yrityksellesi parhaiten sopivat vapaat toimitilat. Koska vuokranantajat maksavat palvelumme, on tämä yrityksellesi veloituksetonta.
OTA YHTEYTTÄ - SOVI NÄYTTÖ!
Kaikki kohteemme eivät ole netissä, kerro tilatarpeesi niin kartoitamme vaihtoehdot.
Palvelumme on tilanhakijalle ilmainen
Pyydä lisätietoa
