Vuokrataan - Tampere
Joentaustankatu 3, Myllypuro, 33330 Tampere #10812305
Osoite
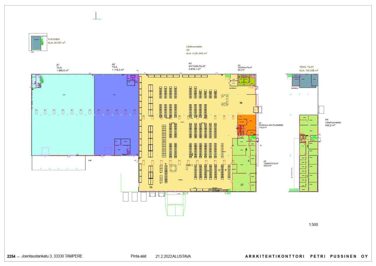
Joentaustankatu 3, 33330 Tampere
Muuta
Moneen käyttöön soveltuvaa tuotanto-/varasto-/logistiikkatilaa vuokrattavana Tampereen Myllypurossa.
Toimitilan vapaakorkeus n. 5 m. Tila on jaettavissa: 1569,5 m² ja 1119,5 m².
Lisätiedot
Sami Tukiainen 0400 467 694/ Sampo Ylikulju 040 354 1771
Toimitilan vapaakorkeus n. 5 m. Tila on jaettavissa: 1569,5 m² ja 1119,5 m².
Lisätiedot
Sami Tukiainen 0400 467 694/ Sampo Ylikulju 040 354 1771
Vapautuu
Heti vapaa
Kerros
1
Ota yhteyttä
Kiinteistö-Tahkola Oy
Kuokkamaantie 4, 33800 Tampere
Näytä puhelinnumero
044 705 0522
Sami Tukiainen
Näytä puhelinnumero
0401234564
Pyydä lisätietoa
