Vuokrataan - Helsinki
Valokaari 8, Suutarila, 00750 Helsinki #10812262
Osoite
Valokaari 8, 00750 Helsinki
Muuta
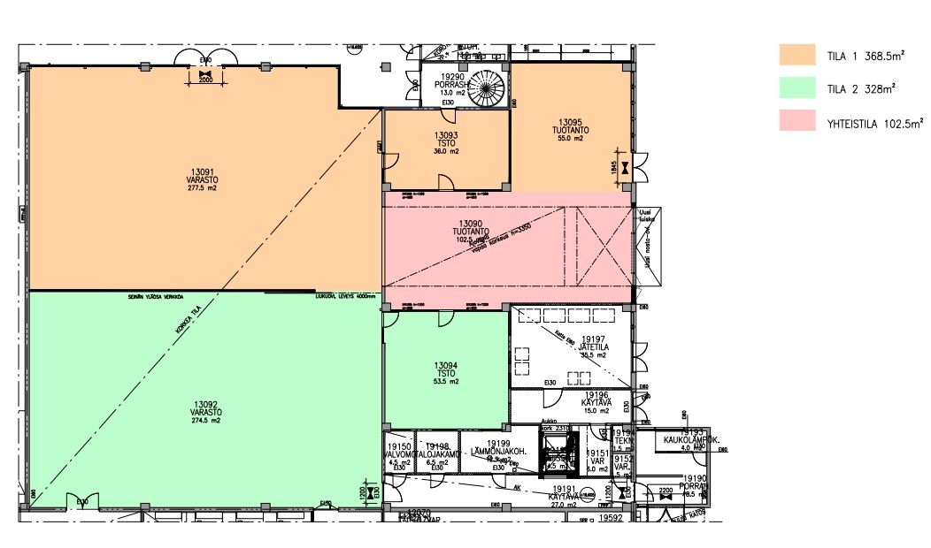
Erittäin tehokas varastotila jaetulla nosto-ovella. Tilassa pieni toimistotila valmiina.
Lisätiedot
Sami Tukiainen 0400 467 694/ Sampo Ylikulju 040 354 1771
Lisätiedot
Sami Tukiainen 0400 467 694/ Sampo Ylikulju 040 354 1771
Vapautuu
Heti vapaa
Kerros
1
Ota yhteyttä
Kiinteistö-Tahkola Oy
Itälahdenkatu 15-17, 2krs, 00210 Helsinki
Näytä puhelinnumero
0207 480 294
Sami Tukiainen
Näytä puhelinnumero
0401234564
Pyydä lisätietoa
