Vuokrataan muut tilat - Espoo
Koskelontie 21-25, Koskelo, 02920 Espoo #10812252
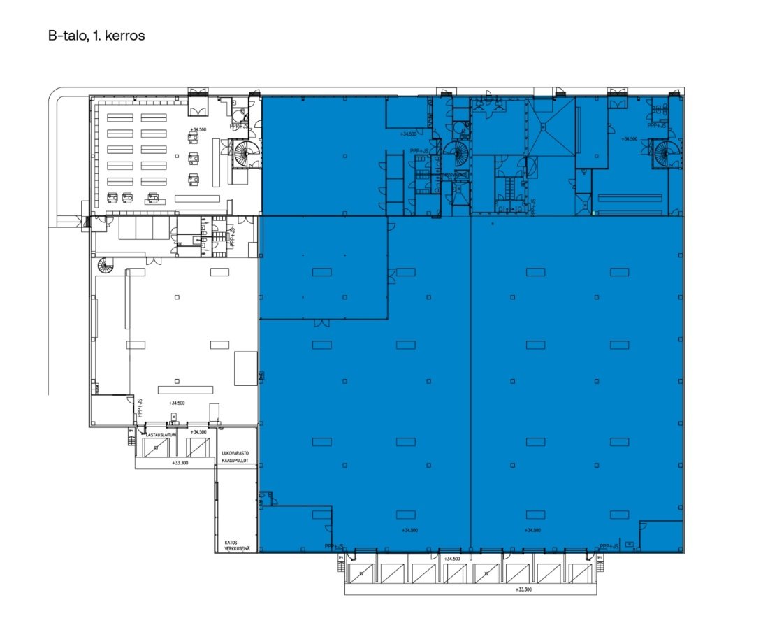
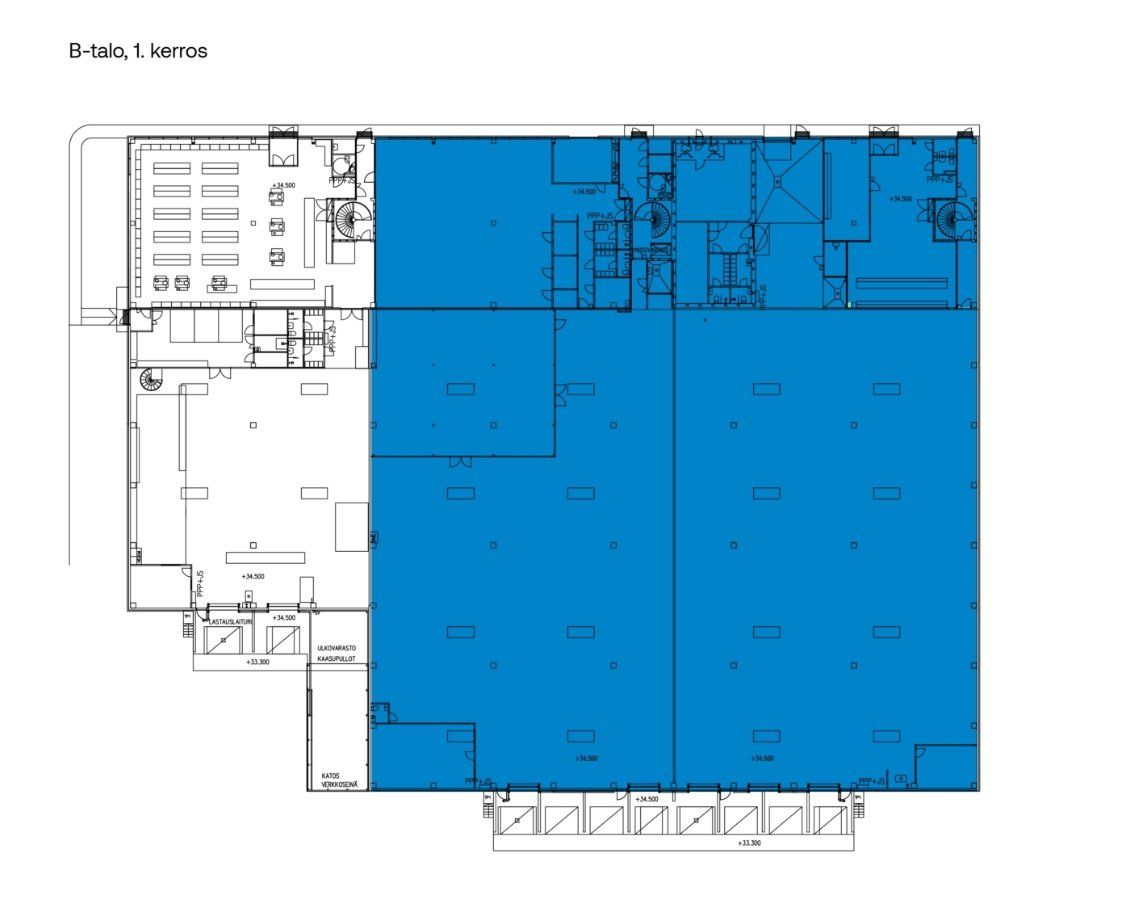
Toimitilakokonaisuus Koskelo Trade Parkin B-talossa. Kokonaisuuteen kuuluu 424 m2 edustavaa toisen kerroksen toimistotilaa ja ensimmäisen kerroksen 1391 m2 varasto sekä sosiaalitilat. Tilaan on maantason nosto-ovi ja toisella puolella myös lastauslaituri. Tila voidaan yhdistää myös viereiseen, 8 metriä korkeaan varastotilaan.
Koskelo Trade Park on logistiikkakiinteistö loistavalla sijainnilla Espoon Koskelossa. Täältä on mahdollista saada siistit toimisto- ja korkeat varastotilat saman katon alta. Parkkipaikkoja ja pihatilaa löytyy. Tilojen muokkaus tulevalle käyttäjälle mahdollista.
Me Croisettella autamme teitä löytämään teille parhaat tilat! Olemme puolueettomia asiantuntijoita ja tunnemme toimitilamarkkinat, talot sekä tilat vankalla kokemuksella. Meillä on välityksessä kaikki toimitilat ja tiedämme niiden alustavat vuokratasot.
Tehtävämme on tehdä toimitilahaustanne onnistunut ja helppo. Saamme palkkiomme kiinteistönomistajalta, joten sinulle palvelumme on täysin maksuton.
Croisette Real Estate Partner
Erottajankatu 5 A 6, 00130 Helsinki
Näytä puhelinnumero
+358 400 585 857
Croisette Vuokraus
Näytä puhelinnumero
+358400585857
