Vuokrataan muut tilat - Espoo
Koskelontie 13, Koskelo, 02920 Espoo #10812244
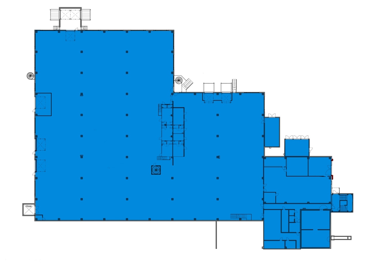
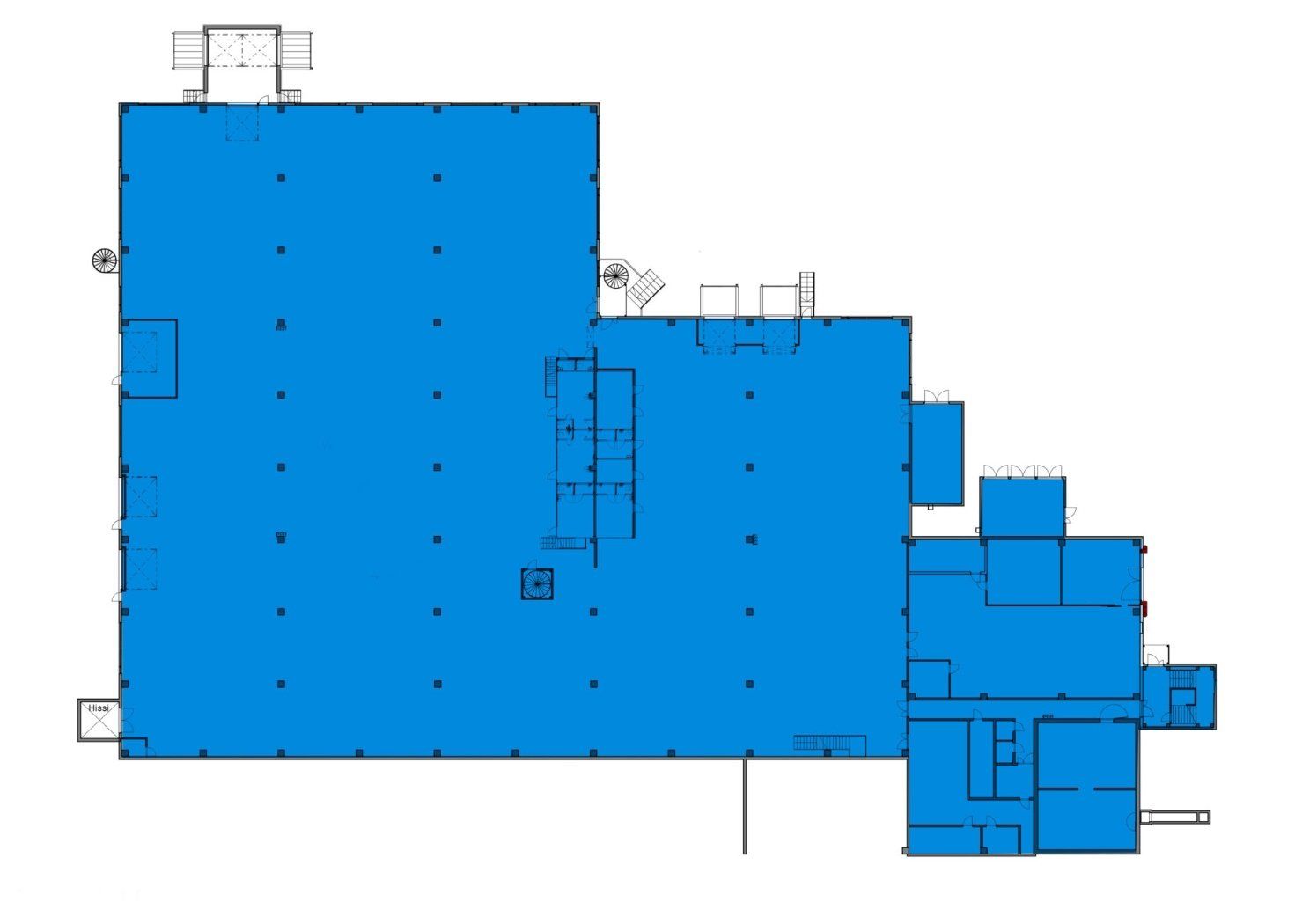
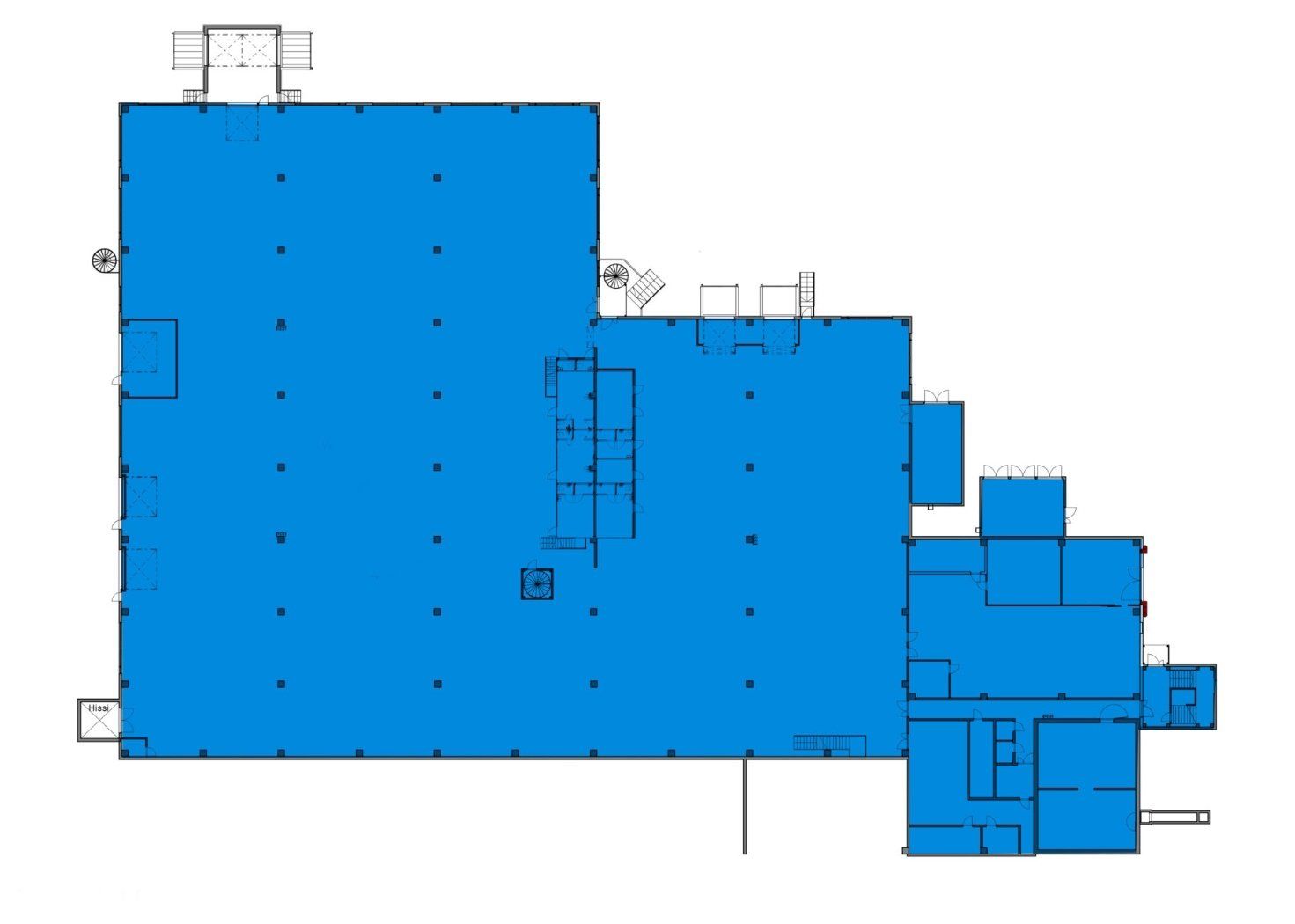
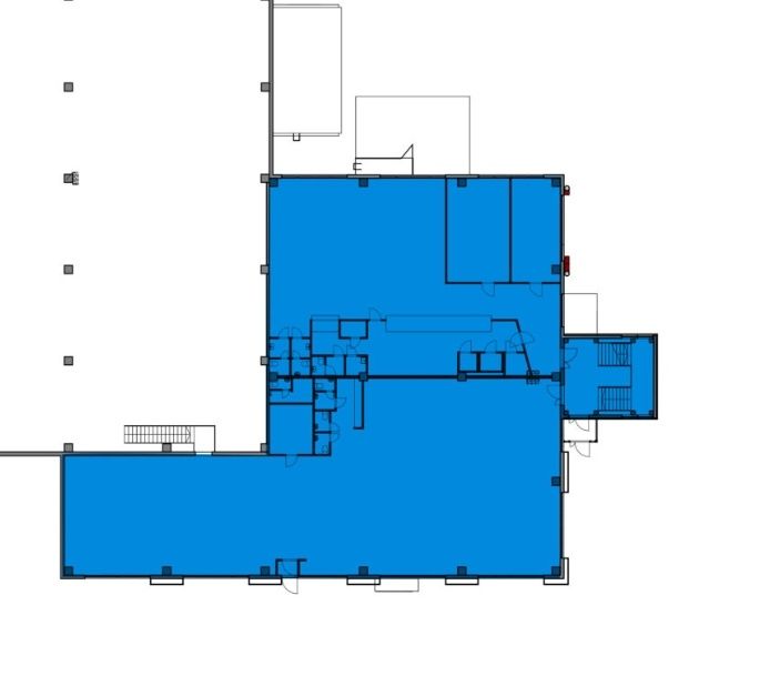
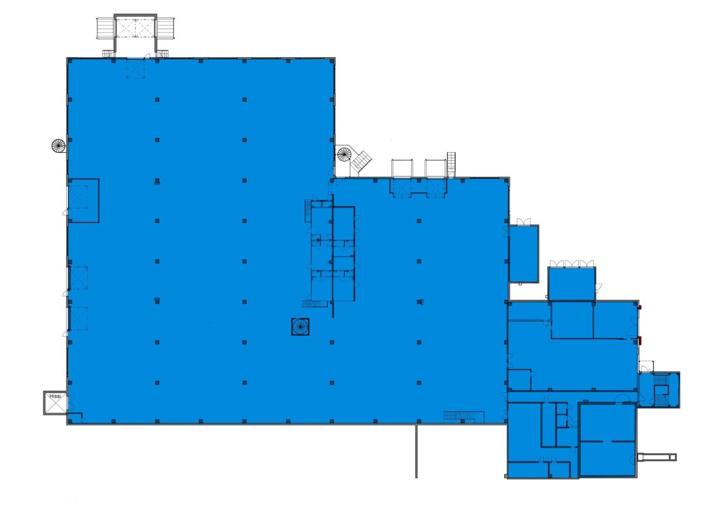
Koskelontie 13 on yhdestä kolmeen käyttäjälle soveltuva logistiikkakiinteistö keskeisellä sijainnilla Kehä III:n varrella. Energiaremontin läpikäyvässä kiinteistössä on saatavilla tuotanto- ja varastotilaa sekä saman katon alla sijaitsevaa toimistotilaa. Tilat remontoidaan tulevan käyttäjän toiveiden mukaisiksi. Kiinteistöllä on myös ravintolatilaa.
Varastotilan ominaisuudet:
- lastausramppi
- 11 lastaustaskua/nosto-ovea
- lattiakantavuus 2000 kg/m2
Kiinteistöllä on yhteensä 7100 m2 varasto-/tuotantotilaa, 790 m2 toimistotilaa, sosiaalitilaa sekä 304,5 m2 ravintolatilat.
Me Croisettella autamme teitä löytämään teille parhaat tilat! Olemme puolueettomia asiantuntijoita ja tunnemme toimitilamarkkinat, talot sekä tilat vankalla kokemuksella. Meillä on välityksessä kaikki toimitilat ja tiedämme niiden alustavat vuokratasot.
Tehtävämme on tehdä toimitilahaustanne onnistunut ja helppo. Saamme palkkiomme kiinteistönomistajalta, joten sinulle palvelumme on täysin maksuton.
Croisette Real Estate Partner
Erottajankatu 5 A 6, 00130 Helsinki
Näytä puhelinnumero
+358 400 585 857
Croisette Vuokraus
Näytä puhelinnumero
+358400585857
