Vuokrataan toimistotilat - Helsinki
Siltasaarenkatu 28 D, Kallio, 00530 Helsinki #10811868
Osoite
Siltasaarenkatu 28 D, 00530 Helsinki
Tilatyyppi
Toimistotilaa
163 m2
Muuta
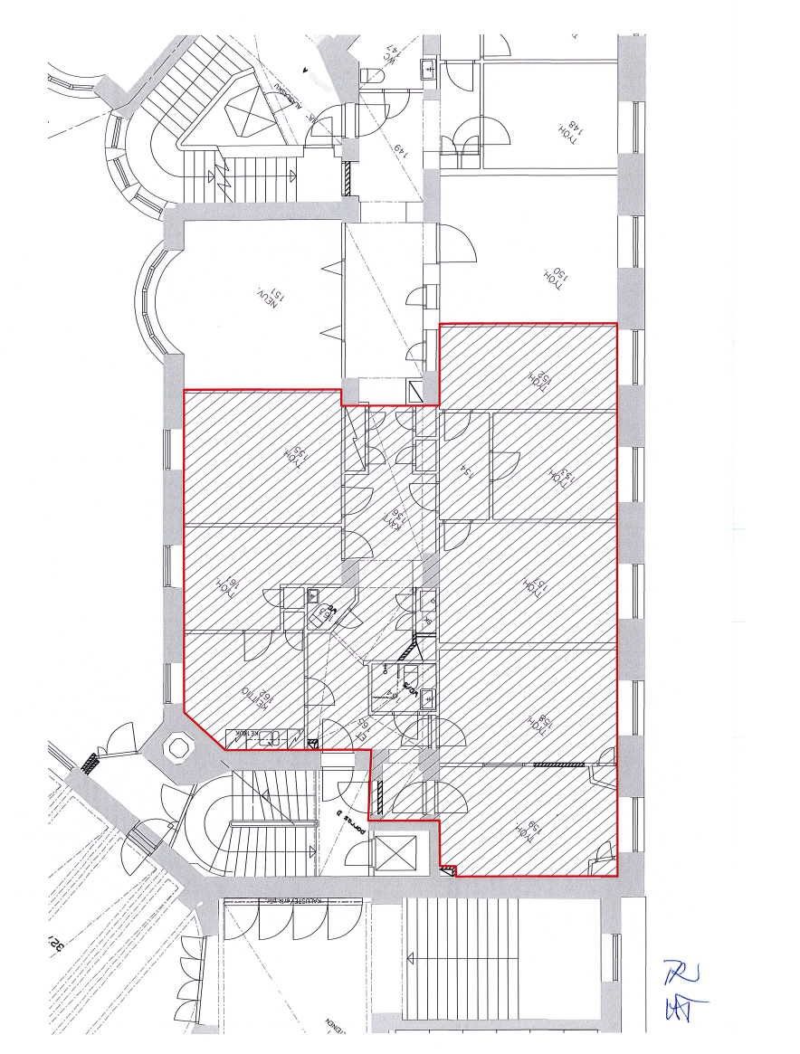
Huippu paikalla, Kallion kirkon vieressä, vapaana kakkoskerroksen toimistotila.
Tila noin 163m2 ja se koostuu 6 erillisestä huoneesta, tilavasta keittiöstä ja kahdesta wc:stä, toisessa myös suihku.
Toimistoon kulku taloyhtiön rappukäytävän kautta. Toimistossa huoneita yhtiön sisäpihalle ja kadulle.
Kysy lisää!
Sampo Ylikulju
040 354 1771
sampo.ylikulju@kiinteistotahkola.fi
Tila noin 163m2 ja se koostuu 6 erillisestä huoneesta, tilavasta keittiöstä ja kahdesta wc:stä, toisessa myös suihku.
Toimistoon kulku taloyhtiön rappukäytävän kautta. Toimistossa huoneita yhtiön sisäpihalle ja kadulle.
Kysy lisää!
Sampo Ylikulju
040 354 1771
sampo.ylikulju@kiinteistotahkola.fi
Vapautuu
Heti vapaa
Rakennusvuosi
1926
Kerros
2
Huoneiden lukumäärä
6
Energiatehokkuusluokka
B2018
Ota yhteyttä
Kiinteistö-Tahkola Oy
Itälahdenkatu 15-17, 2krs, 00210 Helsinki
Näytä puhelinnumero
0207 480 294
Sampo Ylikulju
Näytä puhelinnumero
040 354 1771
Pyydä lisätietoa
