Vuokrataan - Helsinki
Siltasaarenkatu 28 D, Kallio, 00530 Helsinki #10811864
Osoite
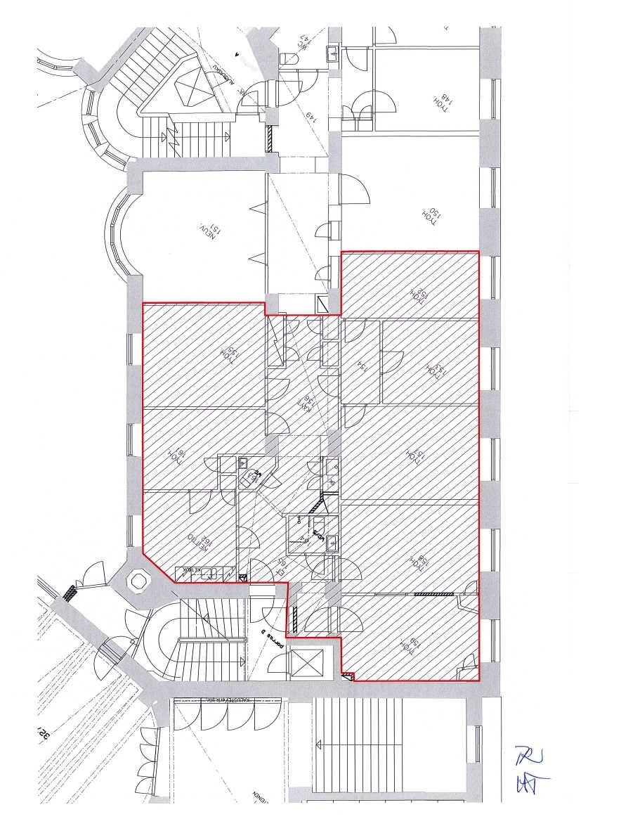
Siltasaarenkatu 28 D, 00530 Helsinki
Muuta
Huippu paikalla Kallion kirkon vieressä kakkoskerroksen toimistotila. Tila noin 163m2 ja se koostuu 6 erillisestä huoneesta, tilavasta keittiöstä ja wc.stä. Toimistoon kulku taloyhtiön rappukäytävän kautta. Tila läpitalon tila.
Vapaa heti!
Kysy lisää!
sampo.ylikulju@kiinteistotahkola.fi tai 040 354 1771
Vapaa heti!
Kysy lisää!
sampo.ylikulju@kiinteistotahkola.fi tai 040 354 1771
Vapautuu
Heti vapaa
Rakennusvuosi
1926
Kerros
2
Huoneiden lukumäärä
4
Energiatehokkuusluokka
B2018
Ota yhteyttä
Kiinteistö-Tahkola Oy
Itälahdenkatu 15-17, 2krs, 00210 Helsinki
Näytä puhelinnumero
0207 480 294
Sampo Ylikulju
Näytä puhelinnumero
040 354 1771
Pyydä lisätietoa
