Vuokrataan toimistotilat - Oulu
Kempeleentie 9, Limingantulli, 90400 Oulu #10811790
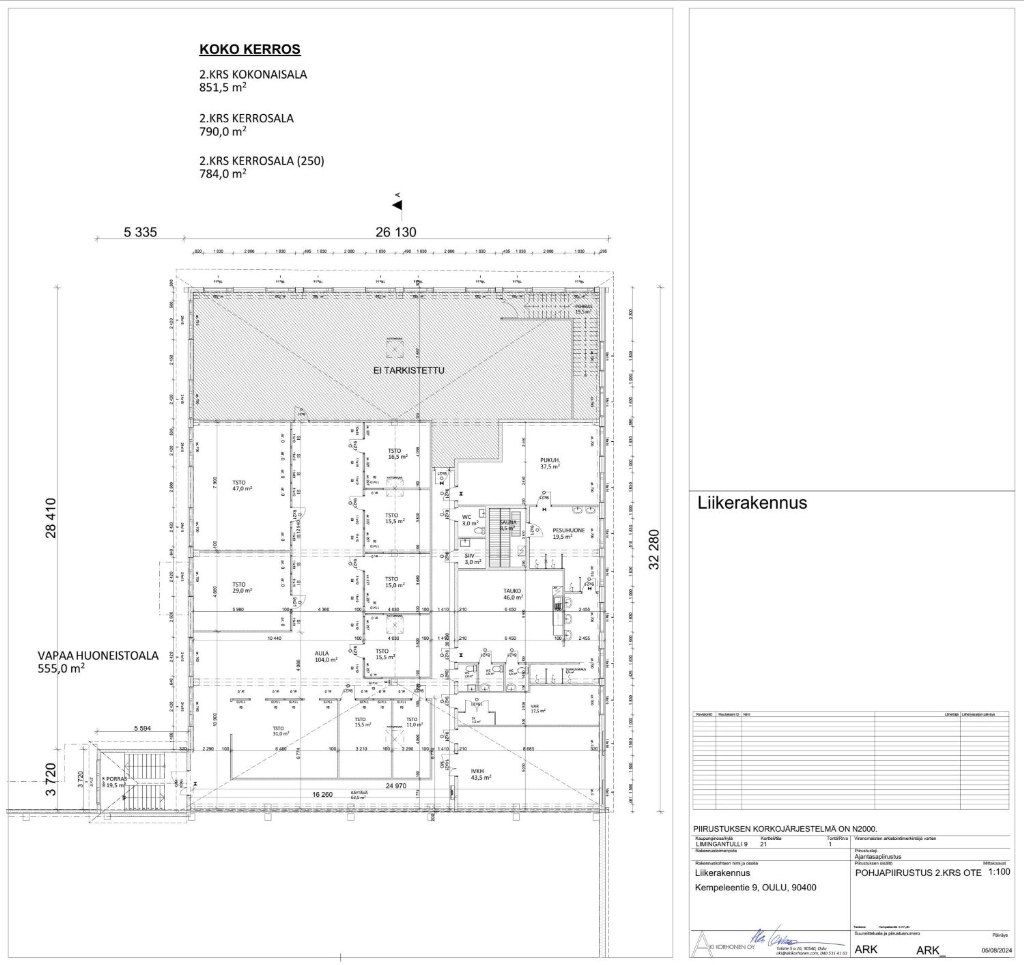
Toimistotilaa Oulusta
Osoite
Kempeleentie 9, 90400 Oulu
Tilatyyppi
Toimistotilaa
555 m2
Muuta
Vuokrattavana 555 m² 2. kerroksen toimistotilaa Oulusta. Tila sijaitsee hyvällä paikalla, mistä on erinomaiset kulkuyhteydet ja palvelut lähellä.
Toimistotila koostuu yksittäisistä toimistohuoneista, avotilasta ja sosiaalitiloista. Tila on jaettavissa ja mahdollista muokata käyttäjän tarpeiden mukaisesti, mikä tekee siitä joustavan ja toimivan ratkaisun erilaisiin toimistotarpeisiin.
Tervetuloa tutustumaan, varaathan välittäjältä oman esittelyaikasi. Voit kysyä meiltä myös muita sopivia vaihtoehtoja, kauttamme löydät juuri Teidän tarpeisiinne sopivat tilat.
Palvelumme on tilanhakijalle veloitukseton!
Toimistotila koostuu yksittäisistä toimistohuoneista, avotilasta ja sosiaalitiloista. Tila on jaettavissa ja mahdollista muokata käyttäjän tarpeiden mukaisesti, mikä tekee siitä joustavan ja toimivan ratkaisun erilaisiin toimistotarpeisiin.
Tervetuloa tutustumaan, varaathan välittäjältä oman esittelyaikasi. Voit kysyä meiltä myös muita sopivia vaihtoehtoja, kauttamme löydät juuri Teidän tarpeisiinne sopivat tilat.
Palvelumme on tilanhakijalle veloitukseton!
Vapautuu
Kysy
Kerros
2
Ota yhteyttä
Tuloskiinteistöt Oy
Rikhardinkatu 2 B 5, 00130 Helsinki
Näytä puhelinnumero
(09) 6841 620
Jorma Ryynänen
Commercial Real Estate Advisor LKV, LVV
Näytä puhelinnumero
+358 40 708 4064
Nina Meyke
Commercial Real Estate Advisor
Näytä puhelinnumero
+358 50 466 1519
Pyydä lisätietoa
