Vuokrataan varastotilat - Helsinki
Hankasuontie 3, Konala, 00390 Helsinki #10811629
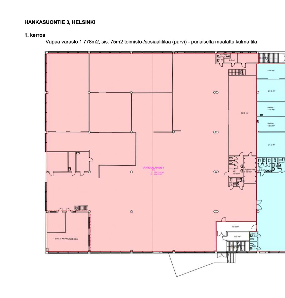
Vuokrataan siistiä varasto- /tuotantotilaa keskeiseltä sijainnilta Konalasta. Tilan vapaa korkeus on noin 5 metriä ja siihen on lastauslaituriyhteys. Tila on myös sisäänajettava kahden nosto-oven kautta. Kokonaisuus sisältää 75 m2 toimiston.
Samasta rakennuksesta mahdollista vuokrata lisäksi toimistotilaa ja varastoa 2. ja 3. kerroksesta.
Lisätietoja soita 020 730 4530 tai info@repoint.fi. Palvelumme on tilanhakijalle ilmainen.
Osoite
Hankasuontie 3, 00390 Helsinki
Tilatyyppi
Varastotilaa
1778 m2
Vapautuu
Kysy
Kerros
1
Ota yhteyttä
Repoint Toimitilat Oy
Itälahdenkatu 22 B, 00210 Helsinki
Näytä puhelinnumero
020 730 4530
Lisätietoja soita Näytä puhelinnumero 020 730 4530 tai info@repoint.fi
https://repoint.fi/Pyydä lisätietoa
