Vuokrataan toimistotilat - Espoo
Sinikalliontie 9, Sinimäki, 02630 Espoo #10811620
Siistiä toimistotilaa Espoon Sinimäestä
Osoite
Sinikalliontie 9, 02630 Espoo
Tilatyyppi
Toimistotilaa
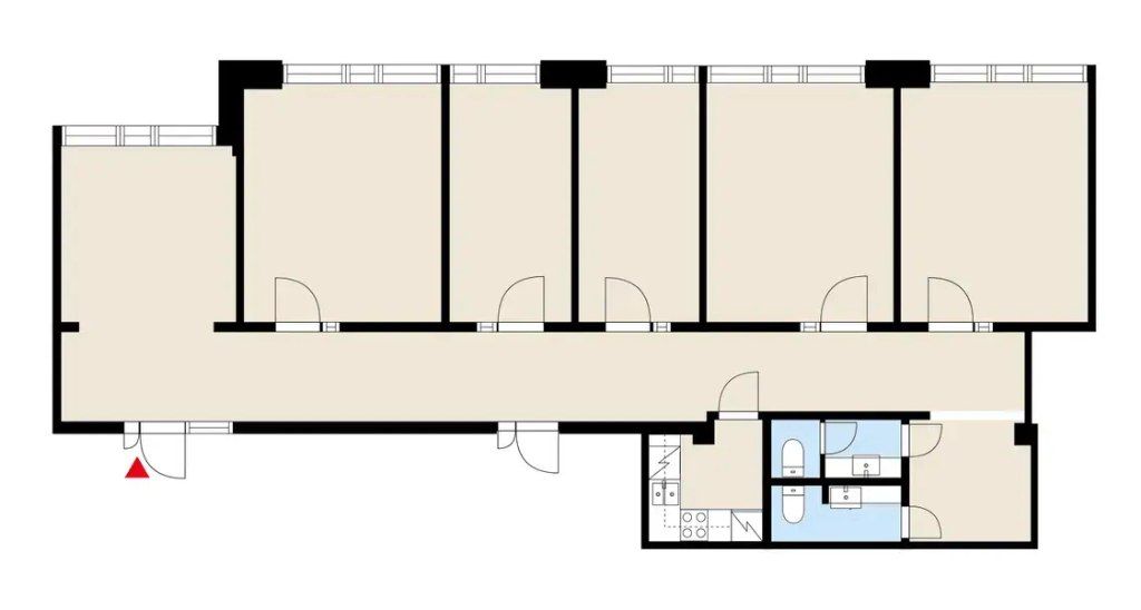
131 m2
Muuta
Vuokrataan siistiä toimistotilaa Espoon Sinimäestä, vuokrattava tila on 3. kerroksen 131 m2 toimistotila.
Erinomaisella sijainnilla aivan Turunväylän 1-tien vieressä siistiä peruskuntoista huonetoimistotilaa vuokrattavana. Sinimäentien bussipysäkille on vain 230 m / 3minuutin kävelymatka, ja oman auton käyttäjiä palvelee pihassa olevat autopaikat.
Tervetuloa tutustumaan, varaathan välittäjältä oman esittelyaikasi. Voit kysyä meiltä myös muita sopivia vaihtoehtoja, kauttamme löydät juuri Teidän tarpeisiinne sopivat tilat.
Palvelumme on tilanhakijalle veloitukseton!
Erinomaisella sijainnilla aivan Turunväylän 1-tien vieressä siistiä peruskuntoista huonetoimistotilaa vuokrattavana. Sinimäentien bussipysäkille on vain 230 m / 3minuutin kävelymatka, ja oman auton käyttäjiä palvelee pihassa olevat autopaikat.
Tervetuloa tutustumaan, varaathan välittäjältä oman esittelyaikasi. Voit kysyä meiltä myös muita sopivia vaihtoehtoja, kauttamme löydät juuri Teidän tarpeisiinne sopivat tilat.
Palvelumme on tilanhakijalle veloitukseton!
Vapautuu
Kysy
Kerros
3
Ota yhteyttä
Tuloskiinteistöt Oy
Rikhardinkatu 2 B 5, 00130 Helsinki
Näytä puhelinnumero
(09) 6841 620
Otto Ahtola
Commercial Real Estate Advisor
Näytä puhelinnumero
+358 40 042 2830
Nina Meyke
Commercial Real Estate Advisor
Näytä puhelinnumero
+358 50 466 1519
Pyydä lisätietoa
