Vuokrataan toimistotilat - Espoo
Linnoitustie 4, Leppävaara, 02600 Espoo #10811543
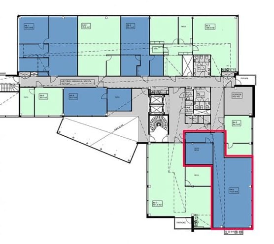
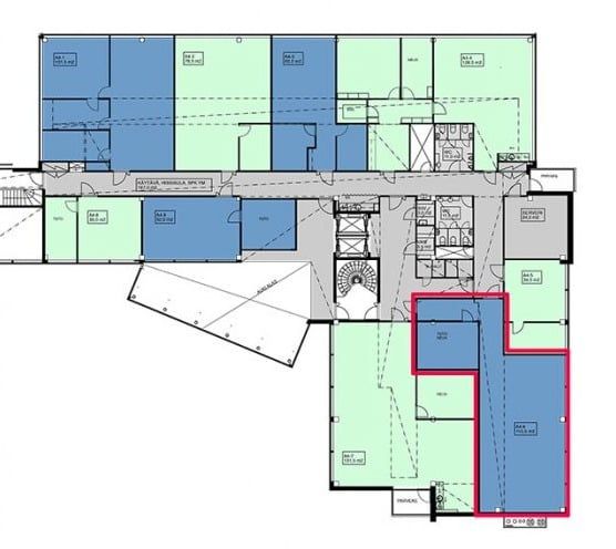
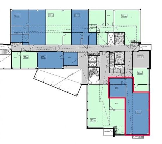
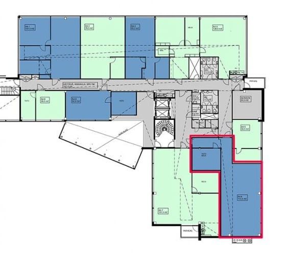
Tämä neljännen kerroksen avokonttori yrityspuiston upeissa puitteissa tarjoaa mahdollisuuksia tehokkaaseen työskentelyyn. Tästä tilasta löytyy avokonttoria sekä neuvotteluhuone, mutta tila on muokattavissa tarpeidenne mukaan sisältämään enemmän tai vähemmän erillisiä tiloja. Yhteiskäytössä olevat wc-tilat löytyvät aivan tilojen tuntumasta, käytävän varrelta.
Espoon Leppävaarassa sijaitseva, vuosina 2001-2012 rakennettu Quartetto Business Park tarjoaa vuokralaistensa ympärille yritysten keskittymän, jossa työnteko onnistuu sujuvasti. Yrityspuiston tarjoamiin palveluihin kuuluvat muun muassa lounasravintola, kahvio, aulapalvelu sekä liikunta- ja terveyspalvelut. Kiinteistöltä löytyy myös erillisiä kokous- ja edustustiloja. Tämä kohde tarjoaa viihtyisät puitteet toiminnallenne ihanteellisella sijainnilla liikkumisen kannalta.
Me Croisettella autamme teitä löytämään teille parhaat tilat! Olemme puolueettomia asiantuntijoita ja tunnemme toimitilamarkkinat, talot sekä tilat vankalla kokemuksella. Meillä on välityksessä kaikki toimitilat ja tiedämme niiden alustavat vuokratasot.
Tehtävämme on tehdä toimitilahaustanne onnistunut ja helppo. Saamme palkkiomme kiinteistönomistajalta, joten sinulle palvelumme on täysin maksuton.
Hissi
Croisette Real Estate Partner
Erottajankatu 5 A 6, 00130 Helsinki
Näytä puhelinnumero
+358 400 585 857
Croisette Vuokraus
Näytä puhelinnumero
+358400585857
