Vuokrataan toimistotilat - Helsinki
Kasarmikatu 44, Kaartinkaupunki, 00130 Helsinki #10811435
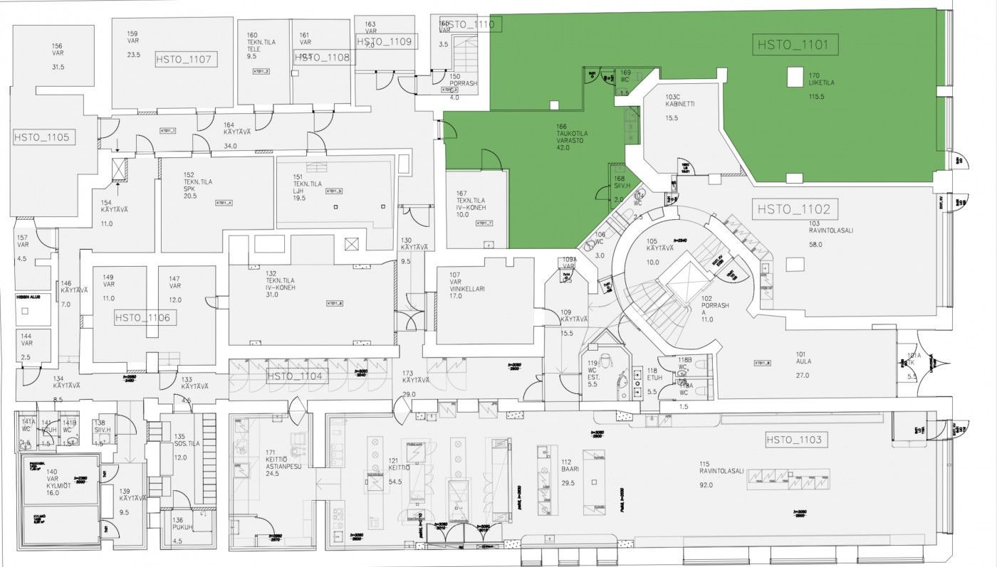
Vuokrattavana liiketila osoitteessa Kasarmikatu 44, aivan Esplanadin puiston vieressä – sijainti, joka tuo asiakkaita. Tila jakautuu 115 m² myymälätilaksi, jossa tuotteet tai palvelut pääsevät oikeuksiinsa, sekä 47 m² varasto- ja taukotilaksi, jossa työnteko sujuu ilman häiriöitä.
Kysy lisää: jouko.raitanen@rhg.fi / 0504695444
Osoite
Kasarmikatu 44, 00130 Helsinki
Tilatyyppi
Toimistotilaa
312 m2
Vapautuu
Kysy
Huoneiden lukumäärä
1
Energiatehokkuusluokka
Ei lain edellyttämää energiatodistusta
Ota yhteyttä
RHG Real Estate
Hämeenkatu 2 B20, 20500 Turku
Näytä puhelinnumero
020 734 4020
Jouko Raitanen
Näytä puhelinnumero
050 469 5444
Pyydä lisätietoa
