Vuokrataan liiketilat - Helsinki
Aleksanterinkatu 9, Kluuvi, 00100 Helsinki #10811351
Liiketilaa Helsingin keskustasta
Osoite
Aleksanterinkatu 9, 00100 Helsinki
Tilatyyppi
Liiketilaa
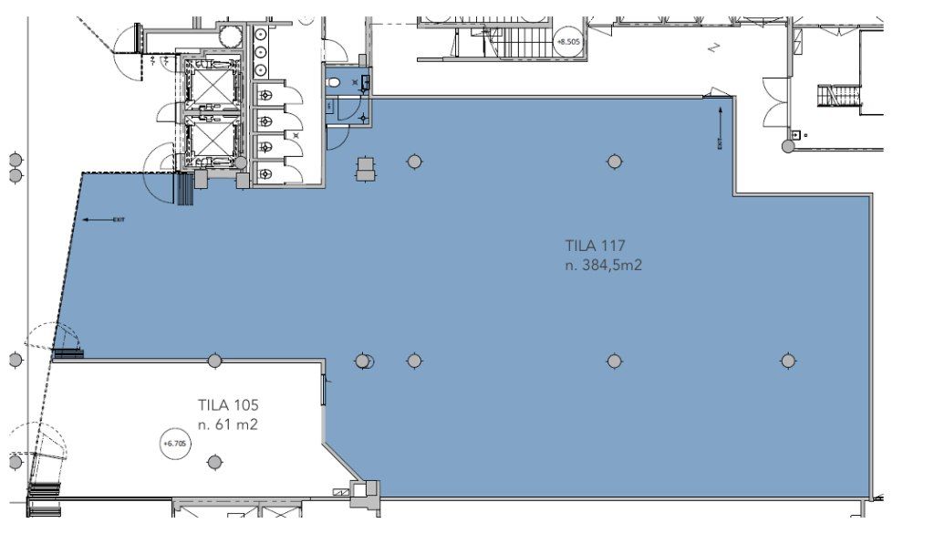
384 m2
Pysäköinti
Hallissa
Muuta
Vuokrataan 384m2 2. kerroksen liiketilaa Kauppakeskus Kluuvista. Myymälätila sijaitsee vetovoimaisen Kluuvi Kitchen- ravintolamaailman vastapäätä, mikä takaa loistavan näkyvyyden.
Kauppakeskus Kluuvi sijaitsee Aleksanterinkadulla, Helsingin vilkkaimmalla ostoskadulla, ja rajoittuu Kluuvikatuun sekä Yliopistonkatuun. Kluuvi on trendikäs ja rento kauppakeskus, joka tarjoaa asiantuntevaa palvelua neljässä kerroksessa muodin, urheilun, kauneuden ja vapaa-ajan erikoisliikkeissä sekä laadukkaissa kahviloissa ja ravintoloissa.
Kluuvi on suunnattu ihmisille, jotka hengittävät urbaania kulttuuria ja nauttivat elämästä, elämyksistä ja kohtaamisista. Kauppakeskuksen monipuolinen tarjonta ja keskeinen sijainti tekevät siitä houkuttelevan paikan liiketoiminnalle.
Tila on heti vapaa.
Tervetuloa tutustumaan! Varaathan välittäjältä oman esittelyaikasi. Kysy meiltä muitakin juuri teille sopivia vaihtoehtoja - meidän kautta saat täysin teidän tarpeisiinne räätälöidyt tilat. Palvelumme on tilanhakijalle veloitukseton!
Kauppakeskus Kluuvi sijaitsee Aleksanterinkadulla, Helsingin vilkkaimmalla ostoskadulla, ja rajoittuu Kluuvikatuun sekä Yliopistonkatuun. Kluuvi on trendikäs ja rento kauppakeskus, joka tarjoaa asiantuntevaa palvelua neljässä kerroksessa muodin, urheilun, kauneuden ja vapaa-ajan erikoisliikkeissä sekä laadukkaissa kahviloissa ja ravintoloissa.
Kluuvi on suunnattu ihmisille, jotka hengittävät urbaania kulttuuria ja nauttivat elämästä, elämyksistä ja kohtaamisista. Kauppakeskuksen monipuolinen tarjonta ja keskeinen sijainti tekevät siitä houkuttelevan paikan liiketoiminnalle.
Tila on heti vapaa.
Tervetuloa tutustumaan! Varaathan välittäjältä oman esittelyaikasi. Kysy meiltä muitakin juuri teille sopivia vaihtoehtoja - meidän kautta saat täysin teidän tarpeisiinne räätälöidyt tilat. Palvelumme on tilanhakijalle veloitukseton!
Vapautuu
Kysy
Rakennusvuosi
2011
Kerros
2
Ota yhteyttä
Tuloskiinteistöt Oy
Rikhardinkatu 2 B 5, 00130 Helsinki
Näytä puhelinnumero
(09) 6841 620
Nina Meyke
Commercial Real Estate Advisor
Näytä puhelinnumero
+358 50 466 1519
Jorma Ryynänen
Commercial Real Estate Advisor LKV, LVV
Näytä puhelinnumero
+358 40 708 4064
Pyydä lisätietoa
